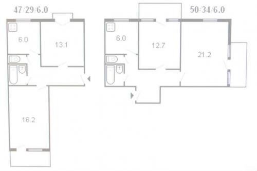
Планировка сталинка 3 комнатная. Городская архитектура: сталинки
Планировка сталинка 3 комнатная. Городская архитектура: сталинки
К домам сталинского периода (или «сталинкам») принято относить здания, построенные в 30-50-е годы XX века. Вне зависимости от времени постройки, все сталинские дома по конструкции и планировке можно разделить на два типа.
Первый тип – номенклатурное жилье, предназначавшееся для партийных и хозяйственных руководителей и их семей. Номенклатурные дома расположены вдоль центральных проспектов и на площадях.
Первые «сталинки» эксклюзивны и декорированы колоннами, арками и лепниной. Построены они были из красного, белого кирпича или шлакоблоков, перекрытия железобетонные или комбинированные. Архитекторы сталинской эпохи не экономили на пространстве квартир и подъездов. На этаже, как правило, располагается всего 2-4 квартиры. Обязательно есть лифты, зачастую на кухне имеется индивидуальный мусоропровод. Во многих квартирах были предусмотрены кабинеты и детские, библиотеки и комнаты для прислуги. В квартирах традиционно высокие потолки (больше трех метров), большие кухни, раздельные санузлы, комнаты – от 15 до 25 кв.м., а местами даже до 30 кв. м.
В Москве к ним можно отнести высотки на Котельнической набережной и Баррикадной, а также во дворах тихого центра и в районах Ленинградского, Кутузовского и Ленинского проспектов.
Знаменитый Дом на набережной (Дом Правительства). Комплекс сооружений на Берсеневской набережной Москвы-реки на Болотном острове, по адресу улица Серафимовича, дом 2 (Берсеневская набережная, 20):
Вот, например, так сейчас выглядит одна из квартир в доме на набережной :
В Санкт-Петербурге большая часть номенклатурных «сталинок» расположена вблизи Смольного, вдоль Московского проспекта, в Выборгском и Кировском районах, на Светлановской площади.
Ко второму типу относят рядовые сталинские дома, которые строились в основном для рабочих, часто под коммунальное заселение. В основном эти дома расположены в глубине кварталов. Архитектура таких зданий утилитарна, отсутствуют украшения, для наружных стен используется неоштукатуренный силикатный кирпич. Перекрытия в основном деревянные, но встречаются и металлические с деревянным наполнением, и железобетонные. Рабочие сталинки не имеют мусоропровода и лифта. В рядовых домах бывают как классические для того периода трёх- и четырехкомнатные квартиры, так и послевоенные «коридорные» — изначально общежития. Площади квартир значительно меньше, чем в домах для номенклатуры. Дополнительные удобства зачастую в таких домах не проектировали, однако в 1970-е годы многие были оборудованы выносными лифтами, в них появились ванны (в кухнях) или ванные комнаты. В Петербурге большая часть рядовых «сталинок» расположена на Васильевском острове, в Кировском районе, в районе улицы Фрунзе, проспекта Ю. Гагарина, Алтайской улицы, станции метро Автово.
Позднесталинские дома — серии кирпичных и блочных домов, построенные в 1950-х годах. Основным требованием при проектировании была возможность для коммунального заселения, поэтому в сталинских сериях предусмотрены высокие потолки, просторные изолированные комнаты, большие прихожие и относительно большие кухни. Благодаря этому, а также расположению в престижных районах Москвы, сталинские дома до сих пор пользуются популярностью на рынке вторичного жилья. Строились такие дома вплоть до 1961 года. 








Планировка сталинка 1 комната. Дизайн однокомнатной квартиры-сталинки: 4 планировки
Планировка однокомнатной квартиры, чаще всего, представляет собой довольно сложную задачу, потому как, на небольшой площади нужно разместить всю необходимую мебель, вещи, которые накапливаются в течение жизни, и прочее. К тому же, непросто бывает предусмотреть в пространстве одной основной комнаты зону для ребенка, вашего отдыха и работы, гардероба.
Сегодня на примере четырех вариантов планировочных решений мы расскажем о наиболее действенных способах грамотного и продуманного расхода жилой площади.
Планировка однокомнатной квартиры-сталинки №1 с объединенной кухней и гостиной

Преимущества:
- В обустройстве подобной квартиры отчетливо звучит идея объединения, поскольку все основные зоны связаны друг с другом, и тем самым, сохраняют визуальный объем помещений. На плане видно, как кухня объединена с гостиной, которая, в свою очередь, разделена со спальной зоной декоративной перегородкой и ширмой. В итоге, однокомнатная квартира превращается в двухкомнатную.
- В образовавшейся путем зонирования спальне может разместиться полноценная двуспальная кровать с тумбами, и платяной шкаф, продолжением которого является пристенный письменный стол (или туалетный столик).
- В гостиной установлен большой диван, в разложенном виде превращающийся в просторное ложе. На периферии кухни и гостиной находится столовая группа.
- Санузел совмещенный, с полноценной ванной и шкафом-пеналом для банных принадлежностей. В прихожей размещен вместительный шкаф-купе для хранения верхней одежды, обуви и прочего.
Недостатки:
- Нет таких, планировочное решении достаточно продуманное, и вполне может быть реализовано на практике.
Обратите внимание:
- Возводя тонкие стены или перегородку между гостиной и спальной зоной, можно установить дверь, которая поможет уединиться. Но, все же, легкие функциональные занавеси при входе в спальню помогут сохранить визуальный простор в совмещенной комнате.

Планировка однокомнатной квартиры-сталинки №2 с детской зоной в спальне

Преимущества:
- Данное планировочное решение хорошо тем, что в комнате, кроме диванной «взрослой» зоны, предусмотрена и односпальная кровать для ребенка, окруженная компактной конструкцией с открытыми и закрытым секциями. Таким образом, даже в однокомнатной квартире можно обеспечить ребенка всем необходимым. Место для занятий, работы и творчества может быть обустроено на балконе.
- Комната-гостиная совмещена с кухней, но чтобы подчеркнуть две разные функциональные зоны, можно установить стеллаж или перегородку на их периферии.
- Гардеробную представляет вместительный шкаф, который, к тому же, отделяет прихожую от гостиной.
Недостатки:
- Взрослая и детская зоны ничем не разделены даже визуально, поэтому уединиться в квартире вам будет сложно.
Обратите внимание:
- Часть вашего гардероба может также храниться во встроенном шкафу напротив письменного стола на балконе.

Планировка однокомнатной квартиры-сталинки №3 с кухней-столовой

Преимущества:
- Кухня –столовая расположена отдельно от основной комнаты, поэтому никакие посторонние запахи или шум не потревожат вас и ваших гостей.
- В квартире предусмотрена ванная комната и отдельный туалет, что очень удобно. В просторной прихожей может быть размещен вместительный шкаф, отдельная этажерка для обуви и скамья для вашего удобства.
- В основной комнате находится большой раскладной диван, зона TV, письменный стол и шкаф-стеллаж.
Недостатки:
- Для семьи с маленьким ребенком следует предусмотреть место для кроватки и детской мебели. Возможно, чтобы уместить все необходимое, придется заменить диван кроватью.
Обратите внимание:
- На балконе можно установить туалетный столик и дополнительный стеллаж или шкаф.

Планировка однокомнатной квартиры-сталинки №4 с рабочим кабинетом на балконе

Преимущества:
- В квартире находятся отдельная ванная и туалет, кухня-столовая и совмещенная с детской гостиная с выходом на балкон.
- Планировка комнаты предусматривает наличие двух основных (взрослой и детской) и двух дополнительных (гардеробной и TV). Продуманное расположение мебели по периметру комнаты-гостиной обеспечивает простор в ее центральной части.
- Диванная зона отделена от кровати посредством установки стеллажа, где вы и ваш ребенок можете хранить книги и декор.
Недостатки:
- Платяного шкафа в гостиной может быть не достаточно для того, чтобы разместить всю вашу одежду.
Обратите внимание:
- Несмотря на то, что прихожая достаточно просторная, в ней мало мета для размещения хорошего шкафа, вешалки и секций для обуви. Балкон необходимо использовать грамотно, и установить на нем дополнительный шкаф, туалетный (письменный) столик.
3
Не торопитесь, оформляя пространство, в котором собираетесь жить длительное время, поскольку ваша недальновидность может спровоцировать возникновение множества типичных ошибок в планировке жилья.
Сталинка серия 1-411 перепланировка. Особенности перепланировки в сталинском доме
Благодаря ряду конструктивно-планировочных особенностей, перепланировка сталинки может включать довольно интересные решения. Квартиры в сталинских домах выгодно отличаются от типовых высокими потолками и зачастую полным отсутствием несущих внутриквартирных стен . Однако не все так просто: существует немало условий, которые препятствуют воплощению некоторых решений по перепланировке квартиры в сталинском доме.
Вентиляция
Зачастую вентиляция в сталинских домах располагается в самых неожиданных местах. Мы встречали такие квартиры, где на каждое помещение приходился отдельный стояк вентиляции, и общее число венткоробов переваливало за десяток . По существующим нормам, каналы вентиляции затрагивать запрещено, что порой существенно затрудняет работу над проектом перепланировки сталинской квартиры в части дизайнерских решений. Ведь получается, что такое количество вентканалов в принципе не нужно, а демонтировать их нельзя (п.11.5 ППМ № 508 в редакции 840).
Нередки случаи, когда короб вентиляции в сталинке разделяет ванную и туалет, а это накладывает запрет на такое популярное решение, как создание совмещенного санузла.
Перекрытия в сталинских домах
Данные жилые здания возводились примерно с середины 30-х до начала 60-х годов. Необходимо отметить, что в это время в технологиях строительства происходили большие изменения: постепенно намечался переход от индивидуального домостроения к типовому (фактически до хрущевок — некоторые позднесталинские дома являются серийными). И если до начала 50-х годов дома строились с деревянными или смешанными перекрытиями, с ж/б участками под санузлами и ванными, то поздние дома сталинской эпохи имели уже железобетонные перекрытия . Впрочем, в ходе капремонтов, во многих обветшавших или горевших сталинских домах деревянные перекрытия заменялись на железобетонные.
Надо сказать, что тип перекрытий очень важен для определения возможности той или иной перепланировки квартиры. Главным образом, о перекрытиях можно узнать из технического паспорта БТИ, там обычно указывается, из чего они сделаны . Если же его нет на руках, можно попробовать сориентироваться по году постройки.
Согласования перепланировок в домах с деревянными/смешанными перекрытиями всегда идут по усложненной схеме, что повышает стоимость проектной документации. Тому есть причины . Во-первых, сами перекрытия, от времени обветшали и утратили часть несущей способности. Поэтому вам вряд ли разрешат вмешиваться в конструкцию полов и заливать тяжелую стяжку, а также устанавливать новые перегородки из пеноблоков или кирпича . Во-вторых, деревянные ненесущие межкомнатные перегородки, скорее всего, стали «разгружающими» — то есть перекрытия просели и опираются на них . Затрагивать такие перегородки крайне проблематично (необходимо сложное усиление перекрытия) и вообще редко когда возможно . В третьих, сказывается общая усталость всех конструкций дома. Исходя из перечисленного, любая перепланировка в сталинском доме с деревянными перекрытиями требует оформления технического заключения о состоянии дома и возможности ее проведения, а также разработки сложной проектной документации.