Камин своими руками декоративный из коробок. Процесс изготовления камина
- Камин своими руками декоративный из коробок. Процесс изготовления камина
- Камин из картона своими руками пошаговая инструкция. Вдохновляйтесь: лучшие идеи
- Декоративный камин своими руками из гипсокартона. Технология изготовления декоративного камина
- Камин из коробок и обоев. Виды и размеры фальш-каминов
- Фальш-камин своими руками из старой мебели. Виды и размеры фальш-каминов
- Камин из коробок своими руками на новый год пошаговая инструкция. Что понадобится для фальш камина из коробок
- Угловой камин из картона своими руками: пошаговая инструкция. Рождественский
Камин своими руками декоративный из коробок. Процесс изготовления камина
Чтобы можно было определить, какой камин лучше подойдет для конкретной комнаты, лучше рассмотреть процессы изготовления двух вариантов камина — пристенного и углового.
Ищете, как сделать декоративный камин своими руками?
Предлагаем вам ознакомиться с пошаговым руководством о том, как сделать декоративный камин из старого шкафа своими руками . Кроме этого в данном материале подробно показан процесс отделки камина лепниной и этап подключения светодиодной ленты!
Пристенный вариант
Пристенный камин достаточно компактен и не загромоздит комнату. Кроме того, каминная полка, если сделать ее достаточно жесткой , вполне может послужить подставкой для декоративных фигурок, свечей, вазы или часов.

Пристенный декоративный камин может стать достаточно функциональной деталью интерьера
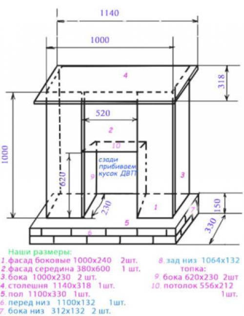
Первым делом, нужно освободить место для работы, где свободно можно будет расстелить большой лист картона. Действуя, согласно эскизу, с соблюдением указанных на нем размеров, на разложенном картоне (бывшей коробке) размечаются и вычерчиваются все детали будущего камина. Проводя этот процесс, нужно помнить, что сгибы коробки также можно использовать рационально и сделать их углами камина.
Камин изготавливается из трех составляющих — это основа, которая должна быть достаточно жесткой , каминныйи верхняя полка.
Основа камина
Основа должна быть жесткой для того, чтобы камин плотно стоял на полу, поэтому форму для основы необходимо хорошенько укрепить. Укрепляется этот подиум с помощью дополнительных вставок – ребер жесткости , которые закрепляют внутри.

Прямоугольная основа с ребрами жесткости

Ребра жесткости могут иметь и хаотичное расположение
Ширина этой части камина должна превосходить по длине и ширине каминный портал на 80 ÷ 120 мм. Точно можно определиться с учетом предпочтений мастера и площади, на которую камин будет устанавливаться.
Сделать основу можно двумя способами:
- Выкроить коробку с бортиками, установить или приклеить на ее дно ребра жесткости , на клей ПВА.
- Выкроить из картона две одинаковые панели нужного размера — это будет дно и поверхность основы. На дно прикрепляются и прижимаются ребра жесткости — их можно приклеить на клей или двухсторонний скотч.
Боковые поверхности такой конструкции состоят из ровных полос, которые склеиваются из двух-трех слоев картона, что придаст дополнительную жесткость основе. Их устанавливают между панелями и приклеивают на малярный скотч.
Мнение эксперта:
Масальский А.В.
Редактор категории "строительство" на портале Stroyday.ru. Специалист по инженерным системам и водоотведению.
Делая подставку — основу , нужно сразу продумать, как будет фиксироваться портал на нижней конструкции, так как иногда его закрепляют к донной панели основания.
Чаще всего портал устанавливают на верхнюю плоскость основания и затем закрепляют скотчем.

Камин из картонной коробки из под телевизора
Изготовление портала
Портал выкраивается из коробки по расчерченным заранее линиям и может изготавливаться также несколькими способами: на каркасной основе или с цельной задней стенкой.
Первый вариант
- Если портал будет устроен на каркасной основе, то камин будет иметь более жесткую конструкцию, так как каркасные перегородки будут изготовлены из нескольких слоев картона, склеенных между собой.
- Для начала изготавливается передняя часть портала, к которой и будет крепиться каркас, делая всю эту деталь конструкции жестче .

Вырезание окна будущего «очага»
- На картоне должно быть размечено окошко для будущего очага. Верхняя часть окошка отрезается канцелярским ножом. Затем плоскость, которая отмечена, как окно разделяется пополам. Получившиеся «створки» загибаются они станут внутренними боковыми стенками очага.
Камин из картона своими руками пошаговая инструкция. Вдохновляйтесь: лучшие идеи
Если вы серьезно задумали сделать камин из коробок или листов картона своими руками, то отобранные нами идеи помогут понять, какие вариации возможны, и вдохновиться на создание собственного шедевра.

Камин в виде буквы «П» без основания прост в изготовлении. Имитация под кирпичную кладку из красных бумажных кирпичиков или обоев соответствует новогодней тематике.
Камин из «красного кирпича» и зеленая ель представляют собой классическую цветовую гамму праздника.

Для создания нужного эффекта на внутреннюю стенку очага можно приклеить изображение горящих полен. Такой сказочный вариант можно использовать как реквизит для детского утренника или для домашнего спектакля.

Изображение огня внутри камина может быть и более реалистичным, особенно если найти 3D формат. Если для оклеивания взять не отдельные кирпичики, а обои или специальную заготовку под кирпичную кладку, то получится еще интереснее. Но здесь нужны ровные углы и правильная форма.

Изобразить кирпичи на поверхности можно и краской. Это займет больше времени, но выглядеть будет правдоподобнее. В топку можно положить свернутую рулоном бумагу или тонкий картон.
Использование штукатурки с последующим нанесением фигур каменной кладки превращает легкую картонную конструкцию в основательное каменное сооружение. Белый цвет мрамора отлично впишется в интерьер спальной комнаты с пастельными тонами.
Отличное место для камина — стена между окнами в просторной гостиной частного дома. Вариант с дымоходом в большом помещении смотрится эффектно.

Для камина в аристократическом стиле под белый массивный камень хорошо подойдут декоративные элементы из пенополистирола (узоры, планки) и потолочный багет.

Их приклеивают полимерным клеем на готовую, но не окрашенную конструкцию. Важно соблюсти симметрию.

Вместо оклеивания коробок белой бумагой можно использовать обмотку тканью определенного цвета. Смело привлекайте к процессу детей: совместные поделки укрепляют отношения и развивают воображение.

Отличный вариант маленького очага. Он более устойчив, поэтому его можно ставить не только у стены. Он прекрасно украсит прихожую. В топку можно положить связку веточек из парка, а для имитации огня вырезать пламя из цветной бумаги или положить короткие светодиодные гирлянды (можно с эффектом мерцания). Присутствие тусклого света от камина наполнит квартиру уютом и теплом.

Если позволяет место, то можно поставить большой фальш-камин высотой с человеческий рост. Каминную полку можно украсить тематическими фигурками и миниатюрной елочкой. На месте топки оставляем шкаф — размеры камина это позволяют. А вазочка со сладостями заменит притяжение мерцающего огня.

Если в квартире нет свободной стены для камина, то можно воспользоваться идеей угловой конструкции. Его создание не отличается повышенной сложностью, но здесь особое внимание уделяется геометрическим пропорциям. Гармоничным решением будет прямоугольный равнобедренный треугольник в основании треугольной призмы.
Декоративный камин своими руками из гипсокартона. Технология изготовления декоративного камина
Чтобы произвести портал для камина своими руками из гипсокартона, следует пройти пошаговую инструкцию: чертежные работы, проектирование каркаса, обшивка камина и декорирование.
Подготовка проекта и нанесение разметки
Чтобы сделать декоративный камин требуется ответить на несколько вопросов:
- В какой части квартиры будет располагаться камин?
- Каких размеров будет данная конструкция?
- Какие элементы декора будут составляющими данной конструкции?

Этапы монтажа камина из гипсокартона
При выборе места расположения это, в большей степени, гостиная. В самой большой комнате жилья камин может быть вдоль «глухой» стены или угловой. Всё зависит от габаритов помещения и от его интерьера. В маленькой комнате камин и место телевизора соединяют. Где основой под телевизор является верхняя часть данной конструкции.
А также, если камин небольших размеров, телевизор подвешивают на кронштейн над камином. Это не только экономит место, но и ощутим дизайнерский подход.
После выбора места, следует сделать замеры для будущего чертежа. В их основу ляжет размер камина по высоте и по ширине. Нишу для камина можно сделать небольших размеров, что будет выглядеть также оригинально. Но, если помещение позволяет, можно произвести портал натуральных размеров. Это будет не только красиво, но и функционально. Чертеж камина, обшитого гипсокартоном , делается поступательно, записывая каждый замер и ставя каждую точку.

Чертеж с размерами камина из гипсокартона
Основой камина является металлический каркас, создавая его собственными руками, можно камину придать форму отличную от стандартов.
Инструменты и материал
- профили для металлической конструкции под гипсокартон;
- ГКЛ;
- шурупы или саморезы ;
- дюбели для бетона или другие (в зависимости от базового покрытия);
- грунтовка для гипсокартона ;
- малярная сетка;
- лента серпянка ;
- наждачка для затирки;
- шпаклевка «Старт» и «Финиш»;
- материал для декора – искусственный камень, керамическая плитка, краска, лепка.
В случае задумки «сделать настоящий камин», для начала должна быть основа (дымоотвод и так далее). Приобретаемые материалы должны быть жаростойкими и огнеупорными. Требуется купить термостойкий гипсокартон для камина. Расчет требуемого материала происходит из размеров и чертежа. Это зависит, прежде всего, от размеров конструкции.

Варианты конструкции камина из гипсокартона
- набор отверток;
- нож для гипсокартона и лезвия;
- шуруповерт;
- рулетка;
- шпатели;
- ножницы для резки металла;
- дрель со сверлами.
Возможно, понадобятся гвозди, молоток, ножовка.
Сборка каркаса
Перед началом монтажа каркаса из металлических профилей надо нанести разметку на основу. Точки и линии наносятся с готового чертежа, с соблюдением всех заранее сделанных размеров. Не стоит пренебрегать миллиметрами, они в итоге могут сыграть важную роль. Точное снятие размера переносится в точности на угол или стену, а также на пол. Все переносимые линии должны быть четко ровными.
Для этого лучше всего использовать уровень и уголок. Пересечение прямых проходит под углом 90 градусов.
В противном случае возникнет кривизна конструкции, что грозит хлипкостью и непрочностью. В основном разметка для каркаса камина занимает немало времени и терпения, но это стоит того, потому как этот этап работы базовый.

Пример сборки каркаса из профиля для камина из гипсокартона
После выполнения разметки на базовой основе, следует заняться креплением основных профилей. Для этого используются дюбели-гвозди . Профили крепятся на стену по разметке, используя при этом уровень для ровности. Два НП ( направляющий профиль ) прикрепленных вертикально и 2 горизонтально. При этом нижний горизонтальный профиль основывает высоту парапета.
Теперь идет прикрепление профиля, который определяет топочную камеру. Контуры камеры должны быть обрисованы на основе в соответствии с размерами. Затем идет построение каркаса на полу. Установка передних стоек будет на таком расстоянии, какой обозначена глубина камина.

Чертеж и размеры глубины и ширины камина
Стойки спереди соединяются между собой поперечными профилями, которые лежат на одной плоскости с задними перекладинами. Передние и задние стойки соединяются перемычками в строго горизонтальном положении.
Теперь следует сделать парапет и перекладины, которые должны располагаться симметрично. Теперь в передней части конструкции следует поставить стойки для топочной камеры. Эти профили соединяются с основными профилями с помощью перемычек. В
Свод камеры
Для этого требуется профиль изогнуть в линию дуги. На профиле по бокам делаются надрезы через каждых 2 см. Все профили между собой закрепляются саморезами («блошками»). Если конструкция получилась недостаточно жесткой, надо поставить ребра жесткости (дополнительные перемычки). Для того чтобы каркас был идеально ровный используется строительный уровень и метр. Для вертикальной ровности используется отвес (подвешенный на нити грузик).
Источник: https://detali-interera.ru-land.com/stati/kak-sdelat-dekorativnyy-kamin-svoimi-rukami-kak-delat
Камин из коробок и обоев. Виды и размеры фальш-каминов
Все существующие лжекамины можно делить по нескольким критериям.
Также следует понимать, что все виды каминных порталов нужно рассматривать еще и с точки зрения долговечности . В этом случае они могут быть:
С точки зрения практичности можно выделить три вида каминов:
- декоративные. Эти модели изготавливаются лишь для украшения комнаты, и каких-либо других функций выполнять не могут. При их создании обычно используются недорогие и не особо прочные материалы, например, картон или пенопласт;
- полуфункциональные. Для этой разновидности применяются более прочные материалы: МДФ , гипсокартон и т.п. В этом случае камин может использоваться в качестве дополнительной полки для хранения декоративных мелочей, либо потайной ниши для встроенных шкафчиков, бара или сейфа;
- функциональные. Прочные материалы (кирпич, дерево и т.п.), используемые при их изготовлении, позволяют не только использовать фальш-камин в качестве полноценной полки, но и применять его для обогрева помещения. Конечно, бревна в нем зажечь нельзя, но вот разместить внутри обогреватель, либо радиатор отопления вполне реально.
Также можно рассматривать камины, лишь с эстетической точки зрения . В этом случае их классификация будет выглядеть несколько иначе:
- условные. Камина как такового нет, Есть его изображение на стене, либо номинальное обозначение границ очага, например, с помощью декоративных молдингов;
- стандартные. Наиболее популярная разновидность. В этом случае присутствуют все необходимые составляющие: каминная полка, ниша для дров, выступающие боковые стенки. Декор может быть разнообразным: покраска, отделка деревом, обоями или «под кирпич»;
- максимально реалистичные. В этом случае предпочтение отдается натуральным материалам. При этом соблюдаются реальные пропорции и размеры, чтобы готовый камин смотрелся предельно реальным.
Условный камин вряд ли будет функциональным, а вот стандартный или реалистичный вполне можно использовать любым способом.
Помимо этого, фальш-камины можно подразделять, отталкиваясь от их формы и размера :
- миникамины. Этот вид очень редко является отдельным самостоятельным украшением. Обычно их делают частью декоративной композиции, например, рождественской;
- угловые. Подходят для небольших помещений, так как занимают меньше места. При этом за счет крепления сразу к двум стенам они более устойчивы и надежны;
- прямые. Могут занимать до трети стены (размеры и пропорции приближены к настоящим каминам). Замечательно подходят для организации фотосессий и декорирования помещений.
Также следует понимать, что все виды каминных порталов нужно рассматривать еще и с точки зрения долговечности . В этом случае они могут быть:
- одноразовыми. Чаще всего такой декор изготавливают к новогодним праздникам и Рождеству. Такая форма камина выполняется из недолговечных и недорогих материалов (бумаги, картона, коробок и т.п.). После окончания праздничных мероприятий поделка отправляется в утиль;
- складные или переносные. Могут изготавливаться как из картона, так и из досок или МДФ. Устанавливаются при необходимости;
- стационарные. Жестко крепятся к стене и полу на постоянной основе. Являются неотъемлемой частью интерьера гостиной, спальни или детской.
Прежде чем браться за изготовление муляжа камина, нужно четко продумать конечный результат. Сооружение некоторых разновидностей фальш-каминов требует серьезных затрат финансов и времени.
Фальш-камин своими руками из старой мебели. Виды и размеры фальш-каминов.
Все существующие лжекамины можно делить по нескольким критериям.
Практичность
С точки зрения практичности можно выделить три вида каминов:
- Обогревательный камины - в них можно разместить обогреватель или радиатор отопления.
- Условный камины - не предназначены для использования.
- Стандартный или реалистичный камины - могут быть использованы любым способом.
Эстетика
Также можно рассматривать камины, лишь с эстетической точки зрения.
- Классический камины - предназначены для эстетического визуального эффекта.
- Модерн камины - сочетают функциональность и эстетическую привлекательность.
- Реалистичный камины - имитируют реальный камин.
Форма и размер
Также фальш-камины можно подразделять, отталкиваясь от их формы и размера:
- Каминные порталы - небольшие, обычно используются в интерьере.
- Большой камин - более внушительный, может быть использован в общественных пространствах.
- Мини-камины - компактные, подходят для маленьких помещений.
Долговечность
Помимо этого, фальш-камины можно рассматривать, отталкиваясь от их долговечности:
- Долговечные камины - могут использоваться на протяжении многих лет.
- Менее долговечные камины - могут потребовать ремонта или замены.
Прежде чем браться за изготовление муляжа камина, нужно четко продумать конечный результат. Сооружение некоторых разновидностей фальш-каминов требует серьезных затрат финансов и времени.
Чтобы избежать ошибок, нужно предварительно создать подробный эскиз с указанием размеров.
Для наглядности можно сделать «выкройку» из старых газет или обоев.
Такой подход поможет «увидеть», как готовая конструкция впишется в интерьер. На этом этапе будет проще откорректировать габариты и внешний вид поделки.
Фальш-камин своими руками из старой мебели. Виды и размеры фальш-каминов
Все существующие лжекамины можно делить по нескольким критериям.

С точки зрения практичности можно выделить три вида каминов:
- декоративные. Эти модели изготавливаются лишь для украшения комнаты, и каких-либо других функций выполнять не могут. При их создании обычно используются недорогие и не особо прочные материалы, например, картон или пенопласт;
- полуфункциональные. Для этой разновидности применяются более прочные материалы: МДФ, гипсокартон и т.п. В этом случае камин может использоваться в качестве дополнительной полки для хранения декоративных мелочей, либо потайной ниши для встроенных шкафчиков, бара или сейфа;
- функциональные. Прочные материалы (кирпич, дерево и т.п.), используемые при их изготовлении, позволяют не только использовать фальш-камин в качестве полноценной полки, но и применять его для обогрева помещения.
Конечно, бревна в нем зажечь нельзя, но вот разместить внутри обогреватель, либо радиатор отопления вполне реально.

Также можно рассматривать камины, лишь с эстетической точки зрения. В этом случае их классификация будет выглядеть несколько иначе:
- условные. Камина как такового нет, Есть его изображение на стене, либо номинальное обозначение границ очага, например, с помощью декоративных молдингов;

- стандартные. Наиболее популярная разновидность. В этом случае присутствуют все необходимые составляющие: каминная полка, ниша для дров, выступающие боковые стенки. Декор может быть разнообразным: покраска, отделка деревом, обоями или «под кирпич»;

- максимально реалистичные. В этом случае предпочтение отдается натуральным материалам. При этом соблюдаются реальные пропорции и размеры, чтобы готовый камин смотрелся предельно реальным.

Условный камин вряд ли будет функциональным, а вот стандартный или реалистичный вполне можно использовать любым способом.
Помимо этого, фальш-камины можно подразделять, отталкиваясь от их формы и размера:
- миникамины. Этот вид очень редко является отдельным самостоятельным украшением. Обычно их делают частью декоративной композиции, например, рождественской;

- угловые. Подходят для небольших помещений, так как занимают меньше места. При этом за счет крепления сразу к двум стенам они более устойчивы и надежны;
- прямые. Могут занимать до трети стены (размеры и пропорции приближены к настоящим каминам). Замечательно подходят для организации фотосессий и декорирования помещений.
Также следует понимать, что все виды каминных порталов нужно рассматривать еще и с точки зрения долговечности. В этом случае они могут быть:
- одноразовыми. Чаще всего такой декор изготавливают к новогодним праздникам и Рождеству. Такая форма камина выполняется из недолговечных и недорогих материалов (бумаги, картона, коробок и т.п.). После окончания праздничных мероприятий поделка отправляется в утиль;
- складные или переносные. Могут изготавливаться как из картона, так и из досок или МДФ. Устанавливаются при необходимости;
- стационарные. Жестко крепятся к стене и полу на постоянной основе. Являются неотъемлемой частью интерьера гостиной, спальни или детской.
Прежде чем браться за изготовление муляжа камина, нужно четко продумать конечный результат. Сооружение некоторых разновидностей фальш-каминов требует серьезных затрат финансов и времени.
Фальш-камин своими руками из старой мебели. Виды и размеры фальш-каминов.
Все существующие лжекамины можно делить по нескольким критериям.
Практичность
С точки зрения практичности можно выделить три вида каминов:
- Обогревательный камины - в них можно разместить обогреватель или радиатор отопления.
- Условный камины - не предназначены для использования.
- Стандартный или реалистичный камины - могут быть использованы любым способом.
Эстетика
Также можно рассматривать камины, лишь с эстетической точки зрения.
- Классический камины - предназначены для эстетического визуального эффекта.
- Модерн камины - сочетают функциональность и эстетическую привлекательность.
- Реалистичный камины - имитируют реальный камин.
Форма и размер
Также фальш-камины можно подразделять, отталкиваясь от их формы и размера:
- Каминные порталы - небольшие, обычно используются в интерьере.
- Большой камин - более внушительный, может быть использован в общественных пространствах.
- Мини-камины - компактные, подходят для маленьких помещений.
Долговечность
Помимо этого, фальш-камины можно рассматривать, отталкиваясь от их долговечности:
- Долговечные камины - могут использоваться на протяжении многих лет.
- Менее долговечные камины - могут потребовать ремонта или замены.
Прежде чем браться за изготовление муляжа камина, нужно четко продумать конечный результат. Сооружение некоторых разновидностей фальш-каминов требует серьезных затрат финансов и времени.
- Чтобы избежать ошибок, нужно предварительно создать подробный эскиз с указанием размеров.
- Для наглядности можно сделать «выкройку» из старых газет или обоев.
- Такой подход поможет «увидеть», как готовая конструкция впишется в интерьер. На этом этапе будет проще откорректировать габариты и внешний вид поделки.

Камин из коробок своими руками на новый год пошаговая инструкция. Что понадобится для фальш камина из коробок
У каждого человека уют в доме ассоциируется с домашним очагом. Но большинство городских жителей лишено возможности разжечь в доме огонь в камине, который бы придал новогоднему празднику больше тепла и сказочной атмосферы. Однако решить данную проблему довольно легко можно с помощью обычных картонных коробок от крупной бытовой техники.

Можно сделать новогодний камин из коробок собственными руками, потратив на то совсем немного времени. На это уйдет один вечер, если привлечь к такой работе все домочадцев, в том числе и детей.
Существуют разные способы изготовления такого интерьерного декора. При изготовлении камина из коробок, нужно понять, как проводить раскрой деталей. При изготовлении конструкции и одной большой картонной упаковки, в которую упаковывают большие плазменные панели или элементы сборной мебели, нужно будет только вырезать отверстие посередине.
Вся работа в том случае будет сводиться к измерению длины, нанесению на коробку нужных линий, загибанию деталей вовнутрь и фиксированию их в неподвижном положении при помощи скотча, клея или степлера.
Угловой камин из картона своими руками: пошаговая инструкция. Рождественский
Такой камин можно сделать из одной большой коробки , в этом случае достаточно просто вырезать топку и украсить портал на свое усмотрение, или усложнить конструкцию и склеить вместе коробки поменьше.
Пошаговая инструкция по созданию камина:
- Установить большую коробку по центру, остальные по краям.
- Склеить их между собой скотчем или хорошим клеем.
- Вырезать переднюю часть стенки самой большой коробки, здесь будет располагаться топка.
- При желании установить на пол дополнительный бордюр. Это небольшое возвышение тоже можно сделать из картона.
- Сверху на бордюр поставить камин.
Для рождественского камина понадобятся:
- 3 картонных коробки (1 большая и 2 поменьше, но одинакового размера);
- скотч;
- клей;
- ножницы.
Мнение эксперта
Бородин Василий Платонович
Печник-каменьщик, специалист по каминам, печам и отопительным системам
Если в наличии нет одинаковых коробок по высоте, придётся их подрезать. Делать это следует только с нижней частью, верхняя часть ни в коем случае не должна иметь провалов.
После того, как камин установлен, нужно приступать к украшениям.
Хорошим вариантом станет искусственный кирпич. Для этого можно использовать тонкий пенопласт. Лист пенопласта следует разметить на прямоугольники и аккуратно разрезать по чертёжу.
Если размеры камина позволяют, лучше вырезать прямоугольники, соответствующие размеру реальных кирпичей. В противном случае их следует сделать меньше.
Вырезанные «кирпичи» далее следует наклеить на камин. Делать это нужно в шахматном порядке, чтобы изделие было максимально похоже на настоящую кладку.
Когда все прямоугольники будут наклеены, следует дать клею полностью высохнуть и только после этого переходить к покраске. Делать это необходимо в несколько слоев, чтобы цвет получился максимально однородным. Если использовался бордюр, его обычно окрашивают в жёлтый или бежевый цвета. Кирпичи же в красно-коричневый или золотистый оттенки.
Мнение эксперта
Бородин Василий Платонович
Печник-каменьщик, специалист по каминам, печам и отопительным системам
Бордюр необходим для того, чтобы укрепить нижнюю часть камина. Она должна быть прочной и выдерживать вес конструкции и остальных украшений.
Укрепить такой бордюр можно, использовав специальные вставки, которые закрепляются внутри каркаса. Можно клеить их по всей длине через одинаковые промежутки или расклеить в произвольно порядке. Главное, чтобы они имели одинаковую высоту, иначе вес конструкции и остальных деталей будет распределен между ними неравномерно, а в этом случае самодельный камин не выдержит дополнительного веса длинный промежуток времени.
Нижняя часть должна быть на 10-12 см больше по длине и шире, чем сама конструкция камина.
Для её изготовления можно использовать два способа:
- Вырезать из картонки два листа одинаковых по размеру. На один лист наклеить поддерживающие ребра. Использовать для этого можно и клей, и двухсторонний скотч.
- Использовать плоскую коробку с небольшими бортами и наклеить внутри укрепляющие части.
Далее подставку нужно будет украсить. Для этого достаточно аккуратно украсить боковые панели. Использовать можно оригинальную плёнку с рисунком или обернуть подставку в обои. Приветствуется и покраска с нанесением оригинальных узоров.
Картонный камин к Рождеству и новогодним праздникам целесообразно раскрасить в красный и белый цвет, подставку можно при этом обернуть гирляндой или дождиком. Также можно обклеить её широким оригинальным плинтусом. Купить его можно в любом строительном магазине.