Начало строительства на участке. Участок под строительство дома
- Начало строительства на участке. Участок под строительство дома
- Строительство на земельном участке. Как расположить дом и хозяйственные постройки относительно красной линии и границы соседнего участка
- Нормы строительства ИЖС 2019. Правила застройки земельного участка под ИЖС в 2019 году
- Нормы отступа от границ участка при строительстве 2019. Нормы отступа от границ участка при строительстве дома
Начало строительства на участке. Участок под строительство дома
Для начала строительства нужно обладать определенным бюджетом и земельным участком. Если участка нет, а бюджет позволяет, его можно купить.
На что нужно обратить внимание, выбирая участок под строительство дома:
- личные интересы . В первую очередь задают направление для поиска. Возможно, с каким-то местом связаны воспоминания, или хочется участок возле воды, или в лесу и т.д.;
- местонахождение . Более востребованными являются участки, расположенные в черте города или на расстоянии 10-15 км от нее;
- размеры участка . Влияют на масштабность строительства. В строительстве придерживаются пропорции 1:10. Т.е., на участке в 6 соток уместно будет строительство дома в 60 м.кв. Соблюдение этой рекомендации или нет, решает владелец участка, но в случае продажи существенно повышает ликвидность недвижимости;
- наличие инфраструктуры . Даже если в планах полное уединение желательно, чтобы на территории застройки было расположено еще несколько строений, работал медпункт, магазин, школа и т.п. Особенно важно это в том случае, если дом предназначен для семьи с детьми и в нем планируется круглогодичное проживание;
- близость к транспорту . Для автовладельцев важно оценить качество подъездных путей, наличие/состояние асфальтного полотна. Чтобы не оказаться потом в ситуации, когда для того, чтобы добраться до дома нужно менять авто на другое, с более высоким клиренсом. Для тех, у кого машины нет, близость к общественному транспорту желательна;
- наличие коммуникаций . Есть ли возможность подключиться к центральному отоплению, водоснабжению, канализации. Проведены ли до участка линии электропередач. С такой ситуацией часто сталкиваются владельцы участков во вновь создаваемых поселках-сателлитах;
- состояние экологии в местности . Может оказаться, что проживание здесь чревато негативными последствиями (близость опасного производства);
- тип грунта . От него зависит выбор фундамента, возможность устройства колодца. На практике может оказаться, что данная почва вообще не пригодна для строительства тяжеловесных объектов. Т.е., летний домик или небольшую дачу на ней поставить можно, а возвести двухэтажный дом с мансардой – нереально.
- рыночная стоимость участка . Ее определяют все параметры в совокупности. Окончательная цена будет зависеть от хозяев участка и вашего умения аргументированно торговаться.
Совет. Определившись с участком, не поленитесь проверить юридическую чистоту документов, соответствие фактических размеров участка, с тем размерам, которые указаны в кадастровом паспорте. Вам могут продать территорию, фактически принадлежащую кому-либо другому.
Если ты планируешь строительство дома и присматриваешь себе участок, то это видео для тебя
Ситуация с участком может развиваться по двум сценариям:
Во-первых , на участке уже могут располагаться капитальные строения. Довольно распространенная ситуация – приобретение участка с уже возведенным домом. Сейчас речь идет не о его реставрации, а о сносе. Преимущество такого участка в том, что к нему подведены основные коммуникации. В этом случае, помимо указанных выше параметров, нужно проверить законность проведения коммуникаций.
Во-вторых , участок может быть не застроен. Этому варианту и уделим внимание.
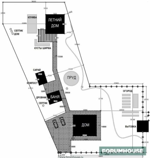
Строительство на земельном участке. Как расположить дом и хозяйственные постройки относительно красной линии и границы соседнего участка
Планировка участка начинается с разработки его подробного плана. Этап разбивается на ряд последовательных шагов:
- Берёте миллиметровку или разлиновываете лист бумаги в клеточку, соблюдая, для удобства, масштаб 1:100, т.е. 1 клеточка (1 см) – 1 метр. Если участок большой, то масштаб можно увеличить 1:200 (1 см – 2 м) или 1:300 (1см – 3 м).
- Наносите на чертеж границы заранее измеренного участка и линию дороги. Длину и ширину участка подписываете карандашом. Указываете стороны света.
- Отмечаете на плане расстояние от границы вашего участка (или намеченной линии забора) до соседних построек, например, спросив у соседей.
- Вооружившись рулеткой, измеряете размеры всех построек (бытовки, старого домика), которые уже есть на участке, и расстояние от них до границы вашего участка (линии забора). Наносите размеры на план.
- Отмечаете на плане, где находятся (или будут поставлены) въездные ворота и калитка. Если на участке растут деревья, которые планируется оставить, их также нужно нанести на план.

Главное — не игнорировать этап планировки и нанести на чертеж точные размеры границ участка и всех запланированных построек.
Теперь, зная размеры запланированного дома и построек, начертив их на плане, можно прикинуть, поместятся ли они на участке. Главное – нарисовать каждую мелочь, включая дорожки, место под огород, теплицы, газон и т.д.
Чтобы каждый раз не перерисовывать план, лучше, соблюдая длину и ширину, вырезать из куска картона «лекала» в масштабе 1см = 1 м — т.е. пятна застройки коттеджа, гаража, бытовки и т.д. Теперь, двигая «модели» по плану, можно легко менять их расположение относительно друг друга, красной линии или границы соседнего участка.
В зависимости от знаний, план можно начертить от руки или воспользоваться возможностями компьютерного программного обеспечения.

На фото ниже картинки хорошо сделанных планов участка.

План для узкого участка.

План участка на миллиметровке.

Итак, план нарисован, а загородному владельцу не терпится приступить к виртуальному заполнению объектами своей территории. Не торопитесь. Второй шаг — изучение документации, регламентирующей обустройство земельных участков. Как показывает практика, на этом этапе появляется масса вопросов. Приведем наиболее частые:
- Какие расстояния надо выдержать между различными постройками на участке.
- Какое противопожарное расстояние обеспечить между соседними домами.
- На каком расстоянии от забора и от дороги можно строить гараж.
Чтобы не лезть в дебри законодательства, упрощаем себе работу и записываем расстояния, которые необходимы для составления плана загородного участка, придерживаясь схемы:
- Расстояние от границы соседнего участка до дома и хозпостроек.
- Противопожарные расстояния до построек на участке соседей.
- Расстояние от дома до красной линии.
- Санитарно-бытовые расстояния, например, между домом и септиком, скважиной или колодцем.
Теперь изучаем следующие изображения.
Минимальные расстояния между объектами на участке.
Расстояние до красной линии – это расстояние, которое выдерживается от края проезжей части (края дороги), а не от забора, до загородного дома.

Т.е., если от дороги до забора (межи) выдержано пять метров, то дом можно построить на расстоянии трех метров от забора.
Примечание:
- минимальные расстояния от дворовых туалетов, помойных ям, выгребных септиков до соседнего дома – 4 м.
- минимальное расстояние от границ соседнего участка до открытой автостоянки – 1 м;
- минимальное расстояние от границ соседнего участка до отдельностоящего гаража – 1 м.
Минимальные противопожарные расстояния между домами на соседних участках.
Как пользоваться таблицей . Например, у вас и у соседа построены каменные дома (а). Значит, расстояние между коттеджами должно составлять 6 м. Если у вас дом типа (а), а у соседа дом типа (б), то между ними выдерживается расстояние 8 м. Между домом типа (б) и типом (в) уже выдерживается расстояние в 10 м, а между деревянными или каркасными домами 15 м.
Минимальные санитарно-бытовые расстояния от строений на участке до забора.
Соблюдение необходимых расстояний при строительстве дома и хозяйственных построек на участке в первую очередь необходимо самому застройщику. Например, в случае возникновения спорных ситуаций с соседями написавших жалобу в надзорные органы, а также для постановки коттеджа на кадастровый учет.
Нормы строительства ИЖС 2019. Правила застройки земельного участка под ИЖС в 2019 году
- Получение разрешение на строительство. Перед постройкой дома на участке вы должны получить соответствующее разрешение. Для этого сперва вам следует сходить в БТИ по месту жительства, чтобы получить план участка. Также вы можете заказать в БТИ план будущего здания. Если вы не доверяете БТИ, вы можете заказать план будущего строения в частной компании. После этого вам необходимо собрать документы для строительства дома на участке ИЖС — личный паспорт, план участка, план дома, а также любой документ, который подтверждает право собственности на землю. С этими документами вам следует посетить органы местного самоуправления и написать заявление. После этого вашу заявку рассмотрят, а в случае одобрения вам выдадут разрешение на строительство.
- Строительство дома. На данном вам вы занимаетесь постройка дома в соответствии с планом.
- Ввод в эксплуатацию. После постройки дома вам необходимо ввести дом в эксплуатацию. Для этого вы должны посетить органы местного самоуправления и заказать выезд на дом специальной комиссии. Эта комиссия должна проверить, что вы построили дом согласно плану строения (этот план вы подавали в органы местного самоуправления на этапе получения разрешения на строительство). Если все хорошо, то составляется специальный акт; вы этот акт подписываете и передаете в органы местного самоуправления. Если же во время строительства вы отступили от плана, то комиссия не примет такой дом (а такой дом нужно перестроить, чтобы он соответствовал плану). Если вы построили на участке дачный или садовый дом для сезонного проживания, то выезд специальной комиссии не требуется. Чтобы ввести такой дом в эксплуатацию, вам следует заполнить специальную декларацию, в которой следует отразить некоторые технические характеристики дома (тип материалов, размер стен и так далее); потом эту декларацию следует передать в органы местного самоуправления.
- Регистрация дома. Следует помнить, что после постройки вам необходимо внести данные о доме в Росреестр. Узнаем, как зарегистрировать дом на участке ИЖС — для этого нужно обратиться в отделение Росреестра, написать заявление и предоставить все необходимые документы (документы на землю, личный паспорт, план участка, план строения и некоторые другие); также вам следует оплатить госпошлину, которая составляет 1.200 рублей. После этого ваш дом зарегистрируют.
Нормы отступа от границ участка при строительстве 2019. Нормы отступа от границ участка при строительстве дома
Любой владелец земельного участка, частное или юридическое лицо, должен строго ограничить свою территорию , а также обезопасить себя от правовых казусов при постройке недвижимости на данном участке.
В первую очередь необходимо знать, на каком минимальном расстоянии отего земли (красной линии, забора) собственник имеет право сооружать дом либо хозяйственные постройки.
Нередки случаи, когда человек, приобретший дачный участок, застраивает территорию на свое усмотрение, не соблюдая отступы от края, которые регламентируются нормативными документами. Эта небрежность может обойтись судебным разбирательством вплоть до решения суда о переносе существующих построек.
Нормативная база
Законодательством Российской Федерации вопрос застройки земли, находящейся в частной собственности строго регламентируется нормативными документами.
Рассмотрим основные из них :
- СП 42.13330.2016 «СНИП 2.07.01-89* Градостроительство. Планировка и застройка городских и сельских поселений», утвержденный приказом Минстроя РФ №1034 от 30.12.2016 г. Данный Свод Правил больше регулирует городское строительство жилых и общественных зданий. Пункт 7 обозначает необходимые расстояния от хозяйственных построек (сараи для животных и т.д.) до окон жилых домов в черте города.
- СП 53.13330.2011 «Планировка и застройка территорий садоводческих объединений граждан, здания и сооружения», утвержденный приказом Минрегион РФ 30.12.2010 г. Пункт 6 данных Правил предусматривает застройку и планировку дачных участков.
- СП 30-102-99 «Планировка и застройка территорий малоэтажного жилищного строительства», утвержденный Постановлением Госкомстрой РФ №94 от 30.12. 1999 г. Пункт 5.3 регламентирует застройку приквартирных участков в городской черте и сельских населенных пунктах.
- Санитарные Правила СанПин 2.2.1/2.1.1.1200-03 . В этом документе есть приложения, где указаны допустимые минимальные расстояния от объектов хозяйственной деятельности (газопроводов, животноводческих ферм, очистных сооружений) до отдельных зданий.
- Федеральный закон о пожарной безопасности № 123-ФЗ от 22.07.2008 г. Глава 16 закона устанавливает требования к противопожарным отступам жилых зданий от объектов с повышенной пожарной опасностью (лесопарками, складами с горючими жидкостями, газопроводами и т.д.).