Дизайн однокомнатной квартиры 44 кв м. 44 кв. М со свободной планировкой: из однушки двушка
- Дизайн однокомнатной квартиры 44 кв м. 44 кв. М со свободной планировкой: из однушки двушка
- Планировка двухкомнатной квартиры 44 кв м. «Хрущевка»
- Интерьер однокомнатной квартиры 45 кв м. Холодные краски Скандинавии в мебели и декоре
- Двухкомнатная квартира 44 кв м дизайн. Дизайн двухкомнатной «хрущевки»: интересные идеи
- Дизайн двухкомнатной хрущевки 44 кв. Нестандартный и запоминающийся дизайн двухкомнатной хрущевки 44 кв. м.
Дизайн однокомнатной квартиры 44 кв м. 44 кв. М со свободной планировкой: из однушки двушка

Типичная современная квартира в монолитном доме, основное достоинство которой заключалось в отсутствии перегородок. Нарисовать новую планировку помогла дизайнер Евгения из дизайн-студии «Печёный».
Свободная планировка – это отсутствие каких-либо перегородок, которое предоставляет конструкция монолитного каркаса многоэтажного дома. То есть, в пустом пространстве площадью 44 кв. М дизайнер способен нарисовать любую схему расположения комнат как душе угодно. Дизайнер объясняет: «Перед нами стояла задача сделать из однушки двушку: вместить сюда спальню и гостиную-гостевую». Что получилось со слов дизайнера:
— Кухня с панорамным видом — просто мечта! Мы объединили лоджию с кухней, чтобы максимально увеличить площадь. Получилось и правда круто! Здесь чуть более 15 кв. м, есть телевизор и уютный диванчик, чтобы посидеть с друзьями или посмотреть за ужином кино в одиночестве.
Самым интересным решением стало пространство, отведенное для гостиной и спальни. Территорию, занимающую площадь половины квартиры, разделили на три зоны: гардеробную с выходом в прихожую и в спальню, спальное место с раздвижными дверями и гостиную. Самым большим помещением оказалась кухня-столовая, которая частично берет на себя функции гостиной – здесь также есть мягкий уголок и TV-зона.
Со слов дизайнера: «Обычно стараются оттенить чем-то белые фасады — ярким фартуком или стенами. Почему мы решили сделать всю кухню белой? Хотелось подчеркнуть воздушность интерьера, добавить простора. Очень маленькую комнатку лучше сделать максимально светлой, с однотонными стенами без крупных рисунков и картин. Светлая кухня не выглядит скучной и блеклой, потому что глазу есть за что зацепиться. Тут притягивают внимание молдинги на кухонных шкафчиках и стенах, золотистая фурнитура, плитка на полу, цветные мягкие стулья и цветочные принты в рамах в столовой зоне — пусть все эти детали не яркие, но они в совокупности делают интерьер кухни очень интересным и насыщенным».
Гостиная получилась небольшая – всего 8 кв. М. «Что поделать, – объясняет дизайнер. – Перепланировка однушки в двушку крадет место. Если разложить диван, то останется проход вдоль стены с телевизором. Но и цель достигнута: нам нужно было сделать изолированную комнату, в которой можно посидеть вечером с книгой или перед телевизором, и где могли бы при случае переночевать родственники или друзья. За дверью слева находится миниатюрная спальня – чтобы в нее хоть немного проникал дневной свет, мы сделали межкомнатные двери с матовыми стеклянными вставками. На границе этих зон установлен кондиционер».
А вот спальня размером с кровать. «Такая малютка, зато отдельная, – говорит дизайнер. – Чтобы расширить визуально пространство, мы сделали одну стену зеркальной — ту, что за туалетным столиком. Я знаю, есть люди, которым не понравилось бы спать напротив зеркала, но у заказчицы, к счастью, на этот счет предубеждений нет. Слева, за шторкой, находится большая гардеробная».
«Санузел редко входит в дизайн-проект, однако в этом случае заказчица решила не экономить на визуализации», – объясняет дизайнер. С ее слов, «здесь нет каких-то невероятных дизайнерских решений, могу только обратить внимание на идею с тем, как можно изящно вписать стиральную машину под столешницу с умывальником. Главный секрет в том, чтобы стиралка и мебель были одинакового цвета».

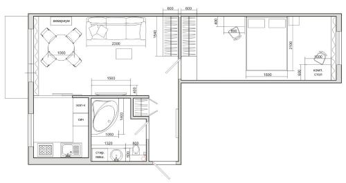
Планировка двухкомнатной квартиры 44 кв м. «Хрущевка»
Планировка двухкомнатной квартиры размером 44 квадратных метра исключительно неудобна. Крошечные кухня и санузел, коридор, в котором не разойтись 2 взрослым, низкие потолки требуют серьезных усилий для создания современного жилища.
Существует несколько видов планировки хрущевских «двушек». Самые распространенные имеют в плане форму вытянутого прямоугольника или буквы Г. Оба варианта спроектированы со смежными комнатами. Размер кухни составляет 5,2 – 5,5 кв. метра. Очень маленькие прихожая и санузел сочетаются с низкими потолками. Создавать современный комфортный интерьер приходится, изменяя планировку помещения. Объединение кухни и комнаты часто применяется в дизайне однокомнатной квартиры 44 кв. метра, однако такой метод допустим и в «двушке».

Важно! Перенести кухню и ванную комнаты невозможно. Зато «хрущевка» позволяет снести межкомнатные перегородки, не являющиеся несущими.
Интересный вариант перепланировки – отказ от коридора, ведущего на кухню, за счет чего возможно расширение санузла. Снос межкомнатных перегородок позволяет превратить кухню и комнату в единое помещение, выделив в нем 3 зоны: кухонную, столовую и гостиную.
Маленький метраж квартиры требует применения решений, визуально увеличивающих пространство. Сделать комнату шире помогут шкаф-купе с зеркальными дверцами, стол со стеклянной столешницей, стулья на тонких металлических ножках.
Перепланировка со сносом перегородок подходит только для семьи из 2 человек или для одного владельца. При наличии детей одна комната выделяется под детскую, вторая становится спальней и гостиной.

Важно! Возможность сноса перегородок зависит от расположения дверей и окон, наличия несущих конструкций, состояния дома.
Интерьер однокомнатной квартиры 45 кв м. Холодные краски Скандинавии в мебели и декоре
Добавить цвет в интерьер однокомнатной квартиры 45 кв. м. поможет мебель. Выбирать нужнохолодные северные цвета. В гостиной разместите мягкий черный раскладной диван, а напротив него плазменную панель.
Рядом с мультимедийной областью к барной стойке поставьте высокий стул мятного цвета. Дополнит обстановку белое удобное кресло и передвижной столик на колесиках синего цвета. Интересной деталью, создающей цветовой баланс будет полотно с абстрактными ромбами.

Совмещенная гостиная с кухней. Барная стойка и большие стулья. Белые стены — Фото
Кровать лучше поставить на подиум, в котором можно предусмотреть хорошее место для хранения постельных принадлежностей. Рядом с кроватью станут стилизованные тумбочки черно-охряной гаммы.
Легкие светлые занавески отделят спальню, не утяжеляя пространства, при этом они создадут уют и уединение.

Спальня с большой кроватью на подиуме — Фото

Спальня в скандинавском стиле с модным торшером — Фото
Совершенный белый цвет кухонного гарнитура оттеняет плитка фартука с узором ромбов и высокие стулья цвета мяты. Крупные фотографии животных в черно-белом исполнении, подчеркнут индивидуальность стиль квартиры.
Обозначить характер небольшой ванной комнаты с помощью белой плитки с кроссвордом довольно просто. Для пола подойдет черная плитка, а красок добавит дверь горчичного оттенка. Маленький балкон, оборудованный полочками для книг и армейскими ящиками, способными вместить разнообразные вещи, выйдет функциональным и комфортным.

Маленькая ванная 5-6 кв. м. совмещенная с туалетом. Подвесной унитаз — Фото
Получившийся в итоге интерьер демонстрирует, как можно разделить однокомнатную квартиру на функциональные зоны при использовании самых простых материалов.
Еще один совет : для освещения каждой секции квартиры используйте отдельный источник: торшер, центральную люстру, небольшие подвесные светильники. При необходимости вы сможете светом обозначить гостиную или спальню, создав иллюзию большого помещения.

Двухкомнатная квартира 44 кв м дизайн. Дизайн двухкомнатной «хрущевки»: интересные идеи
Ремонт «хрущевки» – настоящее испытание, особенно если из старой квартиры неудачной планировки хочется сделать современную и удобную. Главный враг старых квартир – узкий коридор, маленькая кухня, неудачное расположение дверей, проходные комнаты и, конечно, небольшая квадратура. Но на сегодняшний день можно реализовать даже самый смелый и необычный проект, и для этого совсем не обязательно быть профессиональным дизайнером. Достаточно проанализировать особенности квартиры, изучить ранее реализованные проекты и составить дизайн-проект.
Особенности
Построенные в середине прошлого столетия дома до сих пор остаются единственным жильем для миллионов семей. И на сегодняшний день кирпичные и крупнопанельные дома до пяти этажей считаются наихудшим архитектурным решением. Зачастую самым простым способом усовершенствовать удручающую планировку квартиры является снос межкомнатных перегородок. При некоторых планировках возможно объединить кухню и комнаты, прихожую и комнату, ванну и туалет. Это позволит расширить площадь квартиры, добавить несколько необходимых метров. Также в некоторых квартирах есть кладовая, которую можно объединить с жилой комнатой.
Размеры коридора обычно наводят тоску. Узкая и темная прихожая в редких случаях может вместить шкаф-купе, поэтому необходимо делать акцент на функциональности, по возможности избавиться от не несущих стен. Если санузел изначально раздельный, его стоит объединить. Тогда можно будет выделить место для стиральной машины и большой угловой ванны. Чтобы сэкономить пространство, можно отказаться от раковины или от ванны в пользу душевой кабины. Любая перестройка стен должна быть согласована со специалистом, независимо от того, в каком доме она проводится: крупнопанельном или кирпичном.
Особенности квартиры не дают возможности перенести кухню в другое место, но зато можно вынести обеденную зону в гостиную. Для этого можно снести перегородку между кухней и комнатой или сделать арочный проем. Такой широкий проход визуально разделит пространство и создаст эффект увеличения площади. Вместо большого вместительного стола можно оставить место на кухне для барной стойки, за которой могут комфортно разместиться до 4 человек.
Дизайн двухкомнатной хрущевки 44 кв. Нестандартный и запоминающийся дизайн двухкомнатной хрущевки 44 кв. м.
Создать нестандартный и запоминающийся дизайн двухкомнатной хрущевки 44 кв. м. - задача очень сложная. Дизайнер получил карт-бланш от хозяев на использование цвета, что помогло полностью изменить облик жилья. Веселое разноцветное пространство смотрится необычно и запоминается.
“Слабое место” в проекте двухкомнатной квартиры-хрущевки - планировка.
Стараясь удешевить строительство, архитекторы создали довольно неудобные жилые помещения, которые к тому же с трудом поддаются изменениям: перенести кухню и ванную комнату не только нельзя, но и, по сути дела, некуда. Зато внутренние перегородки, как правило, не являются несущими.
Чтобы интерьер 2-комнатной квартиры-хрущевки соответствовал современным стандартам комфорта, дизайнеры начали с того, что убрали коридор - его все равно невозможно использовать, он слишком маленький и узкий. Это помогло немного увеличить ванную комнату и кухонную зону, а также разместить во входной зоне систему хранения. Получилось свободное пространство, в котором функциональные зоны сменяют одна другую, оставляя в центре “кубик”, в который встроена сантехническая зона.

Цвета
Белый как основа дизайна двухкомнатной хрущевки 44 кв. м. дает возможность применять любые сочетания цветов и заодно зрительно увеличивает небольшие размеры помещения. Цвет натурального дерева, покрывающий пол и одну из стен, добавляет теплоты, уюта и вносит в минимализм квартиры эко- нотку.

Гостиная
Контрастные цвета - фиолетовый и желтый - задают тон в оформлении гостиной. Сюда вынесена столовая группа, поскольку размеры кухни не позволяют разместить в ней обеденную зону. Стол со столешницей из полупрозрачного стекла и изящной формы стулья на тонких металлических ножках выглядят воздушно и не утяжеляют восприятие пространства.
В интерьере 2-комнатной квартиры-хрущевки использованы различные приемы увеличения площади, как реального, так и визуального. Яркие обои с графическим рисунком занимают только одну стену - этот прием зрительно расширяет комнату по краям. Шкаф-купе имеет зеркальные двери, позволяющие углубить перспективу, увеличить освещенность и удвоить ощущение объема.

Кухня
Проект двухкомнатной квартиры-хрущевки не дает возможности перенести кухню, поэтому ее пришлось оставить на прежнем месте. Но вот стену, отгораживающую ее от остальных помещений, удалось убрать, и за счет этой операции площадь кухни немного увеличилась.
Фасады кухонной мебели - деревянные, классической формы, с филенками, и покрашены в очень нежный голубой тон - такое решение делает даже маленькое помещение просторным и уютным. Белая столешница рабочей зоны и бежевый фартук над ней добавляют света и тепла. Особенная “фишка” кухни - узорный “ковер” на полу. Он выглядит как настоящий, хотя собран из плитки.

Спальня
Дизайн двухкомнатной хрущевки 44 кв. м. отличается использованием ярких цветов, и в спальне это лайм. Текстиль интенсивного фиолетового цвета образует сочный контраст и придает нарядность простому по форме помещению.
Выкрашенная в белый цвет мебель визуально кажется менее объемной и тяжелой, чем есть на самом деле. Стена напротив кровати украшена ярким рисунком - круги одного размера покрывают всю поверхность, создавая ритмичный узор, позволяющий убрать центр внимания с дефектов планировки.

Постеры над изголовьем кровати добавляют в обстановку эко-стилистику. В интерьере 2-комнатной квартиры-хрущевки имеется существенный недостаток: спальня слишком узкая и длинная. Чтобы немного исправить ее форму, шкаф для одежды расположили напротив окна, вдоль стены с дверью. Над дверью появилась антресоль. В результате пропорции комнаты улучшились, и нашлось место для всего необходимого, причем оно практически не заметно и не портит интерьера.

Санузел
В изначальном проекте двухкомнатной квартиры-хрущевки санузел был маленьким, и ванная стандартных размеров в нем не помещалась. Поскольку коридор убрали, санузел расширили, и теперь здесь стоит угловая ванна большого размера. Пол под ней выделен плиткой коричневого цвета, контрастирующего со светло-серым оттенком стен.
Три вертикальные коричневые полосы поднимаются от пола по стенам к потолку и подчеркивают объем ванной комнаты. Такой же коричневой плиткой, имитирующей доски, выложена и стена над раковиной. Чтобы не утяжелять восприятие обстановки, дизайнеры постарались избежать лишнего: даже зеркало не стали обрамлять, чтобы не отвлекать внимание.

