Однокомнатная квартира 35 кв м планировка. Однушка 35 кв. м для семьи с двумя детьми
Однокомнатная квартира 35 кв м планировка. Однушка 35 кв. м для семьи с двумя детьми
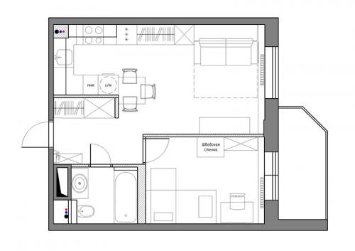
Изолированную комнату отдали под детскую, а в кухне-гостиной установили удобный диван-кровать и вместительную систему хранения.

Площадь однокомнатной квартиры в ЖК «Юнион» в Санкт-Петербурге, которую оформили специалисты бюро Cubiq Studio, составляет всего 35 м2. Жить в ней планирует семья с двумя детьми. Им могло бы быть тесно на скромной площади, если бы не главное преимущество квартиры. Коммуникации подведены в более глубокой и темной части большой комнаты. Благодаря этому удалось превратить её в кухню-гостиную, а маленькую изолированную спальню превратить в детскую.

Поскольку родителям предстоит спать в гостиной, дизайнеры выбрали диван-трансформер, который превращается в полноценную двуспальную кровать. Напротив неё установили комод под телевизор и пару открытых полок для книг.

Зону прихожей отделили от основного пространства нишей со встроенным шкафом для верхней одежды. А чтобы помещение не казалось тесным, в холле установили большое зеркало в белой раме, а проем оставили широким. Благодаря этому комната будто продолжается за пределы прихожей.

Кухонный гарнитур встроили в небольшую отведённую для него нишу. Выбрали максимально вместительную П-образную модель с минималистичными белыми матовыми фасадами. Верхние шкафы чуть уже, а нижние – вровень со шкафом, который как будто их продолжает. На самом деле это система хранения для всех вещей, которые необходимы большой семье.

Поскольку зона кухни уж очень тесная, одну из стен освободили от верхних шкафов. Вместо них предусмотрели открытые полки для зелени и специй. В качестве кухонного фартука здесь использовали грифельную краску.

В детской комнате появилась двухъярусная кровать, причём спальные места расположены перпендикулярно друг другу. Это позволило внизу обустроить дополнительные полочки и зону отдыха с пуфом-игрушкой. Рядом – письменный стол со всеми необходимыми принадлежностями.

Шкаф выбрали с открыто-закрытой системой хранения. Это позволяет хранить в нём и повседневную одежду, и игрушки с книжками. Предусмотрели и компактную шведскую стенку, которая занимает минимум места.


Хотите видеть больше подобного в своей ленте – ставьте лайк.
Чтобы регулярно смотреть свежие подборки интерьеров со всего мира, подпишитесь на канал .
Квартира студия с одним окном
Дизайн для квартиры-студии с одним окном разработать достаточно проблематично. Дело заключается не в размерах самого помещения, а в планировке. Окно в подобных квартирах располагается именно у короткой стены , а комната вытянута по длине.

Дизайн для квартиры-студии с одним окном
Чтобы обеспечить больше свободного пространства прибегают к использованию такого стиля как минимализм. Этот дизайн сдержанный в оформлении, определенной строгости, которая достигается путем выбора функциональной мебели, использования базовых цветов.
В оформлении подобных помещений важно не только обставить комфортно окружающее пространство, но и решить вопрос со светом. Из-за того, что квартира имеет всего одно окно , света может не хватать, но и этот вопрос можно решить, главное подойти к вопросу грамотно.
Чтобы наполнить пространство светом используют множественные световые приборы. Можно повесить один плафон, добавить к нему точечные светильники . Можно использовать усиленную подсветку стен. В прихожей зоне , на кухне используется дополнительное освещение.
Чтобы создать единый стиль, пустить больше естественного света внутрь помещения можно отказаться от штор . А чтобы окна выглядели более уютно, повесить жалюзи.
Отделка поверхностей каждой зоны должна быть более естественных цветов, они помогут расширить пространство.

Используйте больше светлых тонов
Самым светлым помещением в квартире-студии является гостиная зона. В гостиную зону помещается диван . Зависимо от размеров комнаты, диван может служить спальным местом. Если пространство позволяет вместить кровать, то ее ставят за перегородкой, чтобы создать уют. Оградить спальное место можно шкафом-купе , имеющим зеркальные двери. Кстати, визуально увеличить пространство можно за счет зеркальных поверхностей.
Кроме шкафов, системой хранения вещей в квартире студии могут служить :
Создать уют помогут декоративные элементы, такие как:
Но, декора должно быть немного, т.к. если перестараться, то помещение может показаться захламленным.

Растения, фото, постеры помогут добавить уюта интерьеру
Если необходимо разместить рабочее место, то лучше использовать оконные проемы. Кстати, это очень удобно, если шторы отсутствуют. Чтобы это организовать, достаточно установить широкую столешницу на подоконник.
Совет
Если квартира-студия небольших размеров, то визуально можно воспользоваться хитростью, поместив зеркало напротив окна.
Этот фокус позволит одновременно расширить визуально пространство, добавить света внутри помещения, наполнив его легкостью. Это были основные нюансы небольшой квартиры-студии с одним окном. Каждую зону стоит рассмотреть по отдельности.

Трехкомнатная квартира. Правила создания проекта по обустройству большой квартиры
Для квалифицированного дизайнера трехкомнатная квартира – это некая мечта, ведь здесь можно не сдерживать полет фантазий.

На начальном этапе рационально будет разделить комнаты квартиры по назначению, чтобы все, кто проживает там могли иметь личное пространство, в котором будут себя комфортно чувствовать.

Обычный дизайн – проект предусматривает разделение всего пространства на гостиную, спальню и детскую. В гостевой комнате для удобства размещают диван, а рядом рабочий стол. Если в семье нет детей, детскую используют, как библиотеку.
Для творческих людей выделяют отдельную комнату под мастерскую. Дизайн интерьера 3‑х комнатной квартиры может быть самый разный.

Перед выбором единой стилистики обязательно учитываются пожелания всех членов семьи. Идея должна подходить под их образ жизни и характер.
Цветовые оттенки для оформления, в проекте могут быть самые разнообразные. Каждая комната это отдельное пространство, тон, которого зависит от его предназначения.

Для оформления практично подбирать три основных оттенка главное, чтобы они не слишком отличались друг от друга.

Современный интерьер трехкомнатной квартиры разрешает использовать акцентные вставки и принты для декоративной отделки, главное не переборщить.

Любая из комнат большой квартиры уникальная и в каждой из них используются разные интерьерные и дизайнерские детали. Таким образом, появится возможность придать помещениям индивидуальности и оригинальности.

Подбирать элементы нужно со вкусом. Наша статья имеет галерею красивых интерьеров квартиры фото трехкомнатной.
