Как сделать печь для бани модели ВАЛДАЙ из трубы 530 мм
- Как сделать печь для бани модели ВАЛДАЙ из трубы 530 мм
- Связанные вопросы и ответы
- Что такое печь для бани модели ВАЛДАЙ
- Какие материалы необходимы для изготовления печи для бани модели ВАЛДАЙ из трубы 530 мм
- Какие инструменты нужны для изготовления печи для бани модели ВАЛДАЙ из трубы 530 мм
- Как выбрать подходящую трубу для изготовления печи для бани модели ВАЛДАЙ
Как сделать печь для бани модели ВАЛДАЙ из трубы 530 мм
Конструкция горизонтальной печи представляет собой собственно трубчатую камеру сгорания, с колосниками и поддувалом в одном корпусе, бак для воды и отделение для каменки. Устройство топки горизонтального исполнения позволяет максимум тепла направлять на подогрев каменки для набора пара в помещении бани.
Инструменты и материалы
В схеме с горизонтальным расположением камеры сгорания нам понадобится следующий материал:
- Обрезок трубы диаметром 500-530 мм, длинной 80-100 см, для парилки бани в двадцать кубов будет достаточно первого размера, если планируете прогревать и предбанник, можно взять длиннее на 10-15 см;

- Листовая сталь в 120х70 см, можно взять в двух одинаковых кусках. Металл можно брать с ржавчиной, главное – идеально ровная плоская поверхность, без следов деформации и отверстий. Толщина металла не менее 3 мм;
- Металлопрофиль, можно взять квадрат или швеллер, но чаще используют уголок № 50, на одну горизонтальную печь для бани уйдет примерно от полутора до двух метров профиля;
- Стальная арматура диаметром 6-8 мм, можно взять полуметровые обрезки;
- Стальная труба в 110 мм длиной в 150см и пара колен. Угол поворота и их количество нужно будет подбирать индивидуально, так что впрок набирать материал не следует;
- Два люка с навесами – для зольника и загрузочного окна топки;
- Кроме металла, потребуется пара десятков электродов для черного металла и с пяток электродов для работы по нержавейке;
- Три – четыре отрезных 125-х диска к болгарке.
Связанные вопросы и ответы:
Вопрос 1: Что такое печь для бани модели ВАЛДАЙ из трубы 530 мм
Ответ: Печь для бани модели ВАЛДАЙ из трубы 530 мм - это отопительное устройство, предназначенное для нагрева воды и воздуха в бане. Она состоит из трубы диаметром 530 мм, которая используется как камера сгорания, и других компонентов, таких как жаротрубный коллектор, дымоход и топливный бункер. Эта печь является эффективным и экономичным способом нагревать бани, так как она может работать на различных видах топлива, включая дрова, уголь и коксовый газ.
Вопрос 2: Какие материалы необходимы для изготовления печи для бани модели ВАЛДАЙ из трубы 530 мм
Ответ: Для изготовления печи для бани модели ВАЛДАЙ из трубы 530 мм необходимы следующие материалы: труба диаметром 530 мм, жаротрубный коллектор, дымоход, топливный бункер, огнеупорная керамическая плитка, огнеупорный раствор, металлическая сетка для топлива, дверцы для топлива и для углей, а также инструменты для работы с металлом, такие как сварный аппарат, шлифовальные диски и измельчитель.
Вопрос 3: Как установить печь для бани модели ВАЛДАЙ из трубы 530 мм
Ответ: Установка печи для бани модели ВАЛДАЙ из трубы 530 мм должна быть произведена профессиональным мастером. Перед установкой необходимо выбрать подходящее место для размещения печи, учитывая безопасность и доступность топлива. Затем необходимо собрать печь, соединив все компоненты, и установить ее на фундамент. После установки необходимо провести настройку и тестирование печи, чтобы убедиться в ее правильной работе.
Вопрос 4: Как запустить печь для бани модели ВАЛДАЙ из трубы 530 мм
Ответ: Для запуска печи для бани модели ВАЛДАЙ из трубы 530 мм необходимо подготовить топливо и загрузить его в топливный бункер. Затем необходимо закрыть дверцы для топлива и для углей, включить вентилятор и зажечь топливо. После зажигания необходимо регулировать подачу воздуха и температуру, чтобы достичь оптимального режима работы печи.
Вопрос 5: Как поддерживать печь для бани модели ВАЛДАЙ из трубы 530 мм в рабочем состоянии
Ответ: Чтобы поддерживать печь для бани модели ВАЛДАЙ из трубы 530 мм в рабочем состоянии, необходимо регулярно проводить ее техническое обслуживание. Это включает в себя очистку дымохода от сажи, проверку работоспособности дверцы для топлива и для углей, а также регулировку подачи воздуха и температуры. Также необходимо следить за состоянием топлива и его запасами, чтобы обеспечить непрерывную работу печи.
Вопрос 6: Каковы преимущества печи для бани модели ВАЛДАЙ из трубы 530 мм
Ответ: Печь для бани модели ВАЛДАЙ из трубы 530 мм имеет ряд преимуществ. Она является эффективным и экономичным способом нагревать бани, так как может работать на различных видах топлива. Она также имеет простую конструкцию и легко поддается регулировке, что позволяет достичь оптимального режима работы. Кроме того, печь модели ВАЛДАЙ из трубы 530 мм имеет высокую теплоотдачу и способна нагревать большую площадь бани, что делает ее особенно привлекательной для владельцев больших бани.
Что такое печь для бани модели ВАЛДАЙ
При выборе наиболее предпочтительного варианта трубы нужно учитывать внутреннее сечение и толщину стали. Для этого смотрим маркировку: например, указано «400*7», что означает 400 мм – диаметр, 7 мм – толщина стенки профильной трубы. Для банных печей рекомендуется применять трубы диаметром 500-600 мм и толщиной – 7-13 мм, но это не является обязательным, выбор размера металлической трубы зависит от площади парилки и требуемого объема воды.


Самый распространенный размер трубы для бани — 530 мм, такие установки считаются оптимальными для стандартных парилок. Некоторые бани не могут похвастать просторными парными, они используются, скорее, действительно, для мытья, а не для длительного отдыха, и тогда здесь размещают небольшие печки, например, диаметром 426 мм. Если пространство парной позволяет, то подойдет и труба диаметром 630 мм.
Вертикальная
Печи вертикального типа обычно обладают компактными размерами. Колосники и каменка находятся друг под другом, и потому диаметр печи представляет собой диаметр трубы. Изготовление этой разновидности не является сложным.


Горизонтальная
Сборка горизонтального варианта требует более трудоемкой работы. Для парных применяют трубчатые печи, они отличаются высокими показателями прочности и создают условия для эффективной теплоотдачи в воздух банного помещения.
Отличия вертикального и горизонтального типов печей:
- пламя в вертикальной трубе проходит короткий путь до дымохода в верхней части конструкции, раскаленные газы мало касаются боковин корпуса, а расположены большей частью в середине;
- горизонтальная разновидность допускает потоки горячего газа к верхней части установки, после чего газ за счет разрежения воздуха выходит в дымоход;
- конструкция вертикальной печи качественно прогревает стены парильни, но пол и воздух вверху помещения не способна прогреть эффективно;
- горизонтальный вариант прогревает все части пространства, кроме области, прилегающей к полу, и места под топкой.


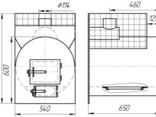
Перед созданием печи любого типа, но особенно горизонтального, требуется сделать грамотный чертеж будущего устройства. Нарисуйте схему изделия, укажите на ней все размеры, и четко следуйте этой инструкции. Ошибки, допущенные на этапе изготовления печи, могут повлиять не только на работоспособность установки, но и угрожать здоровью отдыхающих. К тому же это значительно упростит процесс монтажа.


Мастеру, который впервые решил заняться данной работой, лучше воспользоваться готовым чертежом или установить типовую модель.
Какие материалы необходимы для изготовления печи для бани модели ВАЛДАЙ из трубы 530 мм
Системы дымоотведения из нержавеющих стальных труб пользуются наиболее высоким спросом. Они прочные, безопасные, подходят для банных печей на всех видах топлива, не вызывают сложностей при монтаже, на гладких внутренних стенках практически не оседает копоть.
Преимущества дымоходов из нержавеющей стали:
- прочность, долговечность от 10 – 25 лет;
- не перегружают конструкции, не нужен фундамент;
- не подвержены коррозии за счет устойчивости к воздействию влаги, конденсата, продуктов сгорания;
- жаропрочность до 850 – 900 °C;
- не боятся морозов, перепадов температуры;
- ремонтопригодны.
Реальный срок службы сильно зависит от частоты протопок и режимов эксплуатации. Некоторые производители дают гарантию до 30 лет на свою продукцию!
К недостаткам дымоотводов из нержавеющей стали можно отнести относительно невысокую стойкость к механическому воздействию.
При производстве дымоходов из нержавейки используют несколько видов труб — одно стенные и трехслойные сэндвич системы с дополнительным контуром утепления.
Для изготовления дымоходов применяются в основном высокопрочные ферритные и аустенитные нержавеющие стали, легированных хромом, никелем и марганцем.
Дымоходы из нержавеющей стали наиболее массовые и универсальные и широко представлены следующими производителями, причем по ценам и маркам стали модели делятся на эконом и премиум:
- Торгово-производственная компания ECO FLUE (г. Дзержинский МО) предлагает широкий выбор бюджетных готовых дымоходов хорошего качества, включая сэндвич-трубы, принимает заказы на изготовление нестандартных моделей.
- Завод Вулкан (Санкт-Петербург) производит конкурентоспособные модульные дымоходные сэндвич-системы собственной конструкции с 1996 г. Срок службы изделий — 50 лет с сохранением герметичности, простой монтаж, стоимость высокая.
- Торговые марки Феррум и Крафт (Воронеж) — изделия этих марок из нержавеющей стали с начала 2022 г. занимают первую позицию по рейтингу популярности у российских покупателей.
- Компания Везувий (Подольск, МО) выпускает доступные по ценам дымоходы из нержавеющих, жаростойких легированных, эмалированных сталей. Плюсы оборудования — стабильно высокое качество, быстрая сборка, современный дизайн.
- Росст@Ин (Москва) — один из лидеров по продажам дымоходов из нержавейки. Долговечное и безотказное оборудование производится по новейшим технологиям из высококачественного материала.

Какие инструменты нужны для изготовления печи для бани модели ВАЛДАЙ из трубы 530 мм
Печь для бани из трубы – наиболее распространенный вариант отопительного прибора для парной любого размера. Такая печь качественно выполняет свои функции, она безопасна как на этапе строительства, так и во время эксплуатации. Главным преимуществом является возможность самостоятельного возведения такой печки.
При выборе конкретного проекта каменки нужно учитывать размеры и планировку парного помещения, а также личные предпочтения. Для парилки небольшой площади обычно рекомендуют устанавливать вертикальную печь из трубы.Это более компактный вариант, не занимающий много пространства в помещении. Конструкция такой установки предполагает наличие не только топочного отделения, но и дополнительного участка для закладки камней, а также водяного бака для нагрева. Внешне печка напоминает классическую буржуйку.
Если выбор пал на данную разновидность, то следует помнить, что представленный вариант имеет меньшие тепловые качества, а его топочные дверцы и поддувала размещаются в парном помещении.
Если позволяет площадь, то большее предпочтение стоит отдать горизонтальной разновидности. Здесь также имеются участки для закладки камней и емкость для разогрева воды, но дверки и зольник находятся в торце установки, и потому их можно разместить вне парного помещения, например, в предбаннике или за пределами бани, что значительно упрощает процесс растопки.
Площадь нагрева камней намного возрастает за счет большей длины данного варианта, в парилке повышается естественная конвекция теплого воздуха.
Среди главных достоинств стальных труб, используемых для банной печи, стоит выделить следующие:
- устойчивость покрытия при механическом воздействии;
- надежная теплоотдача;
- низкий коэффициент расширения при нагревании;
- способность к удержанию жара даже после прогорания дров;
- возможность применять любые типы топлива;
- минимум сварочных швов;
- быстрый прогрев парной.
Нельзя обойти стороной и пару недостатков металлических конструкций:
- металл прогревается быстро, но настолько же быстро он и остывает, то есть нужно довольно часто добавлять топливо для поддержания необходимой температуры воздуха;
- тепло распространяется по пространству помещения неравномерно.
Если сравнивать металлическую и кирпичную печи для бани, то последняя проигрывает в таких критериях, как скорость нагрева, вероятность отравления угарным газом, простота изготовления.
При выборе трубы из металла для отопления бани обратите внимание на следующие моменты:
- проверьте прочность конструкции;
- убедитесь, что на поверхности нет повреждений или коррозии;
- в случае обнаружения дефектов нужно выполнить усиление приваренными металлическими заплатками;
- можно сделать функциональные отверстия на коррозийных участках.
Не берите высокоуглеродистую либо легированную сталь. Они не подходят для изготовления печи. Предпочтительнее всего выбирать сталь с содержанием углерода до 2%. Вычислить высокоуглеродистый материал можно по состоянию искр во время трения поверхности о наждачку. Она имеет искры белого цвета в виде звезд, рассыпающихся в разные стороны, в то время как искры низкоуглеродистой стали отличаются желтоватым цветом и прямолинейностью. В случае такой же проверки легированная сталь будет иметь красные, оранжевые или ярко-белые искры.
Банные печи делают не только из металлических труб, но и из листовой стали. Чаще из данного материала выходит прямоугольная форма.
По сравнению с такой установкой круглая труба имеет следующие преимущества:
- металлическая труба значительно легче в плане изготовления – по сути, она уже и есть готовый топливник в отличие от листов, которые следует раскроить, порезать, собрать и сварить;
- трубы – наиболее экономичный вариант;
- процесс теплообмена с окружающим воздухом при наличии круглой банной печи происходит эффективней;
- с точки зрения движения дымовых газов, готовая круглая труба также оказывается более избирательной;
- срок эксплуатации круглой печи дольше, даже если сравнивать прямоугольную и цилиндрическую трубы из одного и того же материала.
Как выбрать подходящую трубу для изготовления печи для бани модели ВАЛДАЙ
Выше нам уже встречались цифровые обозначения типоразмеров труб. Теперь посмотрим подробнее, что они значат и как с толком воспользоваться этими сведениями для дальнейшего.
В спецификациях круглые стальные трубы всегда классифицируют по внутреннему диаметру; 2-я цифра обозначает толщину стенки, а следующие символы, если они есть, тип и особые характеристики. Для профильных труб первые 2 цифры максимальные размеры сечения, тогда 3-я – толщина стенки. Единицы измерения по умолчанию миллиметры; иные указываются явно. Напр., «корпус – труба 530х10» значит, что он сделан из трубы с внутреннимстенок 10 мм, т.е. внешний диаметр заготовки будет 550 мм плюс-минус 5,3 мм, т.к. допуск на поперечник обычной трубы дается 10% от внутреннего диаметра. В основном допуск расходуется на эллиптичность трубы.
Далее, толщина стенок может быть разной. Водопроводные трубы выпускают облегченными, обычными и усиленными. Но, к примеру, самая расхожая труба 530 выпускается со стенками толщиной от 6 до 12 мм с шагом в 1 мм; наиболее употребительные номиналы – 6, 8 и 10 мм.
Зачем все это знать? Чтобы правильно подобрать заготовки для печи. Оптимальный диаметр бытовой печки около полуметра, это позволяет получить как неплохую теплотехнику, так и достаточное удобство в работе. А для труб от 500 мм номинальный шаг типоразмеров – 10 мм, т.е. есть трубы 500, 510, 520 и 530; большие считаются уже трубами большого диаметра. Т.е., подобрав заготовки разного диаметра и с разной толщиной стенки, можно составить концентрическую конструкцию, части которой будут телескопически входить друг в друга с минимальным зазором. А набрать в поиске, скажем, «труба стальная водопроводная 510х8 обрезки купить» проще, чем гнуть обечайку из 8 мм листа, не так ли?
ГОСТ 10704–91 (трубы стальные прямошовные) и ГОСТ 20295 85 (трубы стальные со спиральным швом) задают диаметр труб от 1 мм; шаги размерной сетки для разных диапазонов типоразмеров имеют рекомендательный характер. Труба – одно из самых востребованных изделий вообще, и регламентировать их скрупулёзно было бы просто глупо. В диапазоне 250-400 мм ряд выпускаемых типоразмеров труб весьма обширен. Как это обстоятельство используется в трубно-печной самодеятельности – посмотрим ниже.
