Как сделать вентиляцию в гараже эффективной. Естественная система
- Как сделать вентиляцию в гараже эффективной. Естественная система
- Правильный вентиляция в гараже. Установка естественного воздухообмена
- Вентиляция погреба в гараже зимой. Особенности зимней вентиляции в погребе
- Вентиляция в гараже на одной стене. Устройство естественной вентиляции в гараже
- Вентиляция неотапливаемого гаража. Естественная вентиляция в гараже
- Естественная вентиляция в гараже. Выбираем тип вентиляции
- Как увеличить тягу вентиляции в гараже. Как сделать вентиляцию в гараже эффективной?
Как сделать вентиляцию в гараже эффективной. Естественная система
Естественная вентиляция в гараже должна планироваться ещё в процессе постройки сооружения. Если помещение уже выстроено и длительное время находится в использовании, его также возможно оборудовать вытяжкой. Перед тем как сделать вентиляцию в гараже, мастеру придётся сделать отверстия в стенах. Создать идеальную дыру не получится, потребуется цементный раствор и герметик.
Правильная вентиляция в гараже всегда учитывает качественный воздухообмен в подвале. Потребуется две пары труб, одна будет проветривать подвальное помещение, а другая – помещение для хранения автомобиля. Отверстия на входе устанавливают с одной стороны подвала на высоте 10 см и выше, а выходные каналы пробивают возле потолка на расстоянии 10 см, желательно на высоте 2 м от уровня пола.

Схема естественной вентиляции гаража
Окончание выходной трубы, которая будет находиться поблизости с полом, следует приподнять, обычно устанавливают на 50 см выше крыши. Конец входной трубы размещают на улице на высоте около 20 см над уровнем подвального помещения или в гараже несколько выше пола (10-15 см).
Согласно утверждениям специалистов, правильная вентиляция гаража своими руками обязательно оборудуется защитными элементами:
- решётка из алюминия предназначенная для защиты от попадания больших насекомых, мышей и крыс;
- насадки типа «зонтик» для ограждения трубы от дождя и снега;
- задвижки для регулировки уровня тока воздуха зимой, позволяющие открывать и закрывать воздуховод.
При монтаже вентиляционной системы своими руками рекомендуется соблюдать основные правила:
- правильно подбирать место. Важно создать выход труб с минимальным количеством изгибов;
- труба на выходе должна утепляться для избегания замерзания конденсата зимой;
- диаметр труб должен быть равномерный на протяжении всей вытяжной системы.

Схема естественной вентиляции гаража с погребом и смотровой ямой
Как улучшить работу естественной вытяжки гаража?
Если исключить из вентиляции вентилятор для ускорения обмена воздуха, для достижения стабильного и полноценного обновления воздушных масс следует придерживаться одного из двух способов: монтаж дефлектора, нагрев трубы на выходе.
После прогревания уменьшается вес тёплых масс в сравнении с воздухом, проступающим через приток. Он поднимается и выходит через канал вытяжки, а на смену приходит свежий воздух. Указанный принцип приводит к выравниванию давления внутри помещения и снаружи.
Чтобы прогревание воздуха сделать более эффективным, актуально для холодных гаражей, рекомендуется обработать вытяжку краской чёрного цвета. Благодаря максимальному нагреву стенок воздухопровода от солнца, воздушные массы подогреются и наступит более интенсивный воздухообмен. Если планируете окрашивание вентиляции, важно не выполнять теплоизоляцию, она нужна для прогревания воздуха лампой накаливания.
С приходом осени температура сильно уменьшается, автомобиль не испытывает трудностей от этого, а на функционировании вытяжной системы данный фактор сказывается крайне негативно. Двигатель в процессе остывания отдаст тепло за 1 час, уже через 2-3 часа температура стабилизируется, уровнявшись с уличной. Естественный метод вентиляции станет бездейственным.
Для сохранения достаточного уровня воздухообмена и предотвращения обледенения канала внутрь устанавливается лампа накаливания на 40 Вт. Процедура простая: соединить патрон под отверстием вертикальной вытяжки, вкрутить лампочку и подключить к сети. Благодаря создаваемому теплу, воздушные массы будут двигаться со скоростью от 0,2 до 0,4 м/с.

Лампа накаливания OSRAM 40 Вт E14
Поверх канала воздуховода укладывается теплоизоляция, по необходимости сверху наносится изоляция от влаги, при намокании теплоизоляционный материал потеряет часть технических характеристик. Если гараж большой, поставить одну лампочку может оказаться недостаточной мерой, воздух остывает быстрее, чем вытесняет другой.
Отметим LED-освещение и люминесцентные лампы не влияют на скорость воздухообмена, так как практически не выделяют тепло. Подходят исключительно лампы накаливания.
Правильный вентиляция в гараже. Установка естественного воздухообмена
Такая вентиляция ввиду простоты установки и дешевизны подходит многим. Ее принято использовать также для погребов.
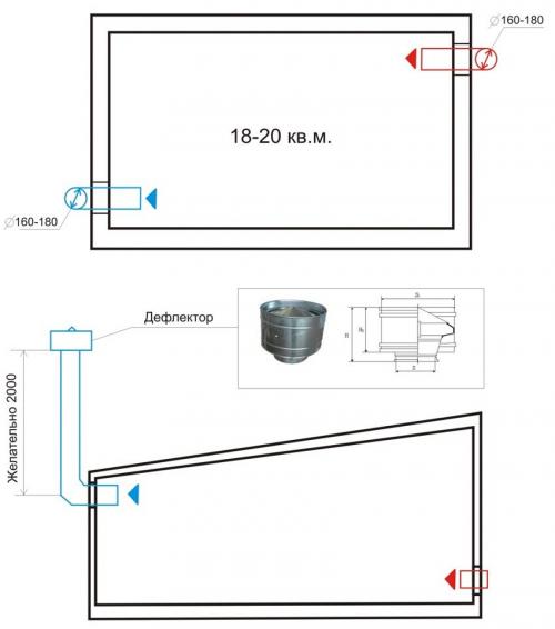
Установка вентиляции в гараже обязательно начинается с расчета.
Согласно СНиП, на каждые 10 квадратных метров площади должно приходиться 15 сантиметров диаметра воздуховода.
Например, размер гаражного помещения равен 5 на 4 метра. Площадь гаража будет равна двадцати квадратным метрам. Рассчитываем согласно формуле: 20*1,5=30 сантиметров.
В результате получаем диаметр каналов в 30 сантиметров. Если планируется установить две вытяжки и два приточных канала, следует уменьшить эту величину вдвое.
На рисунке показана вентиляция в гараже своими руками, схема показывает расположение вентиляционных проемов.
Схема вентиляции гаража
Следующий этап – подготовка проема для поступления воздуха. Делают его при помощи перфоратора на высоте около десяти сантиметров от пола. Правильная вентиляция гаража будет происходить при установке вытяжки в противоположной приточной стене, причем желательно, чтобы отверстие было сделано по диагонали.
При помощи перфоратора проделываем то же самое, только под потолком. Это необходимо, потому что труба вентиляции будет выведена над крышей помещения на высоту примерно пятьдесят сантиметров.
Высота трубы над крышей
Далее – обработка пустот между стеной и трубой герметиком. Для более качественного скрепления нужно выбирать герметик, позволяющий соединять разные материалы.
В самом конце установки необходимо позаботиться об оборудовании защитных приспособлений. Для предотвращения попадания грызунов и насекомых в свой гараж устанавливаются защитные решетки. От осадков поможет небольшая крышка или купол.
Таким образом, монтаж вентиляции обойдется примерно в 300 рублей. Стоит учесть, что естественный воздухообмен наиболее эффективен при температуре снаружи менее 10-12 градусов Цельсия.
Соответственно, в летнее время обмен воздуха будет малоэффективен. К тому же часто зимой происходит замерзание труб, что приводит к переохлаждению помещения.
Вентиляция погреба в гараже зимой. Особенности зимней вентиляции в погребе

Чтобы сохранить в хорошем состоянии продукты в подвале, необходимо учитывать такие параметры как температура и влажность. Если для обеспечения первого из них, необходимо утепление стен, потолка и дверей, то для избавления от сырости, должна быть сделана качественная вентиляция погреба зимой. Налаженная циркуляция воздуха, будет положительно влиять на микроклимат не только подвального помещения, но и того, которое размещено над ним, например гаража.
Вентилирование погреба выполняет две основные функции:
- Положительно влияет на сохранность продуктов.
- Избавляет помещение от сырости, потому что наличие конденсата провоцирует возникновение коррозии металлических конструкций, и грибка на стенах.
Какое вентилирование подходит для погреба в зимний период?
Если подвал небольшого размера(обычно 5-7 м²), то эффекта от работы естественного вентилирования для хорошей сохранности овощей и консервирований в холодную пору года, будет вполне достаточно.
Особенности воздухообмена зимой характеризуются повышенной тягой, которая уменьшается с наступлением потепления на улице.
Суть естественной: вытяжной и приточной. Край первой устанавливается под потолком, и через нее выходит наружу легкий теплый воздух, а вторая должна заканчиваться внизу, недалеко от пола, и при помощи данного канала осуществляется приток.
Естественная вентиляция может быть упрощена до сооружения с одной трубой — вытяжной. Также может быть еще более экономичный вариант, когда оборудуют в наружной стене отверстие, и заслоняют его решеткой-жалюзи.
Если погреб расположен в большом помещении, то произвольная вытяжка может не дать желаемого результата. Тогда на помощь придетдля нормализации влажности воздуха. Отличается она от естественного проветривания в применении вентиляторов. Безотказно действует данная циркуляция и в безветренную погоду.
Существует еще один метод принудительной вентиляции. В верхней части вытяжки, располагают турбину(), которая создает дополнительную тягу.
Потоки воздуха приводят ее в движение, и вращают вентилятор, усиливающий вытяжной эффект.

Вращающийся дефлектор
Перед установкой вентиляции у владельцев погреба может возникнуть вопрос, на каком виде остановиться. Дело в том, что если площадь относительно небольшая, то установка принудительной вытяжки может принести вред хранящимся продуктам: слишком активное проветривание может пересушить овощи и они потеряют свои свойства.
Правила монтажа естественной вентиляции
Идеально, когда монтируется вытяжка при постройке погреба, но если устройство своевременно установлено не было, то это не критично. Каждому хозяину будет под силу оборудовать это нехитрое сооружение в своем подвале.
Перед тем, как начать сооружать естественную вытяжку, стоит ознакомиться с некоторыми рекомендациями:
- Перед приготовлением к установке вытяжной и приточной труб, следует позаботиться об утеплителе для них. Это делается с целью избежания образования инея, а затем — конденсата. Особое внимание следует уделить именно вытяжной трубе. Чтобы она не закупоривалась наледью ее следует хорошенько утеплить снаружи. Можно использовать специальный пенополистирол для труб.
- Для приточной трубы лучше использовать конструкцию без изгибов или с минимальным их количеством, еще она должна быть без сужений и расширений.
- Необходимо, чтобы выведенная наружу приточка, имела защиту от попадания в нее снега. Также стоит побеспокоиться о сеточке на верхней кромке трубы, которая предотвратит проникновения грызунов.
- Чтобы равномерно в погреб поступали и уходили воздушные массы, диаметр приточной и вытяжной труб, должен быть одинаковым.
- Для защиты от переохлаждения подвала зимой, в трубах следует расположить раздвижные заслонки. В это время года необходимо дозировано вентилировать помещение, чтобы не переохладить содержимое погреба, и таким образом не принести продуктам вред вместо пользы.
Вентиляция в гараже на одной стене. Устройство естественной вентиляции в гараже

Естественная вентиляция железного гаража своими руками – это просто и недорого
Важно придерживаться основных принципов естественного воздухообмена в металлическом гараже:
надо располагать вытяжные отверстия так, чтобы поток воздуха попадал во все уголки помещения
Особое внимание смотровой яме;
объем свежего воздуха, который поступает в помещение, должен соответствовать объему, который из гаража выводится.. Средние показатели воздухообмена естественной вентиляции:
Средние показатели воздухообмена естественной вентиляции:
- для хранения автомобиля – площадь гаража 20 м2 – воздухообмен 180 м3/ч, 60 м2 – 350 м2/час;
- частые ремонтные работы в гараже и хранение автомобиля – 20 м2 – 200 м3/час, 60 м2 – 600 м3/час.
На практике сделать вентиляцию и расчет системы просто – 15 мм диаметра трубы соответствуют 1 метру квадратному площади гаража. Следовательно, для бокса, площадь 10 квадратов надо диаметр трубы – 150 мм, для 20 м2 – диаметр трубы – 300 мм.
Площадь всех вентиляционных отверстий для хорошего воздухообмена должна составлять 0,3 процента площади гаража – этого достаточно для стандартного металлического бокса.
Естественная вентиляция в гараже, как сделать правильно:
- вытяжки располагаем по диагонали, на противоположных стенах гаража;
- нижнее отверстие должно быть выше поверхности пола на 25 см;
- верхнюю вытяжку можно установить в крыше или ниже балки перекрытия на 20 см;
- старайтесь располагать верхнюю и нижнюю вытяжку так, чтобы поток воздуха проходил под автомобилем;
- если на крыше установить вытяжную трубу, то тяга будет сильнее. Для стандартного небольшого гаража высота трубы – полметра, для большого металлического ангара – не менее 1,5 метра. Обязательно закрыть воздуховод грибком от дождя и сеткой от грызунов и насекомых.

для естественной вентиляции можно использовать недорогие жестяные трубы или пластиковые. Асбестоцемент надежней, но и стоит дороже. Прекрасное решение – гофрированная труба, такая труба легко обрезается по размерам и установить ее самостоятельно нетрудно;
вытяжные трубы должны быть утеплены, чтобы зимой в них не скапливался водяной конденсат. Утеплить можно рулонной минеральной ватой с фольгированным покрытием или установить на трубы задвижки шиберы
Зимой можно регулировать поток воздуха, открывая нижний приточный шибер, а потом и верхний;
важно над верхней и над нижней трубой снаружи установить небольшой козырек, чтобы вода не затекала внутрь гаража.
Обязательно вытяжные трубы надо закрыть решетками снаружи, чтобы в них не попадала грязь, мусор и не пролезали грызуны.
Вентиляция смотровой ямы

Схема установки труб в подвале
Для смотровой ямы и для погреба в гараже система вентиляции должна монтироваться с соблюдением следующих правил:
- приточный воздуховод опускаем до полметра от уровня пола ямы, самая нижняя точка;
- вторую, выводящую трубу, устанавливаем над кровлей гаража (высота трубы один метр над крышей).
По аналогичной схеме устанавливается и естественная вентиляция погреба, как показано на рисунке.
Вариант простейшей естественной вытяжки в металлическом гараже

Если нет желания устанавливать трубы, то простейшую систему вентиляции можно сделать за два часа:
- определяем нужный диаметр двух приточных и одного вытяжного отверстий и их расположение;
- дрелью сверлим в железной стене отверстия, диаметр сверла 10 мм;
- красим просверленные отверстия водоотталкивающей краской из баллона. Сохнет сутки;
- теперь закрываем вентиляцию снаружи обычными вентиляционными решетками по размеру;
- решетки крепим на обычные болты с гайками.


На такую вентиляционную систему легко установить автоматическую электрическую вытяжку с таймером. Режим включения – по необходимости.
Как быстро проветрить гараж при ремонтных работах
Любой гаражник знает, что серьезные ремонтные работы по покраске и ремонту проводятся редко, поэтому монтаж дорогой вентиляции нецелесообразен. Как быстро проветрить гараж? Есть несколько простых и быстрых способов:
можно сделать в воротах или в стене отверстие по размеру выхлопной трубы. При ремонте на выхлопную трубку надеваем шланг и выводим его на улицу
Важно соблюдать герметичность соединения шланга и выхлопной трубы;
при покраске достаточно установить в гараже мощный вентилятор, высота установки 60 – 80 см.
Если в гараже часто проводятся ремонтные и лакокрасочные работы, то нужна принудительная вентиляция.
Вентиляция неотапливаемого гаража. Естественная вентиляция в гараже
Наиболее простым способом вентиляции гаража является естественная циркуляция воздушных потоков. Она основывается на аэродинамических законах природы, покоторым холодный воздух более тяжелый. Попадая внутрь помещения, он вытесняет собой более теплый, отработанный поток через вытяжные отверстия. Таким образом происходит воздухообмен. Специально оборудованная система естественного вентилирования называется аэрация.
Как правило, естественная вентиляция в гараже организовывается системой каналов. Вытяжная труба вентиляции располагается значительно выше притока, крыши гаража. Приточное отверстие часто монтируется внизу.
Работающая из-за разницы давления холодного, теплого потоков, естественная вентиляция в гараже практически неэффективна теплым временем года. Разница температуры внешнего, внутреннего воздушных потоков уравнивается, тяга ослабевает настолько, что движение масс прекращается.
Летом опасность представляет нестолько избыточная влажность (воздух более сухой), сколько скопление токсичных испарений от растворителей, краски, других технических жидкостей, которые с большой долей вероятности могут воспламениться.
Находящийся под строением подвал, погреб также перестает естественно вентилироваться летом. Внутрь могут попасть влага, вредные пары жидкостей, выхлопные газы автомобиля, что негативно скажется на качестве хранящихся продуктов. К тому же собирающийся конденсат станет повышать влажность гаражного воздуха.
Естественная вентиляция в гараже. Выбираем тип вентиляции
Есть несколько разновидностей вентиляций, которые можно воплотить в жизнь. Они имеют свои положительные и отрицательные стороны. Создание как одного, так и другого вида требует усилий и тщательного планирования. Давайте же рассмотрим эти виды:
- Естественная вентиляция в гараже. Это самый простой и эффективный способ проветривания гаража. Он заключается в естественных процессах, основанных на физических законах.

- Принудительная вентиляция. В этом случае используется целая система приборов (вентиляторы) благодаря которым и выполняется отвод отработанного воздуха и наполнения помещения свежим.

- Комбинированная вентиляция. В этом случае используется как один, так и второй вид вентилирования.
Мы обратим свое внимание именно на естественную вентиляцию. Для ее устройства потребуется наименьшее количество средств. В чем же принцип работы естественного типа вентиляции? Он основан на физических законах. Все знают, что теплый воздух поднимается верх, в то время как холодный опускается. Ниже приводится схема естественной вентиляции.
Как видно, система основывается на использовании двух труб или каналов, которые служат для вентилирования воздуха. Одна из труб – приточная, а вторая – вытяжная. При этом вытяжная труба находится у потолка погреба, а приточная на небольшом расстоянии от пола (не меньше 10 см). Итак, основываясь на законах физики делаем вывод: теплый воздух поднимается вверх и попадает в вытяжную трубу. В то же время свежий воздух подается через приточную трубу, замещая собой количество вышедшего воздуха. Таким образом и происходит вентилирование. Это напоминает процесс, при котором открывается одно окно на кухне и дверь на коридоре. Получается, что для гаража не потребуется установка дорогостоящего оборудования. Работы по созданию просты, воздухообмен происходит естественным образом.
Обратите внимание! Иногда на вытяжную трубу устанавливают дефлектор, который способствует лучшей циркуляции и усиливает эффект. Если такового нет, то в любом случае труба закрывается козырьком, чтобы внутрь не попадала влага. А вытяжная труба поднимается на 50 см над уровнем крыши.

Есть еще один важный момент, который способствует правильному функционированию системы. Речь идет о размещении труб внутри гаража. Очень важно, чтобы они располагались по диагонали в противоположенных местах. А еще важно рассчитать оптимальный диаметр отверстий. Ведь можно сделать сквозняк внутри, а не качественный воздухообмен. Есть некоторые стандарты, которые говорят о том, что на 1 м2 площади помещения нужно отверстие, диаметром 1,5 см. Например, если размер помещения 4х6 м, то его площадь будет равняться 24 м2. Путем несложных математических решений, получаем оптимальный диаметр вентиляционной трубы – 36 см (24х1,5=36). А если их будет две, что вполне логично, то рекомендуемый диаметр каждой трубы 18 см, так как сумма делится на два.

Многие считают этот вид вентилирования лучшим, так как для его воплощения не нужно много средств, а все работы можно сделать своими руками. Нужно только закупить трубы, сделать отверстия в стене и перекрытии, если таких нет, и выполнить установку системы вентиляции в гараже.
Обратите внимание! Вытяжное отверстие можно оборудовать заслонкой, чтобы выполнять контроль подачи холодного воздуха. Это особенно важно зимой.
Комбинированные вентиляционные системы
В проектах этого типа применяют естественный приток свежего воздуха. Для временного повышения производительности – устанавливают вентиляционную технику в канале вытяжки. Это решение дешевле по сравнению с комплексными технологиями. Но с его помощью можно получить хорошие результаты, если приходится использовать сложные воздуховоды.
Загрязнения быстро удаляются при наличии мощной приточно-вытяжной системы вентиляции в гараже
Такое оборудование потребляет электроэнергию, поэтому надо будет установить проводку, устройства защиты от бросков напряжения и перегрева мотора. При желании, комбинированную вентиляцию своими руками можно дополнить датчиками движения, таймерами. Они пригодятся для автоматизации запуска системы при въезде автомобиля, выключения после заданного интервала времени.
Как увеличить тягу вентиляции в гараже. Как сделать вентиляцию в гараже эффективной?
3 мин.
Вентиляция
Как сделать вентиляцию в гараже? Именно этот вопрос первым возникает у любого автовладельца. И неспроста, ведь наш гараж коренным образом отличается от «автодома» в любой другой стране мира. Мы храним в нем не только средство передвижения, но и дары природы, выращенные на даче. Здесь находят пристанище горы необходимых запчастей и инструментов для ремонта: как машины, так и дома. К тому же многие хозяева средств передвижения очень любят в гаражах устраивать посиделки с друзьями.
Поэтому вентиляция здесь жизненно необходима?
Но в этом уверены не все владельцы гаражей. И совершенно зря. Последствия отсутствия нормальной вентиляции скажутся очень скоро, ведь она помогает:
- избавляться от влаги, которая образуется при попадании в помещение мокрой грязи, налипшей на днище машины, дождя или снега;
- препятствовать коррозии;
- защищать человека от токсичных испарений;
- сохранять продукты питания — овощи и заготовки.
Наличие любой вентиляционной системы спасет человека и автомобиль от многих проблем.
Виды возможного воздухообмена
До того, как сделать вентиляцию в гараже, следует узнать о необходимой мощности воздушного потока, от него полностью зависит безопасность человека и техники. Минимальным показателем, прописанным в СНиП, является постоянный приток свежего воздуха в 180 л/час. Это российская норма. Западные правила строже вдвойне (360 л/час), потому как гараж там приравнивается к жилому помещению. На них и ориентируется большинство наших автовладельцев. Впрочем, вам принимать решение о необходимости тех или иных норм.
Существуют 3 вида:
- естественная;
- комбинированная;
- принудительная (механическая).
Именно из них вам предстоит сделать оптимальный выбор.
Естественная вентиляция
Очень популярная система у владельцев гаражей, потому что ее устройство не предполагает особых финансовых трат, да и работа не слишком сложна. Суть естественного воздухообмена в том, что потоки проникают и выбрасываются через два отверстия — приточное и вытяжное, — оборудованные в диаметрально противоположных сторонах помещения.
Для работы вам понадобятся:
- болгарка;
- перфоратор;
- трубы;
- решетки или колпаки.
Стадии монтажа
- Расчет площади вентканалов. Если гараж имеет размеры 6 х 3 м, то диаметр каждого канала должен быть 13-14 см.
- Берем перфоратор и проделываем с помощью него отверстие для приточной трубы. Располагается оно в 10-15 см от плоскости пола.
- Переходим к противоположной стене и устраиваем вытяжное отверстие, отмерив 10 см от потолка.
- Устанавливаем наши каналы. Минимальная высота части вытяжной трубы, виднеющейся над крышей гаража, составляет 50 см. Выше — лучше.
- Заделываем герметиком зазоры, образовавшиеся между трубами и стенами. Внешние концы труб закрываем решетками.
- Устанавливаем на вытяжку защитный колпак.
Реализация естественной схемы проста, но надо иметь в виду, что в летний сезон воздухообмен будет недостаточным. Поэтому стоит обдумать следующее решение.
Принудительная (механическая) вентиляция
Такая схема достаточно эффективно справляется со своими обязанностями. Расчета площади здесь не требуется, ведь основную работу выполняют встроенные вентиляторы. Объема поступающего воздуха будет достаточно для гаража любого размера. Зато придется приобретать недешевое оборудование, а система требует наличия электроэнергии.

Для подземных вариантов механическая система единственный вариант вообще. Хороша она в зимний период, так как позволяет оснастить гараж специальным оборудованием для подогрева морозного воздуха. Состоит она из:
- приточной установки, включающей фильтр, вентилятор и электрический калорифер;
- вытяжного оборудования, которое может быть представлено двумя вентиляторами или канальным вентиляционным устройством.
Замечательным вариантом принудительной вентиляции является установка моноблочной системы: два блока, составляющие единое целое, выполняют сразу все необходимые функции — поставляют свежий воздух, обрабатывают его и вытягивают. Расходы электроэнергии минимальны, потому что выработанное тепло используется для обогрева поступившего воздуха.
Комбинированная вентиляция
Ее можно назвать достойной заменой принудительной системы, так как комбинированная вентиляция совмещает естественную (приток и вытяжка), но отток воздуха происходит с помощью вентилятора, помещенного в воздуховод. Отработанный воздух выталкивается прочь вытяжкой, а его место занимает свежий, поступивший через приточный канал.


