Планировка однушки для семьи с ребенком. Основные способы зонирования
- Планировка однушки для семьи с ребенком. Основные способы зонирования
- Дизайн однокомнатной квартиры 30 кв.м для семьи с ребенком. Дизайн 1 комнатной квартиры для семьи с ребенком: удачное зонирование
- Дизайн однокомнатной квартиры с ребенком школьником. Дизайн квартиры-студии для семьи с ребёнком
- Дизайн однокомнатной квартиры для семьи с двумя детьми. Однушка 35 кв. м для семьи с двумя детьми
- Дизайн комнаты 16 кв м для семьи с ребенком. Как организовать спальное место для ребенка в однокомнатной квартире
- Дизайн однокомнатной квартиры для семьи с ребенком подростком. Общие принципы разделения
- Видео жизнь с ребёнком в однушке 30 кв м Рум Тур по однушке
Планировка однушки для семьи с ребенком. Основные способы зонирования
Все виды зонирования сводятся к двум основным:
- С использованием реальных отделяющих предметов.
- «Невидимое» зонирование.
Первый вариант – это всевозможные перегородки, фальшстены или просто мебель, выполняющая функцию разграничения.

Дизайн однокомнатной квартиры для семьи с ребенком необходимо продумать основательно.
В горизонтальном пространстве зонировать комнату таким образом выгодно в случае немалых кв м. Но, если позволяет высота потолков, такой тип зонирования отлично подойдет для создания дополнительного яруса.
«Невидимое» зонирование – это разделение пространства за счет разных цветов напольного и настенного покрытия. В случае небольшой однокомнатной квартиры – самое оно.

Учитывается все до мелочей, мебель располагается наиболее рациональным способом.
Особенности выбора стиля квартиры для семьи с ребенком
Справедливо, что для семьи с ребенком приоритетнее практичность, нежели стиль. Но разве стоит себе отказывать в эстетическом наслаждении? Предлагаем рассмотреть стиль интерьера, гармонично соединяющий в себе красоту с не меньшей степенью практичности.

С появлением в семье маленького ребенка еще больше увеличивается потребность в правильной планировке жилого пространства и увеличении его функциональности.
Стиль «Контемпорари»
Общие черты. Сочетание несочетаемого, да так, чтобы это было действительно красиво и удобно – в этом вся суть контемпорари.

В основу этого стиля легли скандинавский, конструктивизм и минимализм.
Это бюджетный вариант, в котором вы можете смело себе позволить недорогую мебель, простую однотонную отделку стен и полов.
Подойдет вариант даже с бабушкиной стенкой вместо новомодного шкафа-купе. Главное, чтобы мебель была удобной, вместительной и многофункциональной. Ведь красота в простоте и обилии свободного места. Так что забудьте о привычке складировать ненужные вещи. А увеличить пространство можно за счет максимальной функциональности, используя:
- Раскладной стол-трансформер.
- Модульную мебель.
- Раскладные формы диванов.
- Мебельную стенку.

Однокомнатное жилье, как правило, имеет небольшую площадь. Поэтому главным его недостатком является нехватка места.
Дизайн однокомнатной квартиры 30 кв.м для семьи с ребенком. Дизайн 1 комнатной квартиры для семьи с ребенком: удачное зонирование
Чем старше будет становиться ваше чадо, тем больших изменений будет претерпевать жилая комната.
Детское пространство растет вместе с ребенком
Для новорожденного не потребуется много места, достаточно определиться с расположением кроватки. Часто она соседствует со спальным местом родителей, что облегчает доступ в ночное время. Тогда граница между детской и взрослой зонами становится условной. Возможно, вам понравится идея укрыть пространство над кроваткой нежным балдахином.
Не забудьте также предусмотреть место для хранения вещей, необходимых для малыша. В идеале это должен быть комод, который будет выступать еще и пеленальным столиком. Если для комода места нет, выделите несколько полок в собственном шкафу.

Взрослея, малыш будет требовать вначале увеличения пространства для игр, потом установки письменного стола со стеллажом и стулом.
Обои с возможностью разукрашивания, как и грифельная доска на одной из стен или ее части создадут пространство для творчества и защитят остальную квартиру от художеств.
Удачным решением может стать использование двухъярусной конструкции: для спального места подойдет второй ярус, а стол с полками или стеллажом отлично впишется внизу под кроватью. Так вы сэкономите дефицитную площадь.

Где жить родителям?
Часто единственным вариантом спального места для родителей является раскладной диван, который можно сложить, тем самым освободив пространство для игр. Да, конечно, это не особо удобно, но, по крайне мере, более функционально.
Любителям нестандартных решений может приглянуться кровать-трансформер, которую при необходимости можно легко спрятать в специальную нишу. Это сэкономит драгоценную площадь и позволит максимально освободить комнату в дневное время. Единственным минусом является цена.
Помимо места для сна, нужна зона, где можно поработать, почитать, посидеть за ноутбуком. Если есть возможность, установите рабочий стол и кресло, если нет – обустройте удобное место на кухне. Для рабочих поверхностей вы можете задействовать подоконники. Более широкие модели или столешницы на заказ могут создать дополнительное место не только для работы, но и для занятий с малышом.
Между взрослой и детской зонами можно установить двухсторонний стеллаж, на полках которого хранить книги, игрушки и т. д.


Дизайн однокомнатной квартиры с ребенком школьником. Дизайн квартиры-студии для семьи с ребёнком
Сегодня без посторонней помощи не каждый может позволить купить себе «однушку» или квартиру-студию. Рассмотрим идеи как грамотно расставить мебель, предметы и поделить пространство, чтобы всем членам семьи было комфортно находиться в квартире.
Молодая семья из Санкт-Петербурга следующим образом оформила интерьер своей студии площадью в 27 квадратов. Они разрабатывали дизайн самостоятельно. Основной идеей было сделать полноценную детскую комнату, вместить двуспальную кровать, создать просторную гостиную. Вот, что у них получилось.

Для кухни молодые выделили небольшое место и отделили его от комнаты перегородкой. Просторная столешница заменила стол. Белые шкафчики подвешены к потолку. Микроволновка расположена на полке. Хоть все и впритык, но аккуратно и без лишнего «хлама».

Вместительная комната (17,9 м²) позволила создать просторную гостиную и детскую. Последняя зонирована гипсокартоновой перегородкой, возведенной не до потолка. Так не создаётся ощущения давления стен. Диван поставлен вплотную к стене, напротив — телевизор. Удачное сочетание синего, бежевого и белого цвета визуально расширяет пространство.

Маленькая спальная. Как говорится; «в тесноте, да не в обиде».

Пока ребёнок не вырос, ему здесь достаточно места. А через несколько лет, родители накопят на новую квартиру).

Гардеробная с вместительным комодом и коробочками из IKEA.

Дополнительное рабочее место в лоджии.

Ванная комната с сочетанием красной и белой плитки. Глубокая раковина в скандинавском стиле и натяжной потолок. Порошки и средства для мытья расположены на верхней полке.


Прихожая "в клетку" выглядит классически стильно, а тёмная плитка на полу гармонично сочетается с бежевыми дверями.

Подводя итог, можно отметить, что в целом квартира получилась уютной, у каждого члена семьи есть свой уголок. В гостиной — простор и отсутствует нагромождение предметов. Лоджия, как дополнительное место для работы, способна разгрузить пространство главной комнаты. Стильная ванная и классическая прихожая еще раз доказывают аксиому: «всё зависит от людей». Как часто бывает, что большие квартиры с дорогущей мебелью выглядят отвратительно и несуразно. А на эту маленькую квартирку приятно смотреть и через экран монитора.
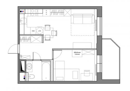
Дизайн однокомнатной квартиры для семьи с двумя детьми. Однушка 35 кв. м для семьи с двумя детьми
Изолированную комнату отдали под детскую, а в кухне-гостиной установили удобный диван-кровать и вместительную систему хранения.

Площадь однокомнатной квартиры в ЖК «Юнион» в Санкт-Петербурге, которую оформили специалисты бюро Cubiq Studio, составляет всего 35 м2. Жить в ней планирует семья с двумя детьми. Им могло бы быть тесно на скромной площади, если бы не главное преимущество квартиры. Коммуникации подведены в более глубокой и темной части большой комнаты. Благодаря этому удалось превратить её в кухню-гостиную, а маленькую изолированную спальню превратить в детскую.

Поскольку родителям предстоит спать в гостиной, дизайнеры выбрали диван-трансформер, который превращается в полноценную двуспальную кровать. Напротив неё установили комод под телевизор и пару открытых полок для книг.

Зону прихожей отделили от основного пространства нишей со встроенным шкафом для верхней одежды. А чтобы помещение не казалось тесным, в холле установили большое зеркало в белой раме, а проем оставили широким. Благодаря этому комната будто продолжается за пределы прихожей.

Кухонный гарнитур встроили в небольшую отведённую для него нишу. Выбрали максимально вместительную П-образную модель с минималистичными белыми матовыми фасадами. Верхние шкафы чуть уже, а нижние – вровень со шкафом, который как будто их продолжает. На самом деле это система хранения для всех вещей, которые необходимы большой семье.

Поскольку зона кухни уж очень тесная, одну из стен освободили от верхних шкафов. Вместо них предусмотрели открытые полки для зелени и специй. В качестве кухонного фартука здесь использовали грифельную краску.

В детской комнате появилась двухъярусная кровать, причём спальные места расположены перпендикулярно друг другу. Это позволило внизу обустроить дополнительные полочки и зону отдыха с пуфом-игрушкой. Рядом – письменный стол со всеми необходимыми принадлежностями.

Шкаф выбрали с открыто-закрытой системой хранения. Это позволяет хранить в нём и повседневную одежду, и игрушки с книжками. Предусмотрели и компактную шведскую стенку, которая занимает минимум места.


Хотите видеть больше подобного в своей ленте – ставьте лайк.
Чтобы регулярно смотреть свежие подборки интерьеров со всего мира, подпишитесь на канал .
Дизайн комнаты 16 кв м для семьи с ребенком. Как организовать спальное место для ребенка в однокомнатной квартире
Однокомнатная квартира — это привилегия не только молодой семейной пары или одинокого холостяка. К сожалению, довольно многие семьи с ребенком в нашей стране не могут позволить себе увеличить квадратные метры, поэтому приходится обустраивать интерьер однокомнатной квартиры с ребенком.
Где можно обустроить спальное место для малыша или уже повзрослевшего школьника? Какой уголок выделить для организации рабочего пространства или для занятий творчеством?
Если ребенок еще совсем маленький, то для разделения комнаты можно использовать один из способов, перечисленных выше — ширмы, шторы, раздвижные перегородки. Для детишек постарше придутся по душе следующие решения.
Спальное место в нише
Кстати, уютная ниша может служить местом для отдыха не только для ребенка, но и для родителей. Тщательно продумав конструкцию, всего на нескольких квадратных метрах можно организовать и спальное место, и рабочий уголок, и места хранения, задействовав весь объем (именно объем. а не площадь) выделенной зоны.
Для монтажа подобных конструкций можно использовать деревянные брусья и фанеру или металлический профиль и гипсокартон. Спальное место можно сдать как на обычном уровне (35-50 см от пола), так и на самом верху, но попасть туда можно будет только по лестнице или по ступенькам.



Спальное место на «чердаке»
Комната с ребенком в однокомнатной квартире может по-настоящему выиграть, если использовать ее по всей высоте: многоярусные конструкции, особенно в помещении с высокими потолками дают отличную возможность расширить границы и увеличить полезную площадь. Кровать-чердак порадует ребенка школьного возраста — там действительно можно обустроить уютное гнездышко.
А под спальным местом практичнее расположить места хранения или отдыха, рабочую или столовую зону. Также «первый этаж» может служить комнатой для родителей.




Кровать в шкафу
Если вы еще не поняли, как жить с ребенком в однокомнатной квартире, на выручку придет мебель-трансформер — идеальное решение для маленьких пространств. Спрятать спальное место можно в шкаф или сделать его выдвижным. На день кровать прячется в нишу или шкаф, а на ночь легко раскладывается. Днем на ее месте может быть рабочий стол или диванчик, которые закрываются ложем на ночь.
Современные производители предлагают кровати-транформеры на любой кошелек и вкус Кстати, подобное спальное место может быть организовано не только для ребенка. но и для родителей — так днем в квартире появится больше места.


Дизайн однокомнатной квартиры для семьи с ребенком подростком. Общие принципы разделения
Маленькая жилплощадь предполагает наличие обязательных функциональных зон – кухни, ванной комнаты, санузла, зоны сна и отдыха, рабочего места. Найти в таком ограниченном пространстве уголок для детской – задача не из легких.

Осуществить задуманное помогут основные правила планировки жилья и идеальные помощники зонирования:
- Расширение пространства. Единственным способом физического увеличения метража квартиры является снос межкомнатных перегородок. Задумав ремонт с демонтажем стен, следует позаботиться о законности такой перепланировки и утверждении проекта в соответствующих службах. Наиболее популярно объединение жилой комнаты с помещением балкона, лоджии, коридора или кухни (студия). Визуально же расширить пространство помогут панорамные окна, зеркала, светлые стены.
- Освещение. Квартира, в которой будет расти и развиваться ребенок, априори должна быть хорошо освещена. Тем более что правильный рассеянный свет добавляет помещению легкости и создает оптическую иллюзию простора.
- Лаконичный интерьер. Дизайн однокомнатной квартиры для семьи с ребенком должен обеспечивать комфорт, не перегружая и без того небольшое помещение массивной мебелью. Уютный эко-стиль, семейный прованс, лаконичный минимализм и многофункциональный хай-тек – идеальные варианты оформления интерьера малогабаритной квартиры.
- Цветовая гамма. Выделение разных зон помещения при помощи цвета и различных отделочных материалов – еще одна хитрость дизайнеров. В детской зоне будут уместны такие элементы, как яркий ковер, цветное покрывало, разноцветные подушки.
- Трансформация и многофункциональность мебели. Функциональная и эргономичная мебель – залог удачного зонирования. Чудеса мебельной трансформации позволяют не только экономить ценные жилые метры и моделировать пространство. Одно движение – и спальня превращается в кабинет, кровать – в уютный диван, часть шкафа – в рабочий стол.