Планировка трёшки в панельке П-44. Спальня
- Планировка трёшки в панельке П-44. Спальня
- П-44 планировка двухкомнатная квартира с размерами. Планировка с размерами домов серии П-44
- П-44 1/17. Особенности квартир в домах серии П-44: плюсы, минусы, планировки, ремонт
- Дизайн трехкомнатной квартиры п-44т с двумя детскими. Дизайн трешки в панельном доме без перепланировки
Планировка трёшки в панельке П-44. Спальня
Планировка трехкомнатной квартиры типа П 44 допускает проживание двух семей, но тогда и спален должно быть две. Они оформляются так, как этого хотят «хозяева». Кстати, если в квартире проживают дети, то количество спален определяется их возрастом и полом. Маленьким детям вполне будет достаточно одной спальни на всех. А вот если дети-подростки, да еще и разнополые, то каждому потребуется своя спальня. Тогда получится, что в квартире будет две детские спальни, а родителям придется отдыхать в гостиной. В общем, три комнаты, и все три – спальни.

В комнате для двоих детей у каждого ребенка должно быть своё личное пространство

При обустройстве подростковой спальни необходимо учитывать мнение владельца комнаты
Но даже если спальня одна, ее интерьер обычно очень отличается от всего оформления квартиры. Все более популярным для спален становится арабский стиль. Обилие различных натуральных тканей в отделке – это идеальное решение для комнаты отдыха.

Спальня в арабском стиле – выбор смелых и неординарных натур, способных раскошелиться на довольно дорогой интерьер
А поскольку в спальне находится минимум бытовой техники, мебель должна быть натуральной, например, из дерева или бамбука. Такое «естественное» окружение поможет расслабиться и «отключиться» от повседневной суеты.

На фото спальня в стиле прованс со встроенной мебелью из массива дерева
Детская спальня для самых маленьких должна быть, прежде всего, безопасной и многофункциональной. Это касается в первую очередь мебели.

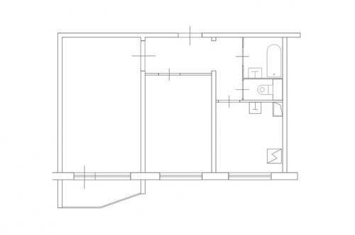
П-44 планировка двухкомнатная квартира с размерами. Планировка с размерами домов серии П-44
В серии жилых домов П-44 планировка с размерами квартир сделана с учетом опыта создания многофункционального комплекса. В проектах учтены потребности жильцов. Здания характеризуются удобной планировкой, изоляцией, декоративной отделкой.

Когда и кем спроектирована серия П-44
Типовая серия панельных зданий, разработанная в конце 1970-х гг. Московским институтом типового проектирования, производится строительной компанией ДСК-1.
Дома отличались:
- планировкой;
- наличием грузового лифта;
- большой кухней;
- оборудованием на первом этаже места для консьержа.
Зданиями П-44 застроены спальные районы Москвы. Первые 16-этажные постройки появились в 1975 г., а через 4 года развернулось массовое строительство, только с 17 этажами. Разработанный проект отличается удачной планировкой, поэтому в некоторых модификациях строится до сих пор.
Серия П-44т, состоящая из изолированных блок-секций, строится с 1997 г.
Здания отличаются:
- остеклением лоджий;
- лучшей теплоизоляцией наружных панелей;
- наличием эркеров;
- размещением вентиляционного отверстия с прихожей;
- высоким уровнем комфорта;
- качественной системой водоснабжения.
Дома этой категории соответствуют международным требованиям по пожарной безопасности. Фасадная часть строений облицована плиткой, имитирующей кирпичную кладку. Отделка стен выполнена в сочетании белого материала с бежевым, коричневым и синим цветом. Дом может быть согнут под углом 90º. В зданиях отсутствует арка.

Модифицированный вариант П-44К строится с 2006 г. Дома этой серии возводят в качестве муниципального жилья. На одном этаже расположено 4 квартиры с балконами. Нормативный срок эксплуатации здания составляет 100 лет. Здания П-44ТМ строятся с 2002 г. В них предусмотрено остекление лоджий и балконов. В 17-этажных зданиях 2-уровневая 4-комнатная квартира.
Характеристики планировки
Базовая модель дома П-44 возводилась до 1999 г. Панельный дом состоит из угловых и рядовых секций. Высота потолков составляет 2,64 м. В здании есть подвал, чердак для размещения инженерных коммуникаций, пассажирский и грузопассажирский лифт.
Наружные стены трехслойные с толщиной панели 300 мм. Внутренние изготовлены из железобетона толщиной 140 и 180 мм, гипсобетонные перегородки — 80 мм, перекрытия — 140 мм. На кухне и в санузле оборудована естественная вентиляция, а в поэтажных коридорах — система удаления дыма, отсутствует противопожарный балкон.
На каждой площадке есть мусоропровод с загрузочными клапанами. В квартирах этой серии изолированы все комнаты. На кухне установлена электрическая плита. В домах этой серии наружные стены смонтированы из 3-слойных навесных панелей, что улучшает теплоизоляционные параметры.
Между коридором и гостиной 3-комнатной квартиры конструкцией предусмотрен снос перегородки. Ванная стандартного размера длиной 170 см. В 1-комнатных квартирах совмещенные санузлы, а в 2- и 3-комнатных спроектированы раздельно.
Планировка с размерами
Планировочное решение зависит от серии здания.

В рядовой секции базового проекта на этаже расположено 4 квартиры:
- линейная 2-комнатная — площадь 50,2 м²;
- «распашонка» — 57,7;
- 1-комнатная — 38,4;
- 3-комнатная — 75,5.
В угловой секции находятся 2- и 3-комнатные квартиры. Проектом предусмотрены большие прихожие, кухни, площадь которых составляет 8 м². К недостаткам планировки относят маленькую гостиную — 11 м², стандартную высоту потолка — 2,64 м.
Однокомнатные квартиры
Общая площадь составляет 38,4 м² и состоит из таких помещений, м²:
- изолированной комнаты — 18,9;
- балкона — 0,80;
- кухни — 7,40;
- совмещенной ванны и санузла — 3,50;
- прихожей, коридора — 7,80.

Проектное решение стандартное, в санитарном отсеке свободно располагается бытовая техника.
Двухкомнатные квартиры
Общая площадь составляет 57,70 м², включает такие типы помещений, м²:
- жилые комнаты — 17,20 и 13,90;
- балкон — 2,20;
- кухня — 10,20;
- санитарный узел — 0,80;
- ванная — 3,00;
- коридор, прихожая — 10,40.
Проектом предусмотрено линейное расположение, где все комнаты расположены по 1 стороне здания, а окна выходят на противоположную от подъезда сторону. В «распашонке» есть большая кухня с эркером, а комнаты выходят на обе стороны здания.
Трехкомнатные квартиры
Жилые помещения изолированы, общая площадь составляет 76,50 м² и включает в себя такие помещения, м²:
- комнаты — 18,90, 14,50 и 11,30;
- балкон — 2,30;
- кухня — 10,20;
- санузел — 1,00;
Все 3-комнатные варианты имеют формат «распашонки». Комнаты с лоджией, есть вариант с эркерной конструкцией, что повышает освещенность помещений.
П-44 1/17. Особенности квартир в домах серии П-44: плюсы, минусы, планировки, ремонт
Серия жилых домов П-44 в свое время считалась революционной. Пик застройки пришелся в столице и области на 80-е годы прошлого века. Таких проектов раньше не делал никто, разработкой «с нуля» занимался МНИИТЭП. Впоследствии серия П44 получила несколько модификаций, а дома начали строить по всей стране.
В чем успех зданий серии П-44?
17-этажные дома строились на совесть генеральным подрядчиком ДСК-1, крупнейшей домостроительной корпорацией времен СССР.
Важная информация! Некоторые конструктивные особенности квартир и домов до сих пор применяют при современном строительстве.
Каркас здания возводился из железобетонных трехслойных панелей. Верхние этажи отделены от крыши техническим этажом, что гарантировало теплый чердак. Наружные стены облицовывалидвухцветной плиткой. Внутри было два типа лифта: пассажирский и грузовой. На входе в подъезд предусмотрено место для консьержа. Здание отличалось повышенной пожаробезопасностью, для каждого пролета предусматривалась система естественного дымоудаления.
Серия оказалась настолько удачной, что часть зданий до сих пор используются как гостиницы в Москве. Их возводили даже в суровых районах Коми, Карелии, Амурском крае. Кроме того, у домов был необычный для советских времен оригинальный дизайн и красивый внешний вид: высотки сразу узнавались издали.
Вам нужен ремонт?
Мы отремонтировали уже больше 500 квартир, с удовольствием поможем и вам
Узнать стоимость ремонта
Планировка квартир
Внутреннее оснащение здания тоже было на высоком уровне. Просторные кухни (до 10 кв.м), холлы (3 кв.м), удачная конфигурация квартир – все это привлекало покупателей. Все комнаты изолированные, за исключением двухкомнатных квартир. Проект предлагал выбор из одно-, двух- и трехкомнатных квартир.
Тип санузла зависел от апартаментов: совмещенный в однокомнатных и раздельный в остальных. Газовое снабжение отсутствовало, стояли электроплиты. В конфигурации квартиры внутренние перегородки всегда делались из гипсобетона, что в дальнейшем позволяло их легко переносить или менять. Наша компания «Сделано» неоднократно выполняла проекты в сериях П-44. Мы прекрасно знаем, как правильно сделать перепланировку с учетом особенностей этой серии.
Балконы были в каждой квартире по одному. В некоторые трехкомнатных квартирах предусмотрен второй балкон.
Важная информация! В этой серии вместо обычных металлических ограждений на балконах ставили ж/б.
Еще одна особенность: перегородка между кухней и гостиной в 1-комнатной квартире является несущей. Это надо учитывать, если планируется сделать проемы.
Комплексный ремонт квартир под ключ
Всё включено
В стоимость ремонта входит всё: работы, материалы, документы.
Без вашего участия
После согласования проекта мы беспокоим хозяев только при сдаче ремонта.
Цена известна заранее
Стоимость ремонта фиксируется в договоре.
Фиксированный срок ремонта
Ремонт квартиры под ключ за 3,5 месяца. Срок закреплен в договоре.
Подробнее о Сделано
Плюсы и минусы серии П-44 для ремонта
Среди плюсов назовем продуманные конфигурации помещений. В принципе, их можно назвать идеальными. Если комната не была изолирована (как в некоторых двухкомнатных), то в нее обязательно предусматривался отдельный вход из коридора.
Квартиры были площадью:
1-комнатные 37 кв. м.;
2-комнатные 50 кв. м.;
3-комнатные почти 74 кв. м.
В ранних выпусках перегородки делали из бетона без керамзита, который легко сверлить или модифицировать.
Основной недостаток домов всей серии – неровность полов, потолка и стен. Также жильцы жаловались на неудобные угловые квартиры и недостаток притока естественного света. Минусом (по нынешним стандартам) является наличие мусоропровода в подъезде.
В компанию Сделано часто обращаются жильцы этих зданий с просьбами косметических ремонтов. Перепланировку заказывают в основном санузлов и расширения коридора. Из-за того, что дома не газифицированы, тут легче проводить изменения конфигурации кухонь, лоджий и гостиных.
Важная информация! Цена ремонта фиксируется вначале и потом не меняется!
Специалисты компании работают на договоре услуг под ключ, гарантируя качество и сроки ремонта (от 3 месяцев до полугода).
Дизайн трехкомнатной квартиры п-44т с двумя детскими. Дизайн трешки в панельном доме без перепланировки
Если вы решили оставить изначальную планировку квартиры, то сделать ее функциональной и уютной помогут правильный стиль и хорошо подобранная мебель.
Дизайн прихожей
Как мы уже сказали, прихожая в такой планировке мрачная и темная. Можно исправить эти дефекты: добавить искусственного освещения и установить шкафы с зеркальными дверцами, чтобы визуально увеличить пространство и количество света.
Гостиная
Плохое освещение помогут исправить светлые цвета в оформлении. Используйте белые, бежевые и кофейные оттенки. Добавьте в интерьер светильники, чтобы подсветить темные углы комнаты. И постарайтесь не занавешивать окна тяжелыми тканями, лучше использовать легкие текстуры.
Спальни
Дизайн и функциональность спален определяется наличием в семье детей. Если детей несколько, родители могут расположиться в гостиной, а младшему поколению отдать остальные комнаты. Если дети одного пола и примерно одного возраста, можно поселить их в одну комнату. В таком случае испальни будет в одном стиле, и дети не заскучают.
Дизайн кухни
Кухня в таком типе домов необычная. Она совмещена с балконом и имеет эркер — остекленный выступ наружной стены. Поэтому вариантов планировки много.
В эркере можно оборудовать зону для готовки. Это непросто, но выглядит очень эффектно. Сложности могут возникнуть во время переноса мойки в эркер, так как для этого нужно изменить план коммуникаций. Такие изменения требуют разрешения, в котором вам могут отказать.
Для оформления кухонной зоны придется искать мебель подходящей формы. Если выбрать сплошную столешницу, эркер перестанет быть ярко выраженным и визуально сольется с другой мебелью на кухне. Для кого-то это может быть недостатком, так как тогда уникальность планировки не будет заметна.
Простой вариант оформления эркера — продлить кухню и оформить в выступе столовую зону.
Можно обустроить зону для отдыха, в которой будет дополнительное место для хранения вещей.