Ремонт в панельном доме в трехкомнатной. Стоимость капитального ремонт 3-комнатной хрущёвки "под ключ" (работа + материал)
- Ремонт в панельном доме в трехкомнатной. Стоимость капитального ремонт 3-комнатной хрущёвки "под ключ" (работа + материал)
- Ремонт кухни в панельном доме. Как увеличить площадь кухни в панельном доме?
- Ремонт в панельной девятиэтажке. Делаем прихожую больше
- Особенности ремонта в панельном доме. Особенности ремонта в квартире панельного дома.
- Ремонт двухкомнатной квартиры в панельном доме. Дизайн двушки в панельном доме
- Ремонт квартир в Москве под ключ
- Ремонт старой квартиры в панельном доме. Разница в затратах и особенности
- Видео начало ремонта в панельном доме
Ремонт в панельном доме в трехкомнатной. Стоимость капитального ремонт 3-комнатной хрущёвки "под ключ" (работа + материал)

Самое примечательное в этом ремонте - он происходил в 2 этапа. Это и не удивительно, совсем непросто сразу найти деньги и возможности на полный ремонт трехкомнатной квартиры в которой проживаете. При заключении договора с заказчиками мы сразу оговорили оба этапа:
1. Ремонт жилой части.
2. Ремонт кухни, ванной и прихожей.
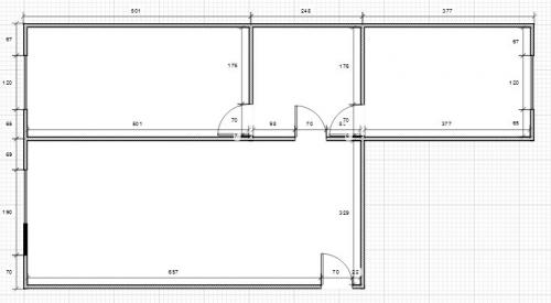
Сегодня я хочу подробнее остановиться на первом этапе, так как он был закончен пол года назад, а ко второму мы приступили только 10го июня. Ниже прикрепляю планировки до и после ремонта:

До ремонт

После ремонта
Проходной зал, две спальни разного размера и самостройная кладовка из ДВП. Ремонт требовался капитальный, меняли всё, кроме окон, пластиковый стеклопакет уже стоял до нас. Этапы ремонта:
1. Демонтаж. Осложнялось всё тем, что обои были приклеены прямо к бетонным панелям на какой-то сверх прочный клей. Если бы не было специальной жидкости - обои бы снимали неделю.
- Стоимость материалов: 2 000 рублей Стоимость работ: 15 000 рублей

2. Штробление и замена электропроводки . Кирпичные дома легче поддаются капитальному ремонту электропроводки. По наружке пускать провода - не серьёзно, а бетонные панели штробить дольше и тяжелее, чем кирпич. Даже если есть штроборез, пылесос и профессиональные диски - кирпич штробится быстрее, чище и менее затратно.
- Стоимость материалов: 22 000 рублей Стоимость работ: 25 000 рублей
3. Перестраивание кладовки и организация дверных проёмов . У всех панельных хрущевок есть особенность, которой лишены её кирпичные близнецы - дверной проём во всю высоту потолка:

На выходе из проходного зала мы собрали полуарку, а дверные проёмы в спальни вывели гипсокартоном на стандартный уровень под установку дверей. Так же полностью перестроили кладовку.

Полуарка

Возведение стены кладовки

Полуарка в зале.
- Стоимость материалов: 8 000 рублей Стоимость работ: 10 000 рублей
4. Штукатурка, шпаклевка и шлифовка стен . Тут всё стандартно.

- Стоимость материалов: 26 000 рублей Стоимость работ: 38 000 рублей
5. Натяжной потолок и поклейка обоев . Заказчики долго решали какое количество светильников будет в каждой из комнат и какого они будут дизайна. В зале кроме светильников повесили люстру, освещение работало от трёх клавиш - две зоны точечных светильников и одна на люстру.


- Стоимость материалов: 58 500 рублей Стоимость работ: 31 000 рублей
6. Полы и финишные работы . Линолеум, ламинат и другие напольные покрытия мы всегда оставляем на конец, кто-то делает полы в середине, но это не правильно, большой риск повредить или испачкать покрытие.
Вывод : нами была проведена небольшая перепланировка, в результате чего, без потери полезного пространства, мы отделили зону отдыха в зале от проходной зоны между комнатами. Так же пикантности придаёт наличие полуарок в проёмах. Заказчики подобрали очень подходящие друг к другу обои и линолеум, в результате чего ремонт получился весьма и весьма элегантным. Напортачил только установщик дверей от магазина, где были приобретены двери. Памятка всем заказчикам – тщательно проверяйте подобные работы, ведь установщика дверей вы не будете рекомендовать своим друзьям и родным, каким бы профессионалом он не был. Он попросту не заинтересован делать свою работу безупречно.
Общая стоимость работ по первому этапу - 119 000, стоимость материала - 116 500.
Ставьте "Нравится" и подписывайтесь на канал, впереди ещё много полезного и интересного.
Ремонт кухни в панельном доме. Как увеличить площадь кухни в панельном доме?
Первостепенная задача, которую необходимо решить в процессе внесения изменений в планировку кухонной зоны в жилом доме, это максимально возможное увеличение пространства.
При всей сложности задачи ее вполне по силам разрешить и достигнуть ощутимых результатов даже без сноса перегородок и объединения кухни с гостиной комнатой. Для этого необходимо совершить несколько относительно простых действий.
- Для начала следует демонтировать дверь и заменить ее аркой. Это позволит сделать пространство дизайна кухни в панельном доме немного просторнее.
- Нужно поменять устаревшие чугунные батареи на современные, стильные и технологичные радиаторы нового поколения. Вы будете удивлены, когда увидите, сколько места занимали радиаторы предыдущего образца. Дизайн кухни 9 метров в панельном доме фото идеи:




- Наличие кладовки в непосредственной близости от кухни – замечательная возможность. Можно пробить в стене кладовой, которая соприкасается с кухней, отверстие, и установить там мойку.
- В ситуации, когда в зоне кухни находится дверь на лоджию, есть возможность ее демонтировать, а вместо подоконника поместить столешницу или стойку, как в баре. В итоге можно увеличить площадь приблизительно на 2 кв. м. Смотрите дизайн кухни с балконом в панельном доме:



- Дизайн кухни в панельном доме с окном. Окно тоже можно расширить за счет светового проема. Чтобы это стало возможным, необходимо сделать выбор в пользу металлопластиковых окон с узкой створкой.
Если вы обладаете определенными знаниями и опытом, то все эти изменения в планировке можно осуществить самостоятельно, к тому же, это не займет много времени.

Ремонт в панельной девятиэтажке. Делаем прихожую больше
Перед вами - типичная прихожая в современном панельном доме: узкое, неприхотливое помещение, которому отчаянно не хватает света. Между тем, есть масса способов визуально увеличить пространство - жаль, что многие хозяева прибегают к ним не так часто, как хотелось бы.
В этом примере также отмечаем крохотный размер прихожей, что в панельном доме уже приобрело характер нормы. Выбор цвета оправдан полностью: светлые тона помогают несколько обмануть наше восприятие и зрительно увеличить помещение.

Зеркальные поверхности не только изысканно декорируют прихожую, но и существенно расширяют ее границы. Особенно выгодно с точки зрения оптимизации пространства в небольшом помещении их размещать на шкафах-купе встроенного типа.
Другой распространенный способ - игра на контрастах. Использование оттенков диаметрально противоположных температур помогает избавить помещение от чрезмерной компрессии, а так же добавляет дизайну лоска и привлекательности.
Если размеры помещения стесняют, важно правильно подобрать основное цветовое решение. Дабы не сделать только хуже. На фото довольно уютная прихожая с особым, домашним колоритом. Хозяева правильно подобрали обои, предпочтя подчеркнуто светлый бежевый тон каким-нибудь модным фотообоям в прихожей .
Массивные зеркальные панели зрительно делают прихожую шире - выше мы уже отмечали это. Немного дополним это древнее как мир дизайнерское правило: в сочетании со светлым оформлением стен и в тон подобранной мебели достигается максимальный эффект расширения тесного и узкого пространства.
Держите свою обувь в порядке - смастерите для нее полку своими рукам и либо приобретите в магазине. Польза от нее будет существенна, ведь неряшливо разбросанные сапоги, кроссовки, туфли да и просто размещенные на полу вещи имеют обыкновение скрадывать свободное пространство.
Выложенная по диагонали напольная плитка - также в числе основных и действенных способов расширения узкого пространства.
Избегайте ярких обоев с крупными рисунками. Разумеется, дизайн прихожей в вашем панельном доме нельзя ограничивать строгими рамками, что зарубит оригинальность на корню, но держать в уме это негласное правило стоит.
Особенности ремонта в панельном доме. Особенности ремонта в квартире панельного дома.
Жилой фонд в домах советского периода по-прежнему пользуется спросом. Отдельную категорию составляют крупнопанельные дома (не "хрущевки"). В чем же их недостатки и преимущества, которые нужно учесть при ремонте?
В 2007 году, взяв ипотеку в банке, мы выбрали именно такой вариант и решили минимальными вложениями (ипотека же!) привести квартиру в жилой вид.

Кухня до ремонта.

После ремонта.
Недостатки крупнопанельных домов:
Внешние стены выполнены из "утепленного" железобетона, представляющие собой "пирог" из двух слоев железобетона между которыми находится утеплитель в виде керамзитобетона. Толщина панели около 400 мм. Сопротивление теплопередаче ниже норматива. Но самое неприятное, что мостики холода образуют стыки панелей.
Внутри места соединения панелей и плит в углах заделаны раствором вручную с нарушением геометрии.
Электропроводка использовалась алюминиевая.
Преимущества:
Неплохие для тех времен планировки с кухней в 9-12 кв.м. и раздельными комнатами.
Панели изготавливались на заводе ЖБИ с соблюдением технологии и имеют хорошую геометрию.
Электропроводка проложена в панелях и плитах в трубах ПВХ.
Присутствует лифт, что повышает комфорт жителей верхних этажей.
Исходя из скромного бюджета ремонта сделали следующее:
1. Сбили перфоратором все стыки панелей и плит перекрытий (плита одна на комнату). Ровно по стене правИлом заделали углы штукатуркой Rotband.
2. Стены оказались ровными, их просто прошпаклевали вместе с выправленными углами.
3. Нашли и вскрыли все распределительные коробки электропроводки. Вытащили старые алюминиевые провода и одновременно, используя старую проводку как трос, протянули медные провода. Сечение жил проводов - 1,5 кв.мм для освещения и 2,5 кв.мм для розеток.

4. Добавили розетку в ванной для стиральной машины, проштробив перегородку. В вентиляцию туалета и ванной установили электровентиляторы параллельно освещению с таймером.
5. В кладовой собрали все провода в щиток и установили автоматы и УЗО.
6. С пола сняли линолеум и выровняли самонивелирующейся смесью.
7. Стены и потолки оклеили "рогожкой" под покраску. В углах проблем стыкования полотен не возникло после их выравнивания. Покрасили колерованной вододисперсионной краской.
8. На пол постелили ламинат, закрепили пластиковые плинтуса.
9. Поменяли всю разводку воды и канализации на полипропилен.
10. Сменили всю сантехнику.

Ванная до ремонта.

После.
11. Положили плитку в ванной и на фартук кухни. В туалете - только на пол.
12. Заменили все межкомнатные двери, в гостиной оставили арку.
13. Вопрос по утеплению фасада дома удачно решился путем попадания дома под программу капремонтов. По этой программе выполнено утепление фасада плитами каменной ваты, штукатурка и покраска.
Жить стало веселее.
Ремонт двухкомнатной квартиры в панельном доме. Дизайн двушки в панельном доме
В квартире можно применить 1 стилистическое решение. Чаще в квартире все в пастельных тонах. Для удобства можно использовать встроенную мебель.

Площадь должна быть максимально функционально использоваться. Освещение должна способствовать увеличению пространства.

При стандартном планировании площадь нужно разделить на спальную зону и отдыха. Кухню можно объединить с гостиной или оставить изолированной, если семья небольшая. Если есть лоджия, она может стать прекрасным кабинетом, а санузел можно расширить за счет прихожей.

Чтобы расположить мебель наиболее рационально, можно воспользоваться компьютерными программами, которые помогут увидеть выбранный дизайн двухкомнатной квартиры в трехмерном изображении. Можно мебель передвигать для удобства и функциональности.

Если нужна перепланировка, нельзя сносить несущие стены. Для других перегородок при сносе необходимо официальное разрешение. После этих этапов работ можно приступать к дизайн-проекту.

Светлые тона применять на стенах, а на полу можно темные оттенки. Это увеличит пространство квартиры.

Кухня – место сбора всей семьи, лучше выбрать плавные формы без углов. Гостиная может быть контрастной кухне. Идеальны шкафы-купе с раздвижными дверями, что сэкономит место. Двухуровневый потолок поможет лучше осветить помещение.

Стал модным винтажный стиль, где можно сочетать антикварные вещи в дизайне и отделке помещения. Уже в интерьере должна ощущаться богатая история каждого предмета. Специально для этого вещи искусственно «старят».

Материалы для винтажа используют элементы из меди, металлической ковки, дорогой породы дерева, текстиль и пр. Главной изюминкой стиля будет неровность поверхностей, трещины или потертости. Важны мелочи, подчеркивающие старину: старинные часы, черно-белые фото, вазочки, картины и т. д.

Ремонт квартир в Москве под ключ
Фирма "Инсайд" - это ремонтно-строительная компания, состоящая из специалистов высокого уровня: инженеров, рабочих, архитекторов и дизайнеров. Мы делаем качественный ремонт квартир с материалами, разрабатываем индивидуальные дизайн-проекты и инженерные проекты. Наши расценки вполне приемлемы для Заказчиков. Наша компания использует только современные строительные технологии и безопасные отделочные материалы, что обеспечивает высокое качество работ, сжатые сроки их выполнения и долгосрочную гарантию. Все работы на объектах делаются поэтапно в строгом соответствии с технологиями и сроками производства строительных работ. Мы бесплатно проконсультируем Вас по любым вопросам, связанным с дизайном интерьера, ремонтными работами, отделочными материалами. Наши специалисты готовы бесплатно приехать к Вам для консультации и составления детальной сметы. Если Вам нужен официальный ремонт квартир по договору, цена и сроки будут указаны в договоре.




Ремонт старой квартиры в панельном доме. Разница в затратах и особенности
Принято считать, что сделать ремонт в старой квартире априори дороже во много раз. Давайте разбираться, так ли это. Речь пойдет не о ремонте «меня все устраивает, обойки разве что переклеить», а о глобальном, под себя.

Где ремонт дороже — в новостройке или в «старом фонде»?
Демонтаж . В старой квартире его много, по сути — все. В новостройке его… нет ли? Часто, когда вы делаете квартиру под себя, вы делаете перепланировку и сносите все перегородки. А если и не делаете, то зачастую качество перегородок оставляет желать лучшего, и их ломают, чтоб выставить новые на тех же местах. То же и со стяжкой — ох, бывает и стяжка от застройщика летит в мусор. Так что разница разве что в чистоте мусора, а от этого цена на демонтаж ну никак не зависит.

Нет большой разницы — вывозить старый мусор или новый
Инженерия . Устраивает ли вас расположение розеток и сантехники от застройщика? Нет? То есть все с нуля, как и в «старом фонде»?
Коробка квартиры . В «старом фонде» после «вскрытие покажет» вас могут ждать сюрпризы — часто приходится вкладываться дополнительно в перекрытия снизу и/или сверху… А в новострое? Нет? А про звукоизоляцию не забыли? Если делать нормально, то это немаленькая цифра в смете. И плюс (вернее минус) высота потолков и площадь пола — а теперь эти съеденные 10 см на границе с соседями переведите в квадратные метры и умножьте на цену этого самого метра.

Звукоизоляция «съедает» квадратные метры, а в новостройках зачастую без нее не обойтись
Окна и двери . Вот тут в «старом фонде» действительно придётся потратиться. Как правило, они больше и их больше. Но это того стоит, поверьте! Так же, как и площади стен при том же периметре больше за счёт высоты потолка. Но это та малая трата, за счёт которой вы получаете пространство, не говоря о дополнительном месте хранения за счёт более высоких шкафов.

В «старом фонде» больше мест хранения, так как выше потолки
Теперь о плюсах и минусах каждого типа квартиры и особенностях ремонта, которые стоит учитывать заранее, то есть до покупки, и быть к ним готовым.