Как из однушки сделать двушку проекты 40 кв. Из однушки получилась двушка, перепланировка
- Как из однушки сделать двушку проекты 40 кв. Из однушки получилась двушка, перепланировка
- Как из однокомнатной квартиры сделать двухкомнатную с детской. Как из однокомнатной квартиры сделать двухкомнатную
- Перепланировка однушки в двушку с детской. Готовые схемы проектов переделки однокомнатной квартиры в двухкомнатную разной площади
- Видео как сделать из 1к кв 2х комнатную|Ремонт однокомнатной квартиры|Из однушки двушка|Ремонт квартир спб
Как из однушки сделать двушку проекты 40 кв. Из однушки получилась двушка, перепланировка
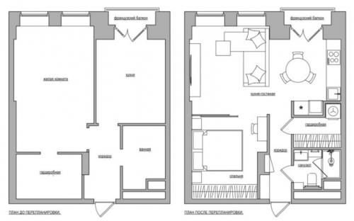
При покупке заказчиками эта уютная квартирка площадью 44 кв.м была со свободной планировкой — то есть с возможностью расставить стены и перегородки, как душе угодно. Перед нами стояла задача сделать из однушки двушку: вместить сюда спальню и гостиную-гостевую. Смотрите ниже, что получилось!
— Кухня с панорамным видом — просто мечта!
— Мы объединили лоджию с кухней, чтобы максимально увеличить площадь. Получилось и правда круто! Здесь чуть более 15 кв. м, есть телевизор и уютный диванчик, чтобы посидеть с друзьями или посмотреть за ужином кино в одиночестве.
— Обычно вы стараетесь оттенить чем-то белые фасады — ярким фартуком или стенами. Почему тут решили сделать всю кухню белой?
— Хотелось подчеркнуть воздушность интерьера, добавить простора. Светлая кухня не выглядит скучной и блёклой, потому что глазу есть за что зацепиться. Тут притягивают внимание молдинги на кухонных шкафчиках и стенах, золотистая фурнитура, плитка на полу, цветные мягкие стулья и цветочные принты в рамах в столовой зоне — пусть все эти детали не яркие, но они в совокупности делают интерьер кухни очень интересным и насыщенным.
— Какого размера получилась эта гостиная?
— Маленького, всего 8 кв.м :) Что поделать, перепланировка однушки в двушку крадёт место. Если разложить диван, то останется проход вдоль стены с телевизором. Но и цель достигнута: нам нужно было сделать изолированную комнату, в которой можно посидеть вечером с книгой или перед теликом, и где могли бы при случае переночевать родственники или друзья.
За дверью слева находится миниатюрная спальня – чтобы в неё хоть немного проникал дневной свет, мы сделали межкомнатные двери с матовыми стеклянными вставками.
— Ой, это что, вся спальня? Размером с кровать?
— Такая малютка, да. Зато отдельная. :) Чтобы расширить визуально пространство, мы сделали одну стену зеркальной — ту, что за туалетным столиком. Я знаю, есть люди, которым не понравилось бы спать напротив зеркала, но у заказчицы, к счастью, на этот счёт предубеждений нет. Слева, за шторкой, находится большая гардеробная.
Совет дизайнера
Очень маленькую комнатку лучше сделать максимально светлой, с однотонными стенами без крупных рисунков и картин. Визуально можно увеличить пространство с помощью крупных зеркал и глянцевой мебели. Чтобы комната без окна не превратилась в мрачную каморку, выбирайте дверь с большими стеклянными вставками, через которые хоть немного будет попадать дневной свет.
— Сантехника золотого цвета выглядит очень необычно.
— Да, и как всё необычное, стоит дороже. :) Санузел редко входит в дизайн-проект, однако в этом случае заказчица решила не экономить на визуализации. Здесь нет каких-то невероятных дизайнерских решений, могу только обратить внимание на идею с тем, как можно изящно вписать стиральную машину под столешницу с умывальником. Главный секрет в том, чтобы стиралка и мебель были одинакового цвета.
Как из однокомнатной квартиры сделать двухкомнатную с детской. Как из однокомнатной квартиры сделать двухкомнатную
Существует множество способов зонирования помещения. Наиболее популярным является возведение дополнительных стен. Чаще всего используют гипсокартонные конструкции и перегородки (они не громоздкие, а легкие и тонкие). Они делят пространство на зоны, визуально разделяя общую площадь на небольшие отдельные комнаты. Иногда такие сооружения оборудуют полками и нишами, в них можно разместить элементы декора и полезные мелочи.




Не менее востребованы стеллажи и этажерки. Они легки и довольно мобильны, поэтому при необходимости можно запросто сделать перестановку, передвинув их на новое место. Шкафы и стенки в этом плане намного проигрывают из-за громоздкости, объемности и массивности.
Для зонирования часто используются такие приемы, как возведение подиумов, многоуровневые потолки, ширмы, шторы, стыки напольных и настенных покрытий (различных по цвету и рисунку, фактуре). Двери стоит выбирать раздвижные или гармошки.




Один из вариантов перепланировки однокомнатной квартиры – искусственное создание дополнительной комнаты за счет переноса одного функционального помещения в другое. Самые распространенные способы – это оборудование кухни-гостиной, утепление лоджии и использование ее в качестве полноценной комнаты, смещение кухонного пространства в зону кладовки и т. д. Такие модификации помогут освободить дополнительное место.


Перед тем, как начинать ремонт, нужно учесть ряд особенностей:
- сориентироваться на возраст детей (у младенцев и подростков, очевидно, потребности различны);
- определиться со стилем помещения;
- выбрать подходящий способ зонирования (такой, который позволит чувствовать себя комфортно всем членам семьи);
- при кардинальных изменениях (возведение/снос стен) составить план-проект квартиры и согласовать в соответствующей службе;
- воспользоваться удобным планировщиком, который поможет визуализировать идеи.
Таким образом, сделать из однокомнатной квартиры двухкомнатную не составит большого труда, если грамотно подойти к решению вопроса.



Перепланировка однушки в двушку с детской. Готовые схемы проектов переделки однокомнатной квартиры в двухкомнатную разной площади
При перепланировке в 38 кв м учитывается все до мелочей. Для такой квартиры лучше всего подойдут такие стили, как хай-тек, скандинавский или кантри. При использовании одного из стилей в квартире будет уютно и просторно. Важно заранее все распланировать, как из однушки сделать двушку и постепенно начать перестройку. Главное, выбрать подходящий вариант и тем самым можно преобразить свою жилплощадь.

Спальная зона выделена в небольшую, но отдельную комнату. Большая часть пространства досталась кухне-гостиной, в которой раскладной диван служит дополнительным местом для сна
При 40 кв м комнаты могут быть открытыми, что придаст квартире неповторимый вид. При перепланировке в любой интерьер можно внести “изюминку” и тогда все будет смотреться изящно и красиво. Каждому хозяину квартиры можно создать индивидуальный проект и решить как из однушки сделать двушку 40 кв. Разграничивая помещения в квартире нужно сделать так, что все было компактно расставлено.

Приватное место для ночного отдыха размещено за стеклянной перегородкой, что позволило сохранить в спальне естественное освещение
При 43 кв м будет уютно, если разграничить основную комнату перегородкой. У тех, у кого есть дети сделать для них игровую комнату. Если владелец проживает один, то ему можно создать уютное офисное помещение. Все гармонично сочетаться в соответствие с установленными правилами.

Комната с двумя окнами разделена на спальную и гостиную зоны, последняя отделена от кухни барной стойкой
При 45 кв м в одной комнате можно установить кровать и диван без потери основного стиля. Вторая половина может быть занята кухней в американском стиле. Здесь можно все разграничить так, чтобы уместились:
- напольные вешалки;
- небольшие шкафчики;
- напольный торшер;
- столик;
- диван и т.д.

Благодаря перепланировки удалось организовать просторную кухню-гостиную и уютную спальную зону с небольшим гардеробом
При 50 кв м может получиться в одной половине уютная спальня, а в другой отдельный уголок отдыха. В качестве перегородки можно поставить прозрачные. Это придаст помещению современный, презентабельный вид. В квартире может быть объединена кухня с гостиной и отдельная спальня. Все это может быть удобным вариантом для семейной пары.

Функциональный интерьер с достаточно большой спальной комнатой, кухне-гостиной и рабочим кабинетом на утепленной лоджии
При перепланировке 55 кв м можно сделать интерьер в швейцарском стиле, использовав светлые оттенки. Интерьер лучше не перегружать лишними деталями, а повесить украшения на стены и потолок. Если даже дизайн простой, то интерьер может получиться стильный и современный.
