Перепланировка квартир в домах серии . Общие характеристики квартир
- Перепланировка квартир в домах серии . Общие характеристики квартир
- П44 однокомнатная. Типовая однушка в доме серии П-44 с отсылкой к Франции и стритфуду Много классных деталей и идей в одном интерьере
- П44 трешка. Перепланировка: 5 идей для трехкомнатной квартиры серии П-44
- П-44 несущие стены. Инновация отечественного строительства
Перепланировка квартир в домах серии . Общие характеристики квартир
Число этажей в домах серии П 44 колеблется от 17 до 25, а количество подъездов – от 2 до 8. Одним из преимуществ такого жилья считается наличие лоджий.

Размещение квартир в секции типового дома серии П-44
При грамотном подходе к перепланировке или просто к дизайну интерьера, площадь лоджии используется более чем функционально. Но прежде чем приступать к полной реконструкции имеющихся квадратных метров, создайте детальный проект будущей планировки квартиры П44 с размерами.
Единственный серьезный фактор, мешающий перепланировке – это то, что почти все стены в квартире являются несущими, и получить разрешение на полное изменение облика квартиры, увы, не получится. И все же, несмотря на многочисленные «но», сделать квартиру стильной и функциональной вполне возможно.
Итак, основные особенности двухкомнатных квартир П 44. Уже сам факт, что в квартире две комнаты облегчает вашу задачу создания практичного жилья. Не придется ломать голову над способами зонирования, над тем, как из небольшой комнаты сделать сразу три, а то и четыре самостоятельных пространства. Имея в распоряжении «двушку», примите во внимание следующее:
- Сколько человек проживает.
- Какие функциональные зоны вам необходимы.
Планировка двухкомнатной квартиры П 44 бывает двух видов:
- «Распашонка». Этот вид имеет два возможных варианта: с эркерами в гостиной, или без. Квартир с эркерными окнами меньшинство. Особенность планировки заключается в том, что прихожая располагается во внутреннем углу. По сравнению с линейной квартирой, распашная имеет более просторные комнаты. Провести радикальную перепланировку «не позволят» несущие конструкции, зато грамотное «наполнение» интерьера поможет вам сделать помещение удобным и практичным. В квартирах с эркерами весьма успешны эксперименты с перегородками и зонированием.

Планировка двухкомнатной квартиры распашонки
- Линейка. Свое название квартиры получили за то, что все окна выходят на одну сторону, в линейку. Прихожая имеет прямоугольную форму, а попасть во все остальные помещения можно только из нее. Достоинство этого типа квартир – прекрасная освещенность, а серьезный «минус» – недостаточная циркуляция воздуха. Да и разница в метрах ощутимая – примерно на 10 квадратных метров меньше, чем распашная. Отсюда и разница в цене – линейные варианты дешевле.

П44 однокомнатная. Типовая однушка в доме серии П-44 с отсылкой к Франции и стритфуду Много классных деталей и идей в одном интерьере
Интерьер однокомнатной квартиры в панельном доме распространенной в Москве серии П-44 дизайнер Виктория Золина проектировала для молодой женщины, которая работает в сфере фэшн и любит абсолютно противоположные вещи: французские кофейни и азиатский стритфуд. Отсюда — много классных деталей вроде плитки на стене в прихожей с неоновой вывеской или консоли в гостиной, которую хозяйка сделала своими руками. Показываем, что получилось.
Текст
Маша Шаталина
Фотографии
Анастасия Виноградова

На ремонт ушло четыре месяца. Хотя квартира типовая, перепланировку не делали — просто демонтировали дверной проем между кухней и комнатой. Все системы хранения вынесли в коридор, разгрузив от высокой мебели кухню и комнату. Комнату поделили на гостиную и спальню, но зонировать мебелью или перегородками не стали — это было одним из пожеланий заказчицы наряду с полноценным спальным местом и вместительным гардеробом. По сути, ремонт касался только отделки: старые покрытия демонтировали, стены выровняли под обои и покраску, а радиаторы, которые не грели, и стеклопакеты заменили (установили с ламинацией под дерево, чтобы добавить уюта).
Если говорить о стиле интерьера, то, по словам дизайнера, это скорее эклектика: микс французского и скандинавского стилей с этническими деталями и индустриальными элементами. В проекте много интересных идей, которые позволили добиться визуальной легкости. Например, тяжелые фасады шкафов в прихожей закрыли панелями-шторами из IKEA с грубой фактурой. Они же выполняют функцию раздвижных перегородок, разделяя при необходимости комнату и коридор. Над шкафами на открытых полках разместили небольшую библиотеку хозяйки — чтобы разбавить монохромность шкафов и оптически разгрузить конструкцию. На кухне от верхних шкафов тоже отказались, установив вместо них металлические полки. На идею легкости работает стеклянный рабочий стол в комнате и открытая кровать на высоких ножках, а также текстиль: окна в гостиной закрыли легким многослойным шифоном, а на кухне — белыми хлопковыми шторами с грубой фактурой.
Клетка стала связующим элементом всех помещений. В прихожей и ванной это гладкая белая квадратная плитка, на кухне — фактурный фартук, в гостиной — ковер с контрастным принтом и консоль под ТВ, облицованная белой мозаикой с темной затиркой (ее хозяйка сделала сама). Это отсылка к стритстайлу, городским кафе — общественным интерьерам с индустриальным дизайном. Сюда же можно отнести и розовую неоновую вывеску, которая просматривается со всех точек квартиры и особенно эффектно выглядит по вечерам.
Освещению вообще уделили много внимания. От технического общего света отказались: все светильники работают точечно, они дают разные тени, разную интенсивность и теплоту света. Поработали и с сочетанием различных материалов. Так, холодный металл кухни уравновесили шторой из серого льна, которая закрывает стиральную машину, и накидкой на диван. В гостиной, где, наоборот, много текстиля приглушенных фактур и обои на стенах, добавили стекло, металл и зеркала, чтобы получить блики и игру света — как при дневном освещении, так и при искусственном.
В проекте очень много мебели из IKEA, но она не считывается явно, потому что закрыта текстилем. Например, на диван, который переживает уже третий переезд, на заказ сшили белый льняной чехол — французы любят такой прием и часто используют его в интерьерах. Французскую идею поддержали также еще одним классическим элементом — большим зеркалом в золотой раме. Его вместе с картинами разместили над диваном. Диван на кухне — тоже IKEA, он задрапирован льняной простыней самого большого размера (2,8 на 2,6 метра). Кровать и кухня — снова из IKEA, как и разные светильники.
Некоторые предметы нашли на площадке La Redoute: там заказали консоль в прихожую, табуретку в японском стиле, стеклянный рабочий стол, стеллаж и полки в ванной. Низкий журнальный столик, который стал центром композиции в гостиной, купили в «Интерьерах махараджей», а необычную ширму за диваном совершенно случайно нашли в Repeat Story, где продаются винтажные вещи. Это ручная работа, Нидерланды, 60-е годы. Если провести по ширме рукой, она издает фантастический звук, похожий на шелест бамбуковых зарослей. Обеденный стол — Archpole, как раз в индустриальном стиле.
На заказ делали только систему хранения в прихожей и тумбу под раковину — надо было вписать шкафы четко в размеры. Кстати, ванну не стали закрывать фартуком из плитки, а оставили на открытом каркасе. Каркас выкрасили в черный, а саму ванну расписали — еще одна отсылка к граффити и стритстайлу. Получился настоящий арт-объект в ванной комнате.


П44 трешка. Перепланировка: 5 идей для трехкомнатной квартиры серии П-44
Проекты угловых квартир-«трешек» для разных семей и разных интерьерных задач
Постоянный автор Houzz. Интерьерный дизайнер и декоратор, руководитель студии дизайна интерьеров «Уютная Квартира», трендсеттер и колорист премиальных интерьеров.
Еще
анельных домов. Спроектированы эти дома МНИИТЭПом, и строились с конца 70-х до конца 90-х годов прошлого века. Потом на смену этой серии пришли улучшенные модификации. Многоэтажки П-44 являются родоначальниками целого семейства многоквартирных жилых домов: П-44М, П-44Т, П-44ТМ, П-44К.
Наталья Преображенская | Студия «Уютная Квартира» Сохранить фото
Типовая серия П-44: планировка 3-комнатной квартиры
Особенности планировки: В домах серии П-44 обычно 16-17 этажей (реже 8-17), два и более подъезда, в каждой квартире, кроме тех, что на первом этаже, есть балкон. Высота потолков — 264 см.
Предлагаю рассмотреть стандартную трехкомнатную угловую квартиру в доме П-44. Ее площадь составляет 74 квадратных метра, из них жилая — 45 кв.м, кухня — 10 кв.м. Почти все стены в квартире — несущие (кроме санузла, перегородок между кухней и коридором, первой комнатой и прихожей), что в целом дает мало возможностей для перепланировки и согласования. Тем не менее, как показывает практика, варианты организации пространства все же есть.
Важно: Все представленные в этой статье проекты перепланировок, кроме последней, необходимо согласовывать перед началом ремонта.
Наталья Преображенская | Студия «Уютная Квартира» Сохранить фото
Вариант 1: для родителей, ребенка и бабушки с дедушкой
Довольно распространенная для России ситуация, когда в одной квартире живут семья с ребёнком-школьником и родители одного из супругов. Чтобы разместить всех в трехкомнатной квартире с комфортом, в спальне мы выделили отдельную вместительную гардеробную, в детской — большой шкаф-купе, рабочее место и стеллаж для книг. В гостиной будет удобен угловой диван, который послужит и раскладным спальным местом. В центре кухни расположили столовую зону, чтобы за столом могла уместиться вся семья.
Ванную и санузел в данном конкретном случае для заказчиков объединили, но их можно оставить и раздельными — ориентируйтесь на потребности своей семьи.
Наталья Преображенская | Студия «Уютная Квартира» Сохранить фото
2. Вариант 2: для родителей и двух разнополых детей-подростков
Ключевая задача этого проекта ремонта квартиры — чтобы у каждого из детей была своя комната с вместительным шкафом, спальным и рабочим местами. Поэтому обустраиваем две полноценных детских.
Гостиную зону выделяем в спальне родителей, для этого визуально зонируем пространство комнаты легкой шторой.
Санузел объединяем, слегка увеличив его за счёт прихожей, благодаря этому получается разместить и ванну, и душевую кабину.
Наталья Преображенская | Студия «Уютная Квартира» Сохранить фото
Вариант 3: для молодой семьи и родителей
В этом варианте планировки нам нужны две спальни. Одну из них мы увеличиваем за счёт коридора, получая две одинаковых соседних комнаты.
В кухне получилось организовать и полноценную обеденную зону, и барную стойку для завтраков или коктейля.
Санузел объединили и успешно разместили всю необходимую сантехнику.
Наталья Преображенская | Студия «Уютная Квартира» Сохранить фото
Вариант 4: для родителей, старшего ребенка и двух детей-погодков
Для двух детей-школьников логично отдать самую большую по площади комнату. Поэтому мини-гостиная зона для друзей обосновалась в комнате взрослого мальчика-студента. Соответственно, под спальню для родителей мы отвели самую компактную комнату. А чтобы организовать в ней встроенный шкаф, пришлось забрать часть площади коридора.
Санузел совмещен, в нем легко уместилась вся необходимая сантехника, включая сушилку и стиральную машинку вертикальной загрузки.
Наталья Преображенская | Студия «Уютная Квартира» Сохранить фото
Вариант 5. Для молодой семьи с перспективами
Самый приятный и простой вариант — когда в просторную квартиру въезжает пара с прицелом на пополнение. П ланировка 3-комнатной квартиры в П-44 как будто для этого и создана. Здесь есть все необходимое: спальня, гостиная и еще одна комната, которая до появления детей может послужить гостевой спальней.
Перепланировка со сносом перегородок в данном варианте не нужна.
ВАША ОЧЕРЕДЬ…
Какие плюсы и минусы вы видите в предложенных вариантах перепланировки 3-комнатной квартиры ? Что именно вы бы сделали по-другому? Делитесь вашими мнениями в разделе комментариев.
П-44 несущие стены. Инновация отечественного строительства
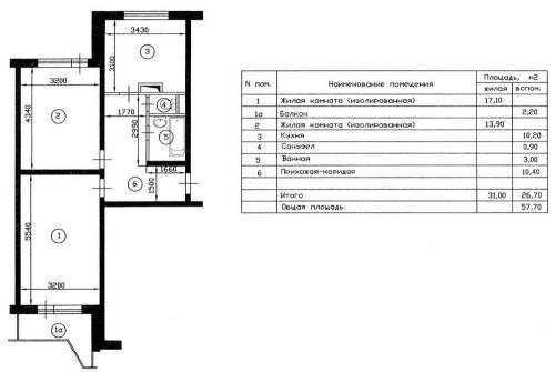
Проектная серия П-44 впервые была воплощена в жизнь в конце 70-х годов. На тот момент дом, отстроенный по данному проекту, считался оригинальным, не имеющим аналогов в отечественном строительстве. Действительно, кухня в 10м2 казалась огромной по сравнению со стандартной в 6 м2 с хвостиком. В квартирах появился холл, чего не было в «хрущевских» домах. Наименьший холл имеется в двухкомнатной квартире (50,2 м2), и составляет 4,8 м2. В трешке холл составляет целых 13 «квадратов», а в однокомнатной – 6,5 м2.

фото : © zdanija.ru
На входе в подъезд предусмотрено место для консьержки, дом оснащен грузовым и пассажирским лифтом. У каждой квартиры, за исключением первого этажа - балконы.
Раздельный санузел предусмотрен только в двух- и трехкомнатных квартирах, в однокомнатной – совмещен. В доме предусмотрен мусоропровод с загрузочными клапанами на каждом этаже.
Серия П-44 строилась с улучшенными эксплуатационными особенностями. Строителями применялись панели трехслойного типа с замковым соединением. Характерной чертой квартир являлось то, что отсутствовали проходные комнаты. Внешние стены возводились из навесных трехслойных панелей. Для перекрытий, межкомнатных и межквартирных перегородок применяются плиты и панели из железобетона.
Интересной особенностью трехкомнатной квартиры стала возможность ее перепланировки, чего ранее не предусматривалось. Дело в том, что простенок между гостиной и коридором разрешается сносить, стена не является несущей.
Крыша дома имеет плоскую кровлю, чердак утеплен, поэтому холод с крыши не задувает в верхние квартиры. Над жилым этажом предусмотрен технический этаж.

На завершающем этапе уделяли внимание наружной отделке. Серые, невзрачные дома остались в прошлом, панели для домов этой серии начали декорировать глазурованной фасадной плиткой бежевого, голубого и светло-зеленого оттенка. Такой фасад придал зданию нарядный и опрятный вид.
Среди прочих достоинств ранних домов П-44 выделяют внутренние бетонные стены, в которых отсутствует керамзит. Благодаря этому в стене легко просверлить отверстие для хозяйственных нужд. В поэтажных коридорах продумана система дымоудаления.
К недостаткам относят посредственность крепежа панелей в некоторых корпусах, а также кривые полы на балконах. В трехкомнатной квартире – маленькая гостиная (11 м2). Проектировщики не потрудились над изменением стандартной высоты потолка, она, по-прежнему, осталась 2,64 метра.

