Панельный дом серии П-44. Типовая серия дома П44 с планировками квартир
- Панельный дом серии П-44. Типовая серия дома П44 с планировками квартир
- Серия п-44т. Типовая серия дома П44Т с планировками квартир
- П-44-1/17. Типовой жилой дом серии П-44Т/17
- П-44 несущие стены. Дома серии П-44 и их особенности
- П-44 высота потолков. Типовой жилой дом серии П-44
- П-44к. Типовая серия дома П44К с планировками квартир
- Серия дома П-44 планировки. Планировка с размерами домов серии П-44
Панельный дом серии П-44. Типовая серия дома П44 с планировками квартир
Серия отноcится к группе Серии домов постсоветского времени
Одна из популярнейших серии построенных в Москве. Свое название она получила за счет панельной структуры, при этом форма дома обычно принимает вид буквы «П» или «Г». Дома этой серии введены в эксплуатацию еще с конца 70-х гг. по 2000г. Существует уже в различных модификационных версиях, таких как, И-1731 (несколько домов, построенные в конце 90-х гг., которые отличаются декоративными панелями нижних этажей и мягкой облицовкой верхних); П-44Т (с 1997г. по настоящее время, улучшилась внешняя отделка здания, был добавлен мансардный этаж); П-44К (с 2006г. по настоящее время, имеют компактную форму, в связи с чем в планировках этажей присутствуют только одно- и двухкомнатные квартиры); П-44M (с 1997 по 2000 гг, в планировках появились четырехкомнатные квартиры и мансарды, были добавлены эркеры и дополнительные санузлы), П-44Т25 (с 2005г. по настоящее время, особенностями этой серии являются панорамные окна в квартирах с зимнем садом и просторные кухни до 16м2); ДомНад (с 2015г. по настоящее время, ярко бросающейся в глаза особенностями стали плоские фасады, отсутствие эркеров и «спрятанные» за фасадными панелями лоджии); ДомРик (с 2015г. по настоящее время, в системе отопления установлены обновленные счетчики учета тепла, в системах водоснабжения и отопления применены металлополимерные трубы).
 Жилые секции в доме серии П-44 имеют два вида – угловой и рядовой. Если серия рядовая, то на этаже расположено по четыре квартиры: две двухкомнатные с площадями 50.2 кв.м. и 57.8 кв.м., одна однокомнатная с общей площадью 37.8 кв.м и одна трехкомнатная с общей площадью 73.8 метра. В угловой секции только двух- и трехкомнатные квартиры. Внутренние стены являются несущими с шагом 3,0 и 3,6 м бетонные панели толщиной 18 см. Наружные стеновые панели – навесные, железобетонные трехслойные панели толщиной 22 и 28 см, облицованные крупноразмерной глазурованной керамической плиткой. Панели перекрытий опираются на внутренние стены. Для фундамента использовалась монолитная железобетонная плита на естественном основании.
Жилые секции в доме серии П-44 имеют два вида – угловой и рядовой. Если серия рядовая, то на этаже расположено по четыре квартиры: две двухкомнатные с площадями 50.2 кв.м. и 57.8 кв.м., одна однокомнатная с общей площадью 37.8 кв.м и одна трехкомнатная с общей площадью 73.8 метра. В угловой секции только двух- и трехкомнатные квартиры. Внутренние стены являются несущими с шагом 3,0 и 3,6 м бетонные панели толщиной 18 см. Наружные стеновые панели – навесные, железобетонные трехслойные панели толщиной 22 и 28 см, облицованные крупноразмерной глазурованной керамической плиткой. Панели перекрытий опираются на внутренние стены. Для фундамента использовалась монолитная железобетонная плита на естественном основании. 
 В однокомнатных квартирах роль несущей становится стена между кухней, на ней лежат плиты перекрытия и если стены не будет, то плиты упадут. Максимум что можно сделать, так это проем в стене между кухней и комнатой шириной в общих случаях. Тем не менее, планировка сама по себе, достаточно удобная: комнаты изолированы, прихожие большие, кухни не менее 8 кв.м. В серии жилых домов П-44 к минусам можно отнести маленькую гостиную в «трешке» — всего 11 кв.м.; стандартную для того времени высоту потолков в 2.64 метра. Также, многие жильцы жалуются на сыроватость последних моделей и на то, что в некоторых домах, полы балконов сделаны криво.
В однокомнатных квартирах роль несущей становится стена между кухней, на ней лежат плиты перекрытия и если стены не будет, то плиты упадут. Максимум что можно сделать, так это проем в стене между кухней и комнатой шириной в общих случаях. Тем не менее, планировка сама по себе, достаточно удобная: комнаты изолированы, прихожие большие, кухни не менее 8 кв.м. В серии жилых домов П-44 к минусам можно отнести маленькую гостиную в «трешке» — всего 11 кв.м.; стандартную для того времени высоту потолков в 2.64 метра. Также, многие жильцы жалуются на сыроватость последних моделей и на то, что в некоторых домах, полы балконов сделаны криво. 
 В домах предусмотрены такие удобства, как 2 лифта: грузоподъемностью 320 и 500 кг с верхним расположением машинного помещения; а также мусоропроводы с загрузочным клапаном на каждом этаже. Количество этажей варьируется от 8 до 17, в связи, с чем количество подъездов от 2ух и более. В качестве противопожарных мероприятий для предотвращения задымления путей эвакуации в доме предусмотрены системы дымоудаления и подпора воздуха, которые включаются автоматически по сигналу квартирных тепловых извещателей и от кнопок, установленных в нишах пожарных кранов на каждом этаже. В качестве дублирующих путей пожарной эвакуации жителей в 2-16-этажах предусмотрены переходы по балконам в смежные секции, а в лоджиях квартир в торцах здания – люки и стремянки в уровне 2-16-го этажей.
В домах предусмотрены такие удобства, как 2 лифта: грузоподъемностью 320 и 500 кг с верхним расположением машинного помещения; а также мусоропроводы с загрузочным клапаном на каждом этаже. Количество этажей варьируется от 8 до 17, в связи, с чем количество подъездов от 2ух и более. В качестве противопожарных мероприятий для предотвращения задымления путей эвакуации в доме предусмотрены системы дымоудаления и подпора воздуха, которые включаются автоматически по сигналу квартирных тепловых извещателей и от кнопок, установленных в нишах пожарных кранов на каждом этаже. В качестве дублирующих путей пожарной эвакуации жителей в 2-16-этажах предусмотрены переходы по балконам в смежные секции, а в лоджиях квартир в торцах здания – люки и стремянки в уровне 2-16-го этажей. 
В связи с тем, что дома данной серии, могут прослужить еще очень долго, то не стоит надеяться на снос в ближайшем времени.
Серия п-44т. Типовая серия дома П44Т с планировками квартир
Серия отноcится к группе Современные серии домов
Серия домов П-44Т является модификацией серии П-44 . Строиться она началась еще с 1997г. и по настоящее время. Имеет собственную модификацию, которая отличается от нее лишь количеством этажей – это серия П-44Т/17.
 Дом П-44Т панельный, состоит из угловых и рядовых секций по четыре квартиры, где 1-комнатная квартира имеет размер жилого помещения – 19м2, кухня – 7-9м2, санузлы совмещенные; 2-комнатная квартира - 30-34 м2, кухня - 8-13 м2, санузлы раздельные; 3-комнатная квартира - 44-54 м2, кухня - 10-13м2, санузел также раздельный. Все комнаты в квартирах домов серии П-44Т изолированные. Во всех квартирах, предусмотрены эркеры и просторные лоджии. Внутренние стены состоят из сборных железобетонных панелей толщиной 16 см и 18 см. Наружные стеновые трехслойные навесные панели с утеплителем из пенополистирола и с теплоотражающей металлизированной пленкой внутри утеплителя, общая толщина 30 см; с фасадной стороны облицованы плиткой «под кирпич», начиная со второго этажа. Перегородки из многих материалов: пазогребневые или пенобетонные блоки, гипсокартонные листы по металлокаркасу, гипсобетонные прокатные панели, но чаще всего гипсобетонные, все они одной толщины - 8 см. Перекрытия – железобетонные плиты толщиной 14 см.
Дом П-44Т панельный, состоит из угловых и рядовых секций по четыре квартиры, где 1-комнатная квартира имеет размер жилого помещения – 19м2, кухня – 7-9м2, санузлы совмещенные; 2-комнатная квартира - 30-34 м2, кухня - 8-13 м2, санузлы раздельные; 3-комнатная квартира - 44-54 м2, кухня - 10-13м2, санузел также раздельный. Все комнаты в квартирах домов серии П-44Т изолированные. Во всех квартирах, предусмотрены эркеры и просторные лоджии. Внутренние стены состоят из сборных железобетонных панелей толщиной 16 см и 18 см. Наружные стеновые трехслойные навесные панели с утеплителем из пенополистирола и с теплоотражающей металлизированной пленкой внутри утеплителя, общая толщина 30 см; с фасадной стороны облицованы плиткой «под кирпич», начиная со второго этажа. Перегородки из многих материалов: пазогребневые или пенобетонные блоки, гипсокартонные листы по металлокаркасу, гипсобетонные прокатные панели, но чаще всего гипсобетонные, все они одной толщины - 8 см. Перекрытия – железобетонные плиты толщиной 14 см. 
 Серия жилых домов П-44Т обладает различными недостатками, такими как, узкая комната в двухкомнатных линейных квартирах (с окнами на 1 сторону), швы между панелями требуют дополнительной промазки (иначе будет холодно). Возможности перепланировки в доме данного типа очень серьезно ограничены. Почти все стены являются несущими. Однако сохраняются следующие возможности допустимой перепланировки без пагубного влияния на несущие конструкции:
Серия жилых домов П-44Т обладает различными недостатками, такими как, узкая комната в двухкомнатных линейных квартирах (с окнами на 1 сторону), швы между панелями требуют дополнительной промазки (иначе будет холодно). Возможности перепланировки в доме данного типа очень серьезно ограничены. Почти все стены являются несущими. Однако сохраняются следующие возможности допустимой перепланировки без пагубного влияния на несущие конструкции: 
- В трехкомнатных квартирах перегородка между большой комнатой и коридором является ненесущей.
- Сантехблок выполнен из гипса и может быть демонтирован и/или видоизменен.
- В домах после 2007 года постройки в несущих панелях между кухней и комнатой в части квартир предусмотрена специальная ниша для выполнения дверного проёма («вафля»), которую можно демонтировать.
 Все же данная серия обладает и рядом преимуществ: к планировкам были добавлены эркеры, медная электропроводка, вентиляция естественная вытяжная, горячее водоснабжение с верхним разливом, внешний вид приобрел особый цвет - красный с песочным, эркеры и лоджии покрасили в белый. Для проживания в домах серии П-44Т бывает, доступен мансардный этаж. Появилась современная система безопасности, которая реагирует на открытие служебных помещений, затоплении или угрозы возникновения пожара.
Все же данная серия обладает и рядом преимуществ: к планировкам были добавлены эркеры, медная электропроводка, вентиляция естественная вытяжная, горячее водоснабжение с верхним разливом, внешний вид приобрел особый цвет - красный с песочным, эркеры и лоджии покрасили в белый. Для проживания в домах серии П-44Т бывает, доступен мансардный этаж. Появилась современная система безопасности, которая реагирует на открытие служебных помещений, затоплении или угрозы возникновения пожара. 
В каждом подъезде установлен один пассажирский и один грузопассажирский лифт, в 20-25-этажных секциях (подъездах) - 2 грузопассажирских и пассажирский. Количество подъездов от 1 до 8. Лестницы незадымляемые, противопожарный балкон отсутствует. Мусоропровод расположен на лестнице, с загрузочным клапаном на площадке.
Срок службы дома серии П-44Т около 100 лет, поэтому не стоит, надеяться на снос, в ближайшем времени.
П-44-1/17. Типовой жилой дом серии П-44Т/17
Серия П-44Т/17 отличается от других серий П-44 тем, что дома данной серии 17-этажные. Кроме того, дома серии П-44Т/17 отличаются повышенной теплоизоляцией стен, остеклёнными лоджиями, наличием эркеров и полуэркеров. Иногда для проживания в доме доступен мансардный этаж. 17-этажные дома имеют улучшенную планировку и увеличенную площадь кухни, за счёт выноса вентиляционного короба в прихожую. В домах данной серии представлены 1-3-комнатные квартиры.

Фото дома серии П-44Т/17


Планировки квартир дома типовой серии П-44Т/17
| Технология строительства: | панельный | 
| По периоду строительства: | современные | 
| Годы строительства: | |
| Перспектива сноса: | срок эксплуатации - 100 лет, по данным производителя ДСК-1 | 
| Количество секций/подъездов: | от 2 и более | 
| Количество этажей: | 17 | 
| Высота потолков: | 2.70 - 2.75 м. | 
| Балконы/лоджии: | застекленные лоджии,в 2-3-х-комнатных квартирах эркеры и лоджии, в угловых и торцевых квартирах - полуэркеры | 
| Санузлы: | в 1-ком. квартирах - совмещенные, в 2-3-ком. - раздельные, ванна стандартных размеров - 1,7 м. | 
П-44 несущие стены. Дома серии П-44 и их особенности
Серия панельных домов П-44 была создана «с нуля» в середине 70-х годов прошлого столетия. Авторам проектов домов выступил институт МНИИТЭП. Это была принципиально новая разработка жилья в столице, а не улучшенная версия предыдущих вариантов типовых многоэтажных домов. В будущем серия П-44 получила несколько модификаций (П-44Т, П-44ТМ, П-44М и П-44К), а дома начали строиться не только в Москве, но и в регионах России — настолько удачными они вышли.
Дома серии П-44 представляют собой типовые жилые секции, расположенные в форме «П» или «Г». Первые дома были построены в 1979 году к Олимпиаде-80 и продолжали возводиться вплоть до 2000 года.
Дома серии П-44 состоят из одно-, двух- и трехкомнатных квартир. Узнать высотки можно по их расцветке — это бело-синие, бело-зеленые или бело-коричневые дома.
 В Москве дома серии П-44 в основном появлялись в районах массовой жилой застройки. Сначала проектировались 16-этажные здания с четырьмя квартирами на этаже улучшенной планировки, затем стали строиться 17-этажные дома. Этот вариант и стал самым популярным в серии П-44
 В Москве дома серии П-44 в основном появлялись в районах массовой жилой застройки. Сначала проектировались 16-этажные здания с четырьмя квартирами на этаже улучшенной планировки, затем стали строиться 17-этажные дома. Этот вариант и стал самым популярным в серии П-44
В качестве фасадной стены в этих домах используются трехслойные панели толщиной 30 см. Внутренние несущие стены состоят из железобетонных панелей толщиной 14 и 18 см. Перекрытия между этажами — также железобетонные панели толщиной 14 см. Перегородки в квартирах — из гипсобетона толщиной 0,8 см, и это позволяет делать в них разнообразные перепланировки.
П-44 высота потолков. Типовой жилой дом серии П-44
Дома серии П-44 являются одной из самых распространенных серий, возводимых в Москве. В отношении разработки это принципиально новый проект. Это однотипные жилые секции, установленные в форме буквы «П» или «Г». На момент массового выпуска этих домов, 10-метровые кухни, холлы, наличие грузопассажирских лифтов – было относительной редкостью. При строительстве домов серии П-44 стали применяться трехслойные панели с замковым соединением, что существенно улучшило эксплуатационные характеристики жилого дома. На основе этой серии стали разрабатываться модификации и других серий - П-44Т, П-44К, П-44M.
| Альтернативное наименование: | П44 | 
| панельный | |
| По периоду строительства: | Брежневки | 
| Годы строительства: | |
| Перспектива сноса: | не подлежит сносу | 
| Количество секций/подъездов: | от 2 | 
| Количество этажей: | 17 | 
| Высота потолков: | 2.64 | 
| Балконы/лоджии: | по 1 в каждой квартире (кроме первого этажа). В некоторых самых первых домах имеется дополнительный ряд балконов в 3-комнатных квартирах. Отличие поздних домов этой серии от ранних – железобетонные ограждения (парапеты) балконов вместо металлических. | 
| Санузлы: | в 1-ком. квартирах совмещенные, в 2-3-ком. - раздельные, ванна стандартных размеров - 1,7 м. | 
| 4 | |
П-44к. Типовая серия дома П44К с планировками квартир
Серия домов П-44К является модификацией серии П-44 (с конца 70-х гг. по 2000г) и П-44Т (которая строится с 1997 г.). От последней серии, она отличается более округлыми фасадами, также дома принимают башенную форму. Строиться серия началась еще с 2006г. и по настоящее время. Благодаря большей компактности новостройки серии П-44К удобнее вписываются в кварталы с плотной застройкой (в черте МКАД они возводятся только в кварталах, где сносятся пятиэтажки). Также изменена конфигурация лоджий и эркеров. Конструктивные характеристики, а также и внешний вид домов типовой серии П-44К схожи с домами типовых серий П-44Т, П-44ТМ .
 Дом П-44К панельный, с 4 квартирами на этаже. Площадь квартир увеличена: 1-комнатная квартира имеет размер жилого помещения – 19м2 , кухня – 9-10м2, санузлы совмещенные; 2-комнатная квартира - 43-46м2, кухня - 10 м2, санузлы раздельные; 3-комнатная квартира - 48-50 м2, кухня - 13м2, санузел также раздельный. Есть еще 4-комнатные квартиры (встречаются только в Лобне) - 59-64 м2, кухня – 9-10м2, предусмотрено два санузла. Все комнаты в квартирах домов серии П-44К изолированные. Во всех квартирах предусмотрены эркеры и просторные лоджии (кроме 1-го этажа).
Дом П-44К панельный, с 4 квартирами на этаже. Площадь квартир увеличена: 1-комнатная квартира имеет размер жилого помещения – 19м2 , кухня – 9-10м2, санузлы совмещенные; 2-комнатная квартира - 43-46м2, кухня - 10 м2, санузлы раздельные; 3-комнатная квартира - 48-50 м2, кухня - 13м2, санузел также раздельный. Есть еще 4-комнатные квартиры (встречаются только в Лобне) - 59-64 м2, кухня – 9-10м2, предусмотрено два санузла. Все комнаты в квартирах домов серии П-44К изолированные. Во всех квартирах предусмотрены эркеры и просторные лоджии (кроме 1-го этажа). 
 Внешние стены - железобетонные трехслойные панели бетон – утеплитель (полистирол) толщиной 30 см. Внутренние межквартирные и межкомнатные – железобетонные панели толщиной 16 см. Перегородки гипсобетонные 8 см. Перекрытия – железобетонные плиты толщиной 14 см. Несущие стены – практически все: продольные межквартирные (а также межкомнатные в торцевых квартирах–«распашонках») и поперечные все (межквартирные, межкомнатные и межбалконные). При перепланировке в двухкомнатных квартирах, стоит учесть тот факт, что возможно снести только перегородки между туалетом и ванной.
Внешние стены - железобетонные трехслойные панели бетон – утеплитель (полистирол) толщиной 30 см. Внутренние межквартирные и межкомнатные – железобетонные панели толщиной 16 см. Перегородки гипсобетонные 8 см. Перекрытия – железобетонные плиты толщиной 14 см. Несущие стены – практически все: продольные межквартирные (а также межкомнатные в торцевых квартирах–«распашонках») и поперечные все (межквартирные, межкомнатные и межбалконные). При перепланировке в двухкомнатных квартирах, стоит учесть тот факт, что возможно снести только перегородки между туалетом и ванной. 
 В каждом подъезде установлен один пассажирский и один грузопассажирский лифт. Количество подъездов от 1 до 4, но бывают случаи, когда ряд подъездов в одном корпусе построен из блок-секций серии П-44К , а другая часть (центральная, угловая и/или торцевая) – из блок-секций П-44Т , тем самым увеличивая количество подъездов до 10. Дома серии П-44К чаще всего имеют 17 этажей, но бывают 12 и 14. В каждой квартире есть отопительные приборы с регуляторами температуры, медная электропроводка, горячее водоснабжение с верхним разливом. Лестницы незадымляемые, противопожарный балкон отсутствует. Мусоропровод расположен на лестнице, с загрузочным клапаном на площадке.
В каждом подъезде установлен один пассажирский и один грузопассажирский лифт. Количество подъездов от 1 до 4, но бывают случаи, когда ряд подъездов в одном корпусе построен из блок-секций серии П-44К , а другая часть (центральная, угловая и/или торцевая) – из блок-секций П-44Т , тем самым увеличивая количество подъездов до 10. Дома серии П-44К чаще всего имеют 17 этажей, но бывают 12 и 14. В каждой квартире есть отопительные приборы с регуляторами температуры, медная электропроводка, горячее водоснабжение с верхним разливом. Лестницы незадымляемые, противопожарный балкон отсутствует. Мусоропровод расположен на лестнице, с загрузочным клапаном на площадке. 
Срок службы дома серии П-44К около 100 лет, поэтому не стоит надеяться на снос в ближайшем времени.
Серия дома П-44 планировки. Планировка с размерами домов серии П-44
В серии жилых домов П-44 планировка с размерами квартир сделана с учетом опыта создания многофункционального комплекса. В проектах учтены потребности жильцов. Здания характеризуются удобной планировкой, изоляцией, декоративной отделкой.

Когда и кем спроектирована серия П-44
Типовая серия панельных зданий, разработанная в конце 1970-х гг. Московским институтом типового проектирования, производится строительной компанией ДСК-1.
Дома отличались:
- планировкой;
- наличием грузового лифта;
- большой кухней;
- оборудованием на первом этаже места для консьержа.
Зданиями П-44 застроены спальные районы Москвы. Первые 16-этажные постройки появились в 1975 г., а через 4 года развернулось массовое строительство, только с 17 этажами. Разработанный проект отличается удачной планировкой, поэтому в некоторых модификациях строится до сих пор.
Серия П-44т, состоящая из изолированных блок-секций, строится с 1997 г.
Здания отличаются:
- остеклением лоджий;
- лучшей теплоизоляцией наружных панелей;
- наличием эркеров;
- размещением вентиляционного отверстия с прихожей;
- высоким уровнем комфорта;
- качественной системой водоснабжения.
Дома этой категории соответствуют международным требованиям по пожарной безопасности. Фасадная часть строений облицована плиткой, имитирующей кирпичную кладку. Отделка стен выполнена в сочетании белого материала с бежевым, коричневым и синим цветом. Дом может быть согнут под углом 90º. В зданиях отсутствует арка.

Модифицированный вариант П-44К строится с 2006 г. Дома этой серии возводят в качестве муниципального жилья. На одном этаже расположено 4 квартиры с балконами. Нормативный срок эксплуатации здания составляет 100 лет. Здания П-44ТМ строятся с 2002 г. В них предусмотрено остекление лоджий и балконов. В 17-этажных зданиях 2-уровневая 4-комнатная квартира.
Характеристики планировки
Базовая модель дома П-44 возводилась до 1999 г. Панельный дом состоит из угловых и рядовых секций. Высота потолков составляет 2,64 м. В здании есть подвал, чердак для размещения инженерных коммуникаций, пассажирский и грузопассажирский лифт.
Наружные стены трехслойные с толщиной панели 300 мм. Внутренние изготовлены из железобетона толщиной 140 и 180 мм, гипсобетонные перегородки — 80 мм, перекрытия — 140 мм. На кухне и в санузле оборудована естественная вентиляция, а в поэтажных коридорах — система удаления дыма, отсутствует противопожарный балкон.
На каждой площадке есть мусоропровод с загрузочными клапанами. В квартирах этой серии изолированы все комнаты. На кухне установлена электрическая плита. В домах этой серии наружные стены смонтированы из 3-слойных навесных панелей, что улучшает теплоизоляционные параметры.
Между коридором и гостиной 3-комнатной квартиры конструкцией предусмотрен снос перегородки. Ванная стандартного размера длиной 170 см. В 1-комнатных квартирах совмещенные санузлы, а в 2- и 3-комнатных спроектированы раздельно.
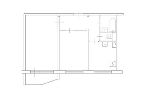
Планировка с размерами
Планировочное решение зависит от серии здания.

В рядовой секции базового проекта на этаже расположено 4 квартиры:
- линейная 2-комнатная — площадь 50,2 м²;
- «распашонка» — 57,7;
- 1-комнатная — 38,4;
- 3-комнатная — 75,5.
В угловой секции находятся 2- и 3-комнатные квартиры. Проектом предусмотрены большие прихожие, кухни, площадь которых составляет 8 м². К недостаткам планировки относят маленькую гостиную — 11 м², стандартную высоту потолка — 2,64 м.
Однокомнатные квартиры
Общая площадь составляет 38,4 м² и состоит из таких помещений, м²:
- изолированной комнаты — 18,9;
- балкона — 0,80;
- кухни — 7,40;
- совмещенной ванны и санузла — 3,50;
- прихожей, коридора — 7,80.

Проектное решение стандартное, в санитарном отсеке свободно располагается бытовая техника.
Двухкомнатные квартиры
Общая площадь составляет 57,70 м², включает такие типы помещений, м²:
- жилые комнаты — 17,20 и 13,90;
- балкон — 2,20;
- кухня — 10,20;
- санитарный узел — 0,80;
- ванная — 3,00;
- коридор, прихожая — 10,40.
Проектом предусмотрено линейное расположение, где все комнаты расположены по 1 стороне здания, а окна выходят на противоположную от подъезда сторону. В «распашонке» есть большая кухня с эркером, а комнаты выходят на обе стороны здания.
Трехкомнатные квартиры
Жилые помещения изолированы, общая площадь составляет 76,50 м² и включает в себя такие помещения, м²:
- комнаты — 18,90, 14,50 и 11,30;
- балкон — 2,30;
- кухня — 10,20;
- санузел — 1,00;
Все 3-комнатные варианты имеют формат «распашонки». Комнаты с лоджией, есть вариант с эркерной конструкцией, что повышает освещенность помещений.