Проекты оформления дизайна в трехкомнатных квартирах п44т. Выбор стиля и дизайна трехкомнатной квартиры п44т
- Проекты оформления дизайна в трехкомнатных квартирах п44т. Выбор стиля и дизайна трехкомнатной квартиры п44т
- Гостиная п44т. Архитектурные особенности домов серии П-44Т
- Кухня п44т трешка. Перепланировка: 5 идей для трехкомнатной квартиры серии П-44
- Самые удачные варианты обустройства трешки в П-44Т. Актуальные варианты перепланировки в трешке серии П-44Т
- Дизайн типовой 3х комнатной квартиры серии П-44Т. П-44т планировка с размерами 3-х комнатная квартира
- П-44 однокомнатная дизайн. Перепланировка: 3 идеи для однокомнатной квартиры серии П-44
Проекты оформления дизайна в трехкомнатных квартирах п44т. Выбор стиля и дизайна трехкомнатной квартиры п44т
Каждый хочет представить современное жилье в лучшем виде. Хозяева используют разные материалы для отделки и особый стиль. У каждого есть тот или иной вкус.
Урбанистический
Этот стиль привносит в интерьер четкие контуры и богатую цветовую палитру. Здесь представлена простая обстановка и различные элементы. Красочные постеры можно сделать в гостиной, что особенно актуально. Стоит выбрать такую конструкцию трешки №44, которая долгие годы будет радовать вас своей элегантностью.

Градостроительное направление интерьеров отличается динамичностью, универсальностью и правильной геометрией
Для отделки стен подойдут материалы с фактурой, имитирующей керамогранит или асфальт. В качестве пола подойдет керамическая плитка или паркет.
В готовой угловой трешке п44т прекрасно смотрится компактно установленная мебель. В дизайне присутствует нотка эстетики, практичности и разнообразия элементов. Также стоит обратить внимание на такие конструктивные элементы, как двери, столешницы, шкафы и тумбы.

Градостроительство довольно честная и гибкая, возможно введение элементов других стилей
Время от времени ремонт в трехрублевом фото п44т проводится по плану. Во-первых, для трехкомнатной квартиры необходимо подобрать набор инструментов и деталей, которые будут важны для отделки. Размеры могут быть самыми разными. Главное, чтобы все было гармонично.
Скандинавский
Этот стиль стали использовать многие жители, так как здесь комнаты могут быть отделаны натуральными и искусственными материалами. Здесь часто встречаются холодные оттенки. Любимые цвета: желтый, бирюзовый и темно-синий.

Скандинавские интерьеры просты и элегантны, не требуют особых дополнений
Квартиры эконом-класса отделаны искусственным камнем, штукатуркой, керамикой и деревом. Для внутренней отделки используются натуральные ингредиенты. Они украсят необычный стиль и придадут легкости.
Японский
Сегодня упор делается на японский стиль. Внутри часто можно увидеть традиционный стиль, присущий Японии. Внутри представлены оригинальные и необычные детали. В этом случае можно установить ограниченное количество аксессуаров и мебели.

Отличить японский интерьер от других направлений несложно
В интерьере использован ландшафтный дизайн, фото деревьев сакуры украшают стены и мебель. Актуально использование плетистого винограда, мелких цветков.
Гостиная п44т. Архитектурные особенности домов серии П-44Т
Постройки П – 44Т были разработаны еще в конце 70-х годов, став улучшенной версией и развитием серии П-44. Первые кварталы появились в столичных новостройках в 1979 году и сразу стали «элитным» жильем того времени.
Разработка прижилась, поскольку ничего лучшего почти 4 десятилетия не было предложено, хотя придумано многое. По данному проекту строят до настоящего времени, хотя в последнее десятилетие жилые массивы строят по разным проектам. Но все они в чем-то наследуют дизайн-проект П 44Т, получивший наибольшее распространение в 90-х годах.

Обновление интерьера необходимо осуществлять с учетом строительных ограничений
Так называемые дома улучшенной планировки предлагались с разным количеством комнат. Трехкомнатные были наиболее удобны для семей с разнополыми детьми. Типичная застройка – многоэтажки на 9, 14, 17 и 25 этажей (от 2 до 8 подъездов, изредка буквой «Г», «П» и «ломаной лесенкой»). Площадь не менее 80 кв.м с изолированными комнатами – что можно еще желать для комфортного проживания в условиях большого города?!
Большая площадь с просторной лоджией или большим балконом, просторные кухня и прихожая – очевидные преимущества любой планировки. Продуманный дизайн-проект квартиры П 44 в осовремененном варианте может успешно конкурировать с квартирами, построенными на основе последних разработок, как на фото.

Можно обустроить всю квартиру в едином дизайне или выбрать разное стилевое направление для каждой изолированной комнаты
Однокомнатные квартиры данной серии тоже намного удобнее «хрущевок» и «брежневок» – до 39 м² общей площади. Основная комната – 19 м², кухня по 7-9 м². Это давало дополнительное место для сна на раскладной диване, например, для взрослого ребенка. Для продуманного дизайна большой комнаты в П-44Т неплохие возможности, высокие потолки до 2,75 м позволяют монтировать многоуровневые конструкции и укладывать оригинальные полы. Большая прихожая и лоджия – дополнительные преимущества таких квартир.
Внимание! Сегодня для перепланировки и реорганизации жилого пространства нередко обращаются к специалистам. На примерах обустройства квартир «старого» фонда чаще всего иллюстрируют интерьер квартир в домах серии 44, они наиболее подходящие.
Дизайном П 44 однокомнатной, двух или трехкомнатной квартиры можно заняться и самостоятельно используя в качестве примера удачные проекты с фото.
Кухня п44т трешка. Перепланировка: 5 идей для трехкомнатной квартиры серии П-44
Проекты угловых квартир-«трешек» для разных семей и разных интерьерных задач
Постоянный автор Houzz. Интерьерный дизайнер и декоратор, руководитель студии дизайна интерьеров «Уютная Квартира», трендсеттер и колорист премиальных интерьеров.
Еще
анельных домов. Спроектированы эти дома МНИИТЭПом, и строились с конца 70-х до конца 90-х годов прошлого века. Потом на смену этой серии пришли улучшенные модификации. Многоэтажки П-44 являются родоначальниками целого семейства многоквартирных жилых домов: П-44М, П-44Т, П-44ТМ, П-44К.
Наталья Преображенская | Студия «Уютная Квартира» Сохранить фото
Типовая серия П-44: планировка 3-комнатной квартиры
Особенности планировки: В домах серии П-44 обычно 16-17 этажей (реже 8-17), два и более подъезда, в каждой квартире, кроме тех, что на первом этаже, есть балкон. Высота потолков — 264 см.
Предлагаю рассмотреть стандартную трехкомнатную угловую квартиру в доме П-44. Ее площадь составляет 74 квадратных метра, из них жилая — 45 кв.м, кухня — 10 кв.м. Почти все стены в квартире — несущие (кроме санузла, перегородок между кухней и коридором, первой комнатой и прихожей), что в целом дает мало возможностей для перепланировки и согласования. Тем не менее, как показывает практика, варианты организации пространства все же есть.
Важно: Все представленные в этой статье проекты перепланировок, кроме последней, необходимо согласовывать перед началом ремонта.
Наталья Преображенская | Студия «Уютная Квартира» Сохранить фото
Вариант 1: для родителей, ребенка и бабушки с дедушкой
Довольно распространенная для России ситуация, когда в одной квартире живут семья с ребёнком-школьником и родители одного из супругов. Чтобы разместить всех в трехкомнатной квартире с комфортом, в спальне мы выделили отдельную вместительную гардеробную, в детской — большой шкаф-купе, рабочее место и стеллаж для книг. В гостиной будет удобен угловой диван, который послужит и раскладным спальным местом. В центре кухни расположили столовую зону, чтобы за столом могла уместиться вся семья.
Ванную и санузел в данном конкретном случае для заказчиков объединили, но их можно оставить и раздельными — ориентируйтесь на потребности своей семьи.
Наталья Преображенская | Студия «Уютная Квартира» Сохранить фото
2. Вариант 2: для родителей и двух разнополых детей-подростков
Ключевая задача этого проекта ремонта квартиры — чтобы у каждого из детей была своя комната с вместительным шкафом, спальным и рабочим местами. Поэтому обустраиваем две полноценных детских.
Гостиную зону выделяем в спальне родителей, для этого визуально зонируем пространство комнаты легкой шторой.
Санузел объединяем, слегка увеличив его за счёт прихожей, благодаря этому получается разместить и ванну, и душевую кабину.
Наталья Преображенская | Студия «Уютная Квартира» Сохранить фото
Вариант 3: для молодой семьи и родителей
В этом варианте планировки нам нужны две спальни. Одну из них мы увеличиваем за счёт коридора, получая две одинаковых соседних комнаты.
В кухне получилось организовать и полноценную обеденную зону, и барную стойку для завтраков или коктейля.
Санузел объединили и успешно разместили всю необходимую сантехнику.
Наталья Преображенская | Студия «Уютная Квартира» Сохранить фото
Вариант 4: для родителей, старшего ребенка и двух детей-погодков
Для двух детей-школьников логично отдать самую большую по площади комнату. Поэтому мини-гостиная зона для друзей обосновалась в комнате взрослого мальчика-студента. Соответственно, под спальню для родителей мы отвели самую компактную комнату. А чтобы организовать в ней встроенный шкаф, пришлось забрать часть площади коридора.
Санузел совмещен, в нем легко уместилась вся необходимая сантехника, включая сушилку и стиральную машинку вертикальной загрузки.
Наталья Преображенская | Студия «Уютная Квартира» Сохранить фото
Вариант 5. Для молодой семьи с перспективами
Самый приятный и простой вариант — когда в просторную квартиру въезжает пара с прицелом на пополнение. П ланировка 3-комнатной квартиры в П-44 как будто для этого и создана. Здесь есть все необходимое: спальня, гостиная и еще одна комната, которая до появления детей может послужить гостевой спальней.
Перепланировка со сносом перегородок в данном варианте не нужна.
ВАША ОЧЕРЕДЬ…
Какие плюсы и минусы вы видите в предложенных вариантах перепланировки 3-комнатной квартиры ? Что именно вы бы сделали по-другому? Делитесь вашими мнениями в разделе комментариев.
Самые удачные варианты обустройства трешки в П-44Т. Актуальные варианты перепланировки в трешке серии П-44Т
Объединение кухни и гостиной
Если хотите соединить кухню с гостиной, превратив ее в большую столовую для уютных семейных вечеров, лучший вариант — сделать вместо дверного проема широкую арку.
Рассчитайте точную стоимость ремонта на онлайн-калькуляторе
и бесплатно получите подробную смету на ремонт
РассчитатьВ домах, построенных после 2007 года, в несущих стенах между гостиной и кухней есть ниша под дверной проем («вафля») — ее можно демонтировать. Однако такая особенность есть не во всех новостройках. Перед тем как решиться на перепланировку, важно внимательно все проверить.
Объединение кухни и лоджии
Продлить кухню с помощью лоджии можно, но тут тоже есть нюансы. Лоджию можно присоединить, оставив подоконный блок. Можно сделать из него стол или барную стойку.
Фото:roomydeas.com
Лоджия как отдельная комната
Идеальный вариант для такой планировки, так как в этом случае стены остаются на месте. Нужно только утеплить лоджию. Вариантов использования такого помещения несколько: можно оборудовать рабочую зону, гардеробную или дополнительное место для отдыха.
Фото:zyhomy.com
Объединение туалета и ванной
Стена, разделяющая ванную и туалет, не несущая, поэтому ее можно смело демонтировать. Вместо нее установите, к примеру, перегородку из прозрачного или матового стекла. Она не займет много места — пространства будет больше — и создаст необходимые зоны для уединения.
Фото:instagram.com
Объединение коридора и гостиной
Многие жильцы жалуются на то, что коридор в такой планировке большой, но очень темный, поэтому его сложно использовать. Поэтому еще один возможный вариант — демонтаж стены между коридором и гостиной. Так комната станет намного больше, а зона коридора светлее.
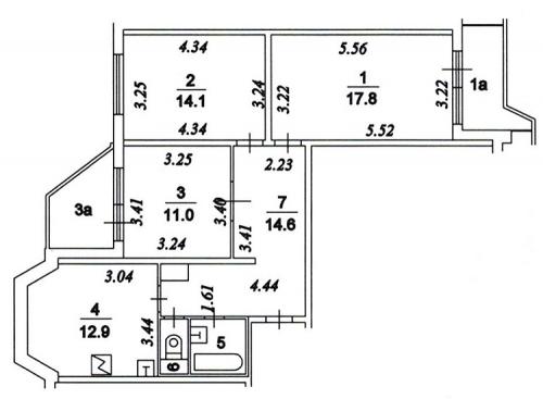
Дизайн типовой 3х комнатной квартиры серии П-44Т. П-44т планировка с размерами 3-х комнатная квартира
Давайте сегодня посетим 3-х комнатную квартиру, панельного дома серии П-44Т от застройщика ДСК-1
Квартира получилась хорошая и просторная, но проектировщики не стали мудрить с дизайном и планировка оказалась похожая на другие аналогичные трехкомнатные квартиры панельных домов. Комнаты все изолированные друг от друга. На кухне добавился большой эркер и в комнате угловых квартир присутствует треугольный эркер. В двух комнатах имеются балконы.
Мы с вами рассмотрим планировку трехкомнатной квартиры со следующими размерами:
Комната с балконом сапожок 17,8 кв.м. (на схеме номер 1)
Комната без балкона 14,1 кв.м. (на схеме номер 2)
Комната с балконом утюжок 11 кв.м. (на схеме номер 3)
Кухня с большим эркером 12.9 кв.м. (на схеме номер 4)
Коридор с прихожей 14,6 кв.м. (на схеме номер 7)
Жилая площадь 42,9 кв.м
Общий метраж квартиры без балконов 70.4 кв,м
схема планировки трёхкомнатной квартиры П-44Т с размерами

Открываем входную дверь и попадаем в предбанник. Впереди идёт стена с проёмом, в котором изначально сделана небольшая арка. Справа за дверью, есть небольшое пространство, куда может поместиться небольшая гардеробная или тумба для обуви.

В этом варианте мы видим пример такой тумбы под обувь.

Так же это место может занять красивое большое зеркало в полный рост.

Проходим вперёд и попадаем в самый центр прихожей. Нас встречают три двери. Слева большая двойная дверь ведет нас в комнату 11 кв.м. и балконом башмачок. И две рядом расположенные двери - это комнаты. Что правее самая большая комната 17.8 кв.м. с балконом сапожок, и что слева маленькая комната 14 кв.м. без балкона.

Несколько интересных идей в дизайне прихожей трехкомнатной квартиры. На фото видно, что в ближнюю нам комнату слева поставили двери купе.

Ещё один интересный вариант прихожей. В арку смонтировали освещение.

А здесь по правую сторону синей прихожей, в дизайне применили колонны с освещением.

Расстановка мебели в прихожей
Если в комнатах нужно больше простора и не захламлять шкафами комнаты, для этих целей подойдет прихожая.

По длинной стене установится большой шкаф.

Кто полностью не ушел в электронные книги, а собирает дома домашнюю библиотеку, интересное решение будет если в прихожей разместить полки для книг.

В углу впишутся угловые полки.

Комната с балконом утюжок
С прихожей заходим в комнату с большим дверным проёмом. Обычно эту комнату используют под гостиную или зал. Комната хоть и не очень большая, но квадратная.

А если убрать оконные рамы и демонтировать часть подоконника, можно продлить комнату и соединить вместе с балконом.

Не всегда хватает жильцам трёх комнат. Частенько на балконах организовывают рабочие кабинеты. Оказывается и они находятся в такой ситуации, когда дорог каждый квадратный метр.

П-44 однокомнатная дизайн. Перепланировка: 3 идеи для однокомнатной квартиры серии П-44
Реально ли организовать спальню и гостиную в единственной комнате маленькой квартиры?
Думаю, я не увижу шквал критики в комментариях, если заявлю как архитектор: однокомнатная квартира для семьи с детьми мала. И то, что такие квартиры востребованы на рынке недвижимости — это издержки ценообразования в крупных городах, а не предел ипотечных мечтаний молодой семьи. К сожалению, это социальная проблема, и решать ее должны не архитекторы. Я лишь могу подсказать, как законно организовать комфортную среду в однокомнатной квартире серии П-44, чтобы квартира «не трещала по швам».
Руслан Кирничанский Сохранить фото
Исходная планировка
Однокомнатная квартира в доме серии П-44 состоит из одной жилой комнаты, кухни, санузла, прихожей и балкона.
Стена, разделяющая кухню и комнату, несет нагрузку перекрытия, стены ванной комнаты — легкие перегородки.
В кухне есть выступ вентиляционной шахты, возле которой — подводки воды.
Руслан Кирничанский Сохранить фото
Решение 1: Больше мест для хранения в кухне
Начнем с прихожей. Располагаем высокие (под потолок) встроенные шкафы для хранения одежды. Коридор тоже задействуем максимально — вдоль длинной стены продолжаем линию шкафов (пространство над дверью используем для верхнего навесного шкафа).
Ванную комнату оставляем как есть, а вот кухню меняем: для того, чтобы организовать места для хранения посуды и поставить большой холодильник, можно передвинуть фрагмент перегородки с дверью ближе к прихожей, увеличив тем самым площадь кухни. Расширение кухни за счет нежилой площади допустимо. Расстановка мебели кухни углом — оптимальный вариант, поскольку это позволит «вписать» вентиляционную шахту в интерьер (демонтировать ее категорически запрещено!)
LifeEdited Inc. Сохранить фото
В однокомнатной квартире люди часто идут на компромисс, когда вместо полноценной кровати выбирают диван-кровать, руководствуясь при этом тем, что места недостаточно, а «гостей привести некуда, если поставить кровать в единственной комнате». Проблема понятная, но переоцененная — куда вреднее, на мой взгляд, ежедневный сон на раскладном диване. Потому предлагаю использовать кровать-трансформер, которую легко убрать в шкаф. Теперь комната используется и как гостиная, и как спальня.
Роман Спиридонов Сохранить фото
Второе по частоте решение (после складного дивана) — организовать кровать в алькове. Такая незамысловатая идея встречается в 9 из 10 интерьерных проектов для малогабаритных квартир. Однако для однушки в П-44 это сложное в реализации решение — виной тому дверной прием, который неизбежно придется смещать в сторону кухни (что требует согласования и грамотного укрепления стены).
ЧИТАЙТЕ ОБ ИНТЕРЬЕРЕ С ФОТО…
В гостях: Солнечная квартира флориста в Самаре
Руслан Кирничанский Сохранить фото
Решение 2: Вариант без перепланировок
При такой расстановке мебели мы обходимся без переноса стен (немного проигрываем в организации пространства кухни). Разделение комнаты на зоны происходит при помощи расстановки мебели.
User Сохранить фото
Потому, если уж альков как дизайн-решение вам интересен, предлагаю «переиграть» его в диван, совмещенный с системой хранения. И гостиную зону разместить ближе ко входу в комнату. А спальню с полноценной кроватью выгородить ближе к балкону.
Идея с фото: Мы сейчас не о лежанке для собаки — обратите внимание на розетки для монтажа в пол! Отличное решение, чтобы не путаться в удлинителях.
BohoStudio Сохранить фото
Оставшуюся часть комнаты делим при помощи мебели: например, открытого стеллажа с монтажом по принципу пол / потолок. Такой стеллаж позволит проникать свету из окна в дальнюю часть комнаты. Кроме того, в нем можно устроить экспозицию сувениров или красиво расставить предметы и книги.
ЧИТАЙТЕ ОБ ИНТЕРЬЕРЕ С ФОТО…
Houzz тур: Эстетика лофта на 40 квадратных метрах
Руслан Кирничанский Сохранить фото
Решение 3. Из однушки — двушка
Часто бывает, что квартира состоит из одной комнаты, а необходимы две. Придется организовать дополнительный проем в капитальной стене, что допустимо при условии укрепления конструкции.
Сложность решения в том, что окно одно, и чтобы совсем уж не лишиться солнечного света в спальне, между ней и гостиной монтируем легкую перегородку из матового стекла . Сегодня эту комнату вы можете использовать как гостиную, завтра — как детскую. Обратите внимание, что в таком варианте перепланировки ванная комната увеличена за счет коридора, что допустимо. Однако мест для хранения стало на порядок меньше. Решайте, что важнее для вашей семьи.