Чертеж лестницы из металла. Преимущества и недостатки металлических лестниц
- Чертеж лестницы из металла. Преимущества и недостатки металлических лестниц
- Лестница по металлическим косоурам чертежи. Металлическая лестница на косоурах
- Лестница из профильной трубы чертеж. Внешний вид лестницы
- Чертеж лестницы с площадкой. Данные для составления чертежей
- Лестница из уголка чертеж. Изготовление металлической лестницы с двумя косоурами
- Чертеж лестницы. Расчёт лестницы
- Чертеж металлической лестницы с площадкой. Снип лестницы маршевые площадки и ограждения стальные — чертежи и схемы
- Лестница из швеллера чертеж. Лестница из швеллера своими руками: правила комфорта, советы и процесс
Чертеж лестницы из металла. Преимущества и недостатки металлических лестниц
Металлическая лестница на второй этаж из профильных труб по техническим характеристикам превосходит изделия из дерева. Среди явных плюсов стоит выделить следующие:
- Хорошее воображение мастера подарит металлической лестнице самую необычную форму. Она с легкостью станет центральным предметом, притягивающим взгляд друзей, родственников и других гостей.
- Металлический каркас, собранный с соблюдением всех норм инженерного строительства, предоставит владельцу надежную и безопасную конструкцию для межэтажного перемещения. Правильная сборка станет гарантией, что в ближайшие годы ваше сооружение обойдется без дополнительного ремонта и реставрации.
- Металл — достаточно податливый материал и при достаточном опыте мастера, из него можно создать формы, радующие глаз и согревающие душу. Комбинированная модель, собранная из нескольких материалов, станет украшением любого типа интерьера.
- Один из плюсов металлических конструкций — это скорость сборки. Мастер с опытом в конструировании и монтаже лестниц действует по проверенной схеме, сверяя правильность действий по чертежам с точными размерами.
- Конструирование металлической лестницы не требует привязки к строительству дома. Сборка может проводиться как до, так и после его завершения.
- Лестницы из металла универсальны и могут собираться как внутри помещения, так и с наружной части дома. Высокие показатели прочности, красивый дизайн помогут металлической лестнице стать украшением дома независимо от места ее установки.
- Для самостоятельной сборки совсем необязательно привлекать много народа. Достаточно одного помощника.
- Высокая прочность металла позволяет создавать самые простые схемы лестничных маршей с установкой единственной направляющей по центру конструкции. Надежность металлической лестницы не оставляет места для сомнений. Оно выдержит вес не одного человека.
Лестница по металлическим косоурам чертежи. Металлическая лестница на косоурах
Чертеж металлической лестницы сделать гораздо проще, если структура обустраивается с помощью косоуров. Это обусловлено тем, что нужно просчитать расстояние для каждой ступеньки и подготовить материал, который впоследствии будет закреплен на основание. Косоуры – это база (основа) в форме будущей лестницы.
Она может быть произведена из разных материалов и быть закреплена, как этого требует помещение. Конечно, для приобретения подходящих косоуров замеры все же осуществить требуется.
Ведь конструкция должна подходить под параметры выделяемого под лестницу пространства. Лестница по металлическим косоурам поможет даже неопытным мастерам реализовать задачу установки.
Главное — правильно сделать чертежи лестницы с отметкой места, где будет расположены сходни. А также иметь под рукой инструменты и материалы, необходимые для воплощения этой идеи в собственном доме.
Преимущества
Вариант конструкции металлической лестницы
Благодаря тому, что сходни, оборудованные с использованием косоуров, заслужили призвание, положительные стороны такого решения очевидны:
- Это облегчает процесс работы;
- Позволяет с легкостью организовать порядок действий;
- Такие конструкции прочны и долговечны;
- Благодаря косоурам даже неопытный специалист или просто хозяин дома, сможет реализовать задуманное и воплотить его в реальность;
- Этот элемент позволяет уделить больше времени деталям и дизайнерским экспериментам, которые украсят проект лестницы на второй этаж .
Это далеко не все позитивные стороны лестниц на косоурах, каждый владелец частного дома находит свои независимые преимущества.
Недостатки
Нужно правильно определить размер основы под ступеньки, чтобы конструкция четко вписалась в интерьер. Сделать такие расчеты несложно. Достаточно просто измерить высоту, угол наклона и ширину требуемой установки.
Лестница из профильной трубы чертеж. Внешний вид лестницы
Поскольку изделия из профиля становятся все более популярны, в сети можно найти любые модификации лестниц из профильной трубы. Не обошли вниманием даже довольно смелые решения в виде стеклянных сооружений без перил или «утиный шаг», то есть практически вертикальный лестничный пролет с шириной ступени для одной ноги. Однако проще всего для начинающих строителей изготовить маршевую лестницу из профтрубы своими руками, которая пользуется наибольшей популярностью среди хозяев домов.
Чтобы правильно подобрать параметры данной конструкции, можно изготовить чертежи лестницы из профильной трубы своими руками, взяв за основу один из наиболее подходящих проектов и адаптировав его под конкретные размеры.
Маршем именуется конструкция, которая находится между поворотными площадками. Различают прямые, двух- и многомаршевые сооружения. Если речь идет о винтовой лестнице, то все ступени в ней расположены вокруг одной оси. Их используют для подъема внутри здания – между этажами или до входной двери, а также для пересечения неровностей ландшафта.
Наиболее крепкими и надежными считаются стационарные лестницы из квадратной трубы. Однако в случае необходимости можно пользоваться складными портативными изделиями.

Для сборки лестничного пролета используют такие материалы:
- металлические элементы – уголки, сварные детали, профильные трубы;
- древесина;
- железобетон;
- композитные материалы.
Способов монтажа деталей для лестничного пролета может быть несколько, однако, самым надежным считается сварка металлических конструкций.
Крепление ступеней лестницы может быть:
От способа крепления ступеней будет зависеть набор материалов, которые понадобятся для сооружения лестницы из профильной трубы своими руками. Чтобы было легче выбрать тип конструкции под конкретное помещение или местность, можно просмотреть ряд фотографий.

Некоторые опытные мастера рекомендуют выполнять из профильной трубы только косоуры или основу конструкции, а для ступеней использовать материалы с меньшей массой. Наилучшим выбором для основы лестницы будет профиль с размерами 60×40 мм.
Стоит отметить, что у конструкций из профиля есть ряд несомненных достоинств:
- Хорошая сопротивляемость образованию плесени и коррозии, что делает их приемлемыми в местах с постоянными перепадами температуры и без отопления.
- Приставная лестница из профильной трубы может прослужить довольно долго, а в случае ее разборки, металл за ненадобностью можно продать или сдать в качестве лома.
- Сборка и монтаж металлического модульного или сварного каркаса производится достаточно быстро и легко.
- Поскольку внешний вид лестницы из профиля является довольно лаконичным, не составит большого труда совместить ее с имеющимся в помещении интерьером.
- Профильные трубы будут вполне доступны для большинства покупателей, поэтому себестоимость проекта будет невысокой. Да многим и работать с металлом проще, чем с древесиной.
- Металлический каркас из профилей превосходит по прочности любые другие аналогичные сооружения.
- Срок монтажа лестницы на второй этаж из профильной трубы намного меньше, чем при работе с деревом, если, конечно, у вас есть сварочный аппарат и навыки работы с ним.
- Немаловажен тот факт, что благодаря наличию металлической основы, в такой лестнице можно совмещать самые различные материалы – стекло, мрамор, плитку и даже пластик.
Чертеж лестницы с площадкой. Данные для составления чертежей
Для начала определяются с местоположением будущей конструкции и производят следующие замеры:
- Высота проема. За основу берется чистовой пол, первого и второго этажей. Расстояние от одного до другого – требуемый параметр.
- Ширина проема. Следует отметить, что она может иметь различную конфигурацию: от самой востребованной – прямоугольной до фигурной (круг, овал или другое нестандартное исполнение). Этот параметр существенно влияет на выбор конструкции.
- Высота от потолка до пола первого этажа. В дальнейшем позволит рассчитать высоту прохода и правильно спроектировать и сконструировать лестницу в доме .

Схема и чертеж лестницы с размерами по высоте и ширине
До разработки чертежа следует внимательно изучить строительные нормы для лестниц:
- Глубина, ширина, высота ступеней по всей длине конструкции не должны меняться. Это обеспечивает удобство и безопасность движения;
- Ширина лестничного проема для прямых маршей должна быть от 900 мм, для винтовых сооружений от 800 мм;
- Высота ограждения 900-1200 мм. Лучше если оно предусмотрено по обеим сторонам лестницы;

Чертеж с размерами высоты перил лестницы
Грамотные чертежи лестниц на второй этаж можно выполнить только на основе перечисленных параметров и дальнейших расчетов. Каждый вид конструкции имеет свои особенности.

Лестница из уголка чертеж. Изготовление металлической лестницы с двумя косоурами
Соблюдаем такую последовательность в работе:
- Резка заготовок.
- Изготовление кобылок (узлов для крепления ступеней).
- Сварка опорных уголков.
- Монтаж косоуров.
- Приваривание ступеней и ограждения.
- Шлифовка.
- Грунтовка и покраска.
Сначала из уголков изготавливаем узлы для крепления ступеней (кобылки). Здесь важно не ошибиться, перекосы и неточности испортят лестницу. Кобылки должны быть одинаковыми и выполненными зеркально по отношению друг друга. Изготавливаем кобылки из стального уголка: вырезаем выборки, стыкуем уголки между собой. В итоге должны получиться Г-образные сварные узлы полками вниз и внутрь (полками вверх и внутрь сваривают кобылки для бетонных ступеней, а также для их декорирования керамической плиткой или керамогранитом). Для нашей конструкции потребуется 14 пар таких узлов – в каждой паре одна опора будет левой, вторая правой. Привариваем кронштейны для крепления ступени и поперечную перекладину между каждой парой уголков. Поперечную перекладину тоже делаем из уголка. Усилить прочность можно и с помощью небольших косынок, которые устанавливаются снизу ступени по направлении к каждому косоуру.
По ребру профильной квадратной трубы делаем разметку и по ней привариваем кобылки к ребру косоура. Приставляем к первому косоуру с приваренными кобылками второй, и точно переносим разметку. Так мы получим четкую геометрию всех элементов.

Совет. Для металлической лестницы на второй этаж с шириной более 1200 мм целесообразно установить посредине конструкции третий косоур.
У нас ширина составляет 900 мм, и двух косоуров нам вполне достаточно. Привариваем кобылки ко второму косоуру. Проверяем их по уровню. Затем привариваем косоуры нижним концом к опорной платформе. В домах с бетонным основанием опорная платформа может быть установлена в бетоне. Верхний конец крепим к опорной стойке, которая закреплена к перекрытию между этажами стальными анкерами. Еще раз проверяем кобылки по уровню.
Если металлическая лестница сделана в пристенном варианте, для придания конструкции дополнительной жесткости один косоур можно приварить к кронштейнам, закрепленным на стене.
Последний этап – приваривание ступеней к кобылкам. Можно также закрепить их болтами, их в этом случае надо обшивать деревом. Еще один вариант – установить деревянные ступени прямо на кобылки с помощью винтовых соединений.
Верхняя ступень устанавливается на минимальном расстоянии от стены. Необходимо, чтобы между стеной и ступенью проходил лист обоев – впереди отделочные работы. Ограждение приваривается сбоку металлической лестницы таким образом, чтобы не уменьшать ее ширину.
Чертеж лестницы. Расчёт лестницы





Лестница – один из основных атрибутов в доме, она не просто помогает легко перемещаться между этажами, но и служит главным предметом декора. К тому же правильный расчет данного конструктивного элемента напрямую влияет на безопасность. Данная серия онлайн калькуляторов подойдет под любые ваши потребности. Поможет произвести точный расчет и учтет все детали. Вам останется только распечатать готовые чертежи.
Наши онлайн калькуляторы с чертежами созданы для простого человека, пожелавшего спроектировать и построить лестницу своими руками. Но это не значит, что профессионал не найдет в них, ничего полезного. Скомпилированные алгоритмы позволяют исключить ошибки в просчетах, и максимально точно подготовить рабочие чертежи, как для деревянной, так и металлической лестницы.
Данные скрипты учитывают и помогают рассчитать:
- прямые, поворотные, Г и П образные лестницы;
- лестницы любых типоразмеров, выполненные из металла, дерева и бетона;
- производят расчёт лестницы с забежными ступенями на 90 и 180 градусов;
- все конструктивные элементы, включая косоуры, поручни, ступени, подступенки.
Если вы еще не определились с выбором типа, внешнего вида и функционала, наш калькулятор лестницы на второй этаж в частном доме, поможет вам это сделать. Забежные лестницы, винтовые, или с гусиным шагом обычно делают из-за того, что просто мало место, и полноценную лестницу грамотно не поместить.
Если у вас маленькие дети или пожилые люди тогда вам лучше выбрать надежный и безопасный вариант лестницы с площадкой. Прикидывайте, считайте, проверяйте, оценивайте свои трудозатраты, распечатывайте готовые чертежи и используйте все это абсолютно бесплатно.
Основные рекомендации при расчете лестницы:
- Учитывайте угол наклона лестницы удобный при ходьбе, обычно это 30-40°. Если увеличить угол, то подниматься становится тяжело, особенно пожилым людям.
- Оптимальная высота шага при ходьбе 15-20 сантиметров. Определитесь с этой величиной, и вы поймете высоту подступенка.
- Ширину ступеней лестницы принято принимать в пределах 27-32 сантиметра. Не забывайте учитывать особенности покупных ступеней, они, как правило, выполнены в заводских условиях и имеют стандартную ширину 30 сантиметров.
- Свес у деревянных ступеней не более 5 см, ибо будет затруднителен спуск, делая ширину ступени не удобной.
- Учитывайте ширину маршей и расстояния между ними, исходя из пожарной безопасности и удобства. Обычно для удобного подъема для одного человека нужен диапазон 90-120см,
Выполняя расчет лестницы онлайн, соблюдайте данные рекомендации, ведь от этого напрямую зависит качество расчета и его точность, а так же техника безопасности и комфортность эксплуатации в будущем.
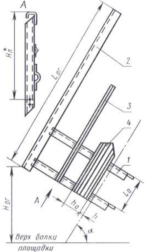
Чертеж металлической лестницы с площадкой. Снип лестницы маршевые площадки и ограждения стальные — чертежи и схемы
Длина L к ; L п ; L or

* По чертежам КМД.
1 — косоур; 2 — ступень; 3 — опорная планка; 4 — опорный уголок; 5 — ребро

* По чертежам КМД.
1 — балка; 2 — окантовочный элемент; 3 — настил; 4 — ребро
900; 1200; 1500; 1800; 2100; 2400; 3000; 3600; 4200; 4800; 5400; 6000
Ограждение лестничного марша

* По чертежам КМД.
1 — стойка; 2 — поручень, 3 — средний ограждающий элемент; 4 — бортовой элемент

* По чертежам КМД.
1 — стойка; 2 — поручень, 3 — средний ограждающий элемент; 4 — бортовой элемент
900; 1200; 1500; 1800; 2100; 2400; 3000; 3600; 4200; 4800; 5400; 6000
Пример условного обозначения марки лестничного марша (МЛ) из холодногнутого профиля (Х) со штампованными ступенями (Ш), под углом 45° и размерами Н = 6 дм и В = 8 дм:
МЛХШ45-6.8 ГОСТ 23120-78
То же, площадки (ПМ) из холодногнутого профиля с рифленым настилом (Ф) и размерами L n = 9 дм и В = 6 дм:
ПМХФ-9.6 ГОСТ 23120-78
То же, левого ограждения (ОГл) лестничного марша из холодногнутого профиля без бортового элемента, под углом 45° и размерами H or = 10 дм и H = 24 дм:
ОГлМЛХ45-10.24 ГОСТ 23120-78
То же, правого ограждения (ОГп) с бортовым элементом (Эб):
ОГпМЛХЭб45-10.24 ГОСТ 23120-78
То же, ограждений площадки из холодногнутого профиля с бортовым элементом и размерами H or = 10 дм и L or = 9 дм:
ОГПМХЭб-10.9 ГОСТ 23120-78
1.2. В зависимости от условий эксплуатации ступени маршевых лестниц и настилы прямоугольных площадок должны изготовлять двух типов:
1 — сплошные из рифленой стали (Ф);
2 — решетчатые, исполнений:
Ш — из штампованных элементов;
Р — из полос на ребро и круглой стали;
С — из полос на ребро в одном направлении;
В — из просечно-вытяжной стали.
1.4. Компоновочные схемы маршевых лестниц, площадок и ограждений приведены в приложении.


Лестница из швеллера чертеж. Лестница из швеллера своими руками: правила комфорта, советы и процесс
8 мин.
Лестница
Малоэтажные дома — один из самых популярных видов в частном строительстве. Такие конструкции позволяют получить максимум полезной площади на минимально возможном пространстве, поэтому лестница для них — атрибут необходимый. Чтобы избежать неразумных трат, многие хозяева решают создать этот необходимый элемент самостоятельно. Одни решают использовать дерево, другие рассматривают более внушительное сооружение — металлический каркас. Лестница из швеллера своими руками — вариант, который выбирают многие. Межэтажная конструкция будет прочной, надежной и долговечной. Любое начинание невозможно без «бытия в теме», поэтому перед тем как принять окончательное решение, надо узнать о предмете интереса максимум информации.
Лестница из швеллера: преимущества, недостатки
Конструкция, состоящая из швеллера и уголка, — голый каркас, который после изготовления будет преображаться тем или иным способом. Поэтому с преимуществами этого элемента надо познакомиться поближе. К ним относится:

- Максимальная прочность. Швеллер способен выдержать серьезные нагрузки, но главное условие для надежности конструкции — качественное соединение всех ее деталей.
- Большой ассортимент материалов для обшивки. В «список швеллера» входит традиционное дерево, древесно-стружечные плиты, металлические, гипсокартонные листы, пластик.
- Устойчивость к коррозии, перепадам температур, однако для защиты металла требуется соответствующая обработка (грунтовка, грунтовочная эмаль).
- Возможность выбрать оптимальную конструкцию, так как вариантов существует довольно много: как традиционных, так и оригинальных.
- Простота обслуживания во время эксплуатации.
- Отсутствие скрипа и вибрации.

Если выбрана лестница, не имеющая сложных элементов, кованых украшений, то она обойдется в довольно приемлемую сумму. В ступеньки можно превратить дерево, камень, рифленый металл или толстое стекло.
Недостатков у металлической лестницы немного. В первую очередь, это требовательность к автору изделия: он должен иметь навыки работы со сварочным оборудованием. Вторая возможная неприятность — ошибка в расчетах, поэтому лучше, если ими будет заниматься компетентный человек.
Делать или нет самостоятельно?
Прежде всего, нужно объективно оценить свои силы. Когда мастер имеет опыт в сварке, может и хочет досконально разобраться с расчетами, больших препятствий для «лестничной авантюры» не существует. Однако надо знать, что времени конструкция отнимет немало, а помощник для такой работы просто необходим.
Кроме того, первая лестница из швеллера своими руками не может быть слишком сложной: с максимально простой конструкцией разобраться и справиться легче. Винтовые или поворотные сооружения, наоборот, обязательно продемонстрируют свое «коварство».
