Планировка однокомнатной квартиры в панельном доме. Особенности планировки
- Планировка однокомнатной квартиры в панельном доме. Особенности планировки
- Перепланировка однокомнатной квартиры в студию. Перепланировка квартиры в студию
- Перепланировка в однокомнатной хрущевке. Перепланировка 1-комнатной квартиры в хрущевке
- Как переделать однокомнатную квартиру в студию. Готовые схемы проектов переделки однокомнатной квартиры в двухкомнатную разной площади
- Дизайн однокомнатной квартиры в пятиэтажном доме. Делаем невозможное: раздвигаем границы пространства
- Видео #Перепланировка однокомнатной квартиры в панельном доме
Планировка однокомнатной квартиры в панельном доме. Особенности планировки
Недостатки планировки 1-комнатной квартиры:
- Небольшая жилая площадь.
- Очень часто – низкий потолок.
- Маленький туалет, ванная комната и кухня.
- Маленький коридор или прихожая.
- Нет антресолей.
- Часто нет балкона или лоджии.
Использование перегородок при перепланировке
Главное преимущество квартиры, расположенной не на углу дома, а внутри, является ее намного лучшее сохранение тепла. Кроме того, существует несколько непреложных правил, которые применяются при планировке:
- Старый дизайнерский прием – необходимо визуально показать как можно больше свободного места в комнате.
- Обильное искусственное освещение даже при наличии достаточного естественного освещения.
- Использование комбинаций цвета. Например, потолок всегда должен быть светлее остальных поверхностей, но его не обязательно делать белым – он может быть любого цвета. Более светлый потолок визуально приподнимется и сделает помещение просторнее.
- Зеркала и глянцевые отражающие поверхности в интерьере также позволят визуально увеличить комнату.
- В однушке предпочтительнее использовать стиль дизайна минимализм – он сделает комнату просторнее и сохранит ее функциональные особенности.
- Встроенная или мобильная мебель.
- Вместо стационарной внутренней перегородки между помещениями рекомендуется установить мебель – шкаф, стеллаж. Она будет выполнять не только роль перегородки, но и свои непосредственные функции.
Перепланировка однокомнатной квартиры в студию. Перепланировка квартиры в студию
Вместо покупки квартиры – студии собственники часто прибегают к другому варианту – перепланировке квартиры в студию.
Кажется, что так было бы гораздо проще, однако у такой перепланировки свои подводные камни. Существует тяжелый процесс согласования , который усложняет вопрос во сто крат и на нашей практике мы убедились, что реализовать идеи собственников удается не всегда. Почему это так и от чего зависит, мы расскажем дальше.
Основное о согласовании
Судьба ремонта квартиры зависит не только от собственника или правильно подобранного подрядчика. Важно, какие работы выполняются в квартире и получено ли на них разрешение .
Если собственник решился на самовольную перепланировку , о ней обязательно узнают, а в этом случае его ждет штраф , предписание , узаконивание перепланировки без разрешения, или вовсе проведение работ по исправлению нанесенного ущерба.
Предписание жилищной инспекции:



Примечание: раньше перепланировку квартиры в студию можно было согласовать в уведомительном порядке (т.е. по эскизу), что отражено в множестве ныне не совсем актуальных статей. Сейчас для перепланировки необходима разработка проектной документации и технического заключения о состоянии конструкций.
Перепланировка квартиры в студию зависит от согласования, в котором много нюансов. Без соблюдения всех требований перепланировка будет свернута на стадии проекта и разрешения.
Основным мероприятием при перепланировке квартиры в студию является снос всех перегородок, а раз так, возможность создания студии отпадает в большинстве квартир в домах блочных и панельных серий. Дело в том, что в них практически все стены несущие .
Стандарты перепланировок потенциальных квартир-студий
Чаще всего перепланировки из однокомнатных в студии производятся в монолитных и кирпичных домах, где ненесущие стены, так как несущие удалять запрещено.
Пример перепланировки однокомнатной квартиры в монолитном доме в студию:



Примечание: не во всех случаях разрешается удалять даже ненесущие стены, так как те иногда являются укреплениями деревянных перекрытий. Если все же разрешение на такое мероприятие дано, то только с условием обязательного усиления металлическими конструкциями.
Жилое пространство
Далее. Перепланировка однокомнатной квартиры в студию является спорным мероприятием потому что при избавлении от стен формально жилая комната перестает таковой являться, а в жилой квартире обязательно должна присутствовать хотя бы одна жилая комната.
Поэтому имеется предусмотренное требование, чтобы после перепланировки в квартире имелось изолированное жилое помещение, площадь которого должна составлять от 14 кв. м.
Разрешение на перепланировку квартиры, фото:
Газифицированные помещения
Если ваша квартира облает кухней с газовой плитой, квартиры – студии не выйдет, так как объединение газифицированного помещения с жилым недопустимо. В таком случае вы должны будете установить раздвижную перегородку, что ставит крест на идее перепланировки квартиры в студию.
Можно электрифицировать кухню. Однако должны заметить, что электрифицированная кухня должна отделяться от остального пространства элементами декора, покрытием пола.
Мокрые зоны
Санузел обязательно должен быть отделен от пространства студии. Это может быть коридор, тамбур или, опять же, раздвижная перегородка.
Если вам необходимо проконсультироваться по поводу перепланировок, процесса согласования, вы можете получить бесплатную помощь от одного из наших специалистов по телефону или через почту. Данные ищите в разделе " Контакты ".
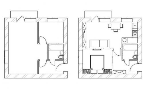
Перепланировка в однокомнатной хрущевке. Перепланировка 1-комнатной квартиры в хрущевке
Перепланировка однокомнатной квартиры в хрущевке подразумевает два варианта – либо мы находим способы выкроить дополнительные квадратные метры и делаем пространство максимально свободным, либо делим одну комнату на две. Нередко перепланировка затрагивает балконы и лоджии, присоединяя их к общей полезной площади. В таком случае необходимо буде позаботиться об их дополнительном утеплении.
Проект 1
На сегодняшний день немалой популярностью пользуются квартиры-студии, где отсутствуют практически все внутренние перегородки, за исключением тех, что отделяют санузел. В хрущевках воплотить такой проект проще, чем в панельных домах, так как несущими являются лишь стены по периметру квартиры. В результате демонтажа всех внутренних стен (кроме санузла) получается довольно большое пространство, где с помощью зонирования размещают отдельные функциональные островки. Рабочая зона кухни остается на прежнем месте, так как перенос коммуникаций не целесообразен, на территории комнаты размещаем зону отдыха, а обеденный комплекс можно установить на границе, где ранее находилась стена. По желанию хозяев стену можно не полностью демонтировать, а лишь наполовину, при этом нижняя часть, после проведения отделочных работ, превратиться в барную стойку или обеденный стол.




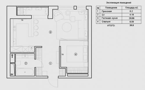
Проект 2
В данном случае владельцы нашли грамотный выход, как увеличить пространство гостиной и в то же время скрыть часть приватной территории от посторонних глаз. Здесь с помощью гипсокартонной перегородки отделили спальню, а остальное пространство комнаты объединили с кухней, демонтировав разделяющую их стену. Такие способы перепланировки встречаются нередко, по сути, однокомнатная квартира перестраивается в двухкомнатную. Можно также задействовать территорию балкона. Если нет желания или возможности присоединить его к территории квартиры, достаточно застеклить, утеплить стены и сделать эксплуатируемой территорией, установив, например, шкаф или рабочий стол.





Как переделать однокомнатную квартиру в студию. Готовые схемы проектов переделки однокомнатной квартиры в двухкомнатную разной площади
При перепланировке в 38 кв м учитывается все до мелочей. Для такой квартиры лучше всего подойдут такие стили, как хай-тек, скандинавский или кантри. При использовании одного из стилей в квартире будет уютно и просторно. Важно заранее все распланировать, как из однушки сделать двушку и постепенно начать перестройку. Главное, выбрать подходящий вариант и тем самым можно преобразить свою жилплощадь.

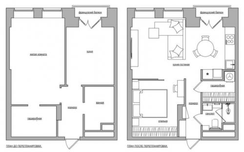
Спальная зона выделена в небольшую, но отдельную комнату. Большая часть пространства досталась кухне-гостиной, в которой раскладной диван служит дополнительным местом для сна
При 40 кв м комнаты могут быть открытыми, что придаст квартире неповторимый вид. При перепланировке в любой интерьер можно внести “изюминку” и тогда все будет смотреться изящно и красиво. Каждому хозяину квартиры можно создать индивидуальный проект и решить как из однушки сделать двушку 40 кв. Разграничивая помещения в квартире нужно сделать так, что все было компактно расставлено.

Приватное место для ночного отдыха размещено за стеклянной перегородкой, что позволило сохранить в спальне естественное освещение
При 43 кв м будет уютно, если разграничить основную комнату перегородкой. У тех, у кого есть дети сделать для них игровую комнату. Если владелец проживает один, то ему можно создать уютное офисное помещение. Все гармонично сочетаться в соответствие с установленными правилами.

Комната с двумя окнами разделена на спальную и гостиную зоны, последняя отделена от кухни барной стойкой
При 45 кв м в одной комнате можно установить кровать и диван без потери основного стиля. Вторая половина может быть занята кухней в американском стиле. Здесь можно все разграничить так, чтобы уместились:
- напольные вешалки;
- небольшие шкафчики;
- напольный торшер;
- столик;
- диван и т.д.

Благодаря перепланировки удалось организовать просторную кухню-гостиную и уютную спальную зону с небольшим гардеробом
При 50 кв м может получиться в одной половине уютная спальня, а в другой отдельный уголок отдыха. В качестве перегородки можно поставить прозрачные. Это придаст помещению современный, презентабельный вид. В квартире может быть объединена кухня с гостиной и отдельная спальня. Все это может быть удобным вариантом для семейной пары.

Функциональный интерьер с достаточно большой спальной комнатой, кухне-гостиной и рабочим кабинетом на утепленной лоджии
При перепланировке 55 кв м можно сделать интерьер в швейцарском стиле, использовав светлые оттенки. Интерьер лучше не перегружать лишними деталями, а повесить украшения на стены и потолок. Если даже дизайн простой, то интерьер может получиться стильный и современный.

Дизайн однокомнатной квартиры в пятиэтажном доме. Делаем невозможное: раздвигаем границы пространства

Основное, что пугает многих владельцев однокомнатной квартиры, — это даже не сам дизайн интерьера, а размеры, ограниченность пространства, нехватка воздуха и простора. А семьям с маленькими детьми тяжело вдвойне… В связи с этим первой и основной задачей является увеличение пространства, пусть даже визуально.
Важно правильно подобрать материалы для отделки, цветовую гамму – и комната как по мановению волшебной палочки станет шире и светлее – это уже за свет естественного (от окон) и искусственного освещения, которого много не бывает. Еще многие прибегают к помощи зеркал, которые также создают поразительный зрительный эффект.

Дороже и более кардинально изменить внешний облик хрущевки поможет снос стен. Это уже буквально «раздвижение пространства». Только перед тем как браться за это дело, уточните, что вы собираетесь ломать не несущие стены, а то так недолго вообще обрушить весь жилой дом. Перепланировку согласуйте с ЖКХ. Еще один вариант – вместо стен оставить только колонны, которые могут стать настоящей изюминкой дизайна и вашей персональной гордостью.

Сегодня все более актуальными становятся так называемые квартиры-студии. Поясним. Это когда кухня, жилая комната, холл и иногда балкон становятся одним большим помещением, лишь условно поделенным на функциональные зоны. В результате кропотливой и дорогостоящей (этого нельзя не уточнить) работы вы получаете элегантный, стильный, актуальный дизайн однокомнатной квартиры с нишей. Модно, практично и просторно!

Иногда прибегают не к таким радикальным переменам. Могут снести только одну стену, которая была границей между кухней и гостиной. После демонтажа стены освобождается приличное пространство – его можно заполнить барной стойкой или (если это уже приелось) поставить диванчик – уютно, удобно – и дополнительное спальное место. А если есть еще и лоджия, то можно соединить эти комнаты, чтобы получилась одна большая, наполненная естественным светом.