Естественная вентиляция в гараже своими руками. Особенности компоновки и устройства естественной вентиляции гаража
- Естественная вентиляция в гараже своими руками. Особенности компоновки и устройства естественной вентиляции гаража
- Как увеличить тягу вентиляции в гараже. Как сделать вентиляцию в гараже эффективной?
- Вентиляция неотапливаемого гаража. Особенности вентиляции в гараже
- Естественная вентиляция гаража. Выбираем тип вентиляции
- Вентиляция в гараже из пластиковых труб. Естественный воздухообмен
- Вентиляция в гараже на одной стене. Установка естественного воздухообмена
- Вентиляция в гараже без погреба. Необходимость вентилирования гаража
Естественная вентиляция в гараже своими руками. Особенности компоновки и устройства естественной вентиляции гаража
Самый простой вариант построения системы естественной вентиляции изображен на схеме.
Для забора естественной вентиляцией внешнего воздуха, холодного и тяжелого, используются два приточных окна диаметром, равным диаметру вытяжной трубы. Из-за того, что вход в вентиляцию располагается на максимально низкой высоте, всего 10- 15 см над грунтом, срез окна чаще всего закрывается перфорированной стальной пластиной, чтобы предупредить возможное проникновение в помещение гаража насекомых и грызунов. Из-за решетки полезная площадь заборных окон уменьшается вдвое, поэтому приходится устанавливать два окна.
Если в гараже хранится автомобиль или другое транспортное средство, зачастую приточные окна естественной вентиляции выполняют в виде вентиляционных решеток на нижней части гаражных ворот. Вытяжную вентиляцию располагают на задней стене в виде двух приемных труб малого диаметра, примерно 50- 70 мм. Приемное окно одной из труб устанавливают в районе потолка, вторую на высоте 60- 70 см над полом. В результате большая часть воздуха, засасываемого естественной вентиляцией гаража, будет разделена на два потока. Третья часть воздушной массы будет протекать под автомобилем, нагреваться и засасываться нижним срезом вытяжной системы. Две трети потока будут обтекать автомобиль по наружной поверхности, и засасываться припотолочным вытяжным каналом.
Таким образом, у хозяина гаража есть возможность сохранить свой автомобиль в идеальном состоянии без использования дорогостоящей приточно- вытяжной вентиляции. При желании достаточно просто собрать естественную вентиляцию гаража своими руками.
Как увеличить тягу вентиляции в гараже. Как сделать вентиляцию в гараже эффективной?
3 мин.
Вентиляция
Как сделать вентиляцию в гараже? Именно этот вопрос первым возникает у любого автовладельца. И неспроста, ведь наш гараж коренным образом отличается от «автодома» в любой другой стране мира. Мы храним в нем не только средство передвижения, но и дары природы, выращенные на даче. Здесь находят пристанище горы необходимых запчастей и инструментов для ремонта: как машины, так и дома. К тому же многие хозяева средств передвижения очень любят в гаражах устраивать посиделки с друзьями.
Поэтому вентиляция здесь жизненно необходима?
Но в этом уверены не все владельцы гаражей. И совершенно зря. Последствия отсутствия нормальной вентиляции скажутся очень скоро, ведь она помогает:
- избавляться от влаги, которая образуется при попадании в помещение мокрой грязи, налипшей на днище машины, дождя или снега;
- препятствовать коррозии;
- защищать человека от токсичных испарений;
- сохранять продукты питания — овощи и заготовки.
Наличие любой вентиляционной системы спасет человека и автомобиль от многих проблем.
Виды возможного воздухообмена
До того, как сделать вентиляцию в гараже, следует узнать о необходимой мощности воздушного потока, от него полностью зависит безопасность человека и техники. Минимальным показателем, прописанным в СНиП, является постоянный приток свежего воздуха в 180 л/час. Это российская норма. Западные правила строже вдвойне (360 л/час), потому как гараж там приравнивается к жилому помещению. На них и ориентируется большинство наших автовладельцев. Впрочем, вам принимать решение о необходимости тех или иных норм.
Существуют 3 вида:
- естественная;
- комбинированная;
- принудительная (механическая).
Именно из них вам предстоит сделать оптимальный выбор.
Естественная вентиляция
Очень популярная система у владельцев гаражей, потому что ее устройство не предполагает особых финансовых трат, да и работа не слишком сложна. Суть естественного воздухообмена в том, что потоки проникают и выбрасываются через два отверстия — приточное и вытяжное, — оборудованные в диаметрально противоположных сторонах помещения.
Для работы вам понадобятся:
- болгарка;
- перфоратор;
- трубы;
- решетки или колпаки.
Стадии монтажа
- Расчет площади вентканалов. Если гараж имеет размеры 6 х 3 м, то диаметр каждого канала должен быть 13-14 см.
- Берем перфоратор и проделываем с помощью него отверстие для приточной трубы. Располагается оно в 10-15 см от плоскости пола.
- Переходим к противоположной стене и устраиваем вытяжное отверстие, отмерив 10 см от потолка.
- Устанавливаем наши каналы. Минимальная высота части вытяжной трубы, виднеющейся над крышей гаража, составляет 50 см. Выше — лучше.
- Заделываем герметиком зазоры, образовавшиеся между трубами и стенами. Внешние концы труб закрываем решетками.
- Устанавливаем на вытяжку защитный колпак.
Реализация естественной схемы проста, но надо иметь в виду, что в летний сезон воздухообмен будет недостаточным. Поэтому стоит обдумать следующее решение.
Принудительная (механическая) вентиляция
Такая схема достаточно эффективно справляется со своими обязанностями. Расчета площади здесь не требуется, ведь основную работу выполняют встроенные вентиляторы. Объема поступающего воздуха будет достаточно для гаража любого размера. Зато придется приобретать недешевое оборудование, а система требует наличия электроэнергии.

Для подземных вариантов механическая система единственный вариант вообще. Хороша она в зимний период, так как позволяет оснастить гараж специальным оборудованием для подогрева морозного воздуха. Состоит она из:
- приточной установки, включающей фильтр, вентилятор и электрический калорифер;
- вытяжного оборудования, которое может быть представлено двумя вентиляторами или канальным вентиляционным устройством.
Замечательным вариантом принудительной вентиляции является установка моноблочной системы: два блока, составляющие единое целое, выполняют сразу все необходимые функции — поставляют свежий воздух, обрабатывают его и вытягивают. Расходы электроэнергии минимальны, потому что выработанное тепло используется для обогрева поступившего воздуха.
Комбинированная вентиляция
Ее можно назвать достойной заменой принудительной системы, так как комбинированная вентиляция совмещает естественную (приток и вытяжка), но отток воздуха происходит с помощью вентилятора, помещенного в воздуховод. Отработанный воздух выталкивается прочь вытяжкой, а его место занимает свежий, поступивший через приточный канал.

Вентиляция неотапливаемого гаража. Особенности вентиляции в гараже
Правильно выполненная вентиляция в гараже должна:
- Гарантировать непрерывный поток свежего воздуха.
- Производить вывод всех испарений, тяжёлых запахов и влаги.
- Предупредить создание конденсата, а, значит, порчу провизии и автомобиля.
Существует три способа вентиляции:
- Естественный.
- Принудительный.
- Комбинированный.
Все три варианта предполагают наличие отверстий: приточного и вытяжного.
В первом случае, заставлять двигаться воздух по этим отверстиям будут только законы физики. Здесь имеет значение правильное расположение отверстий. Тёплый воздух поднимается вверх, поэтому отток будет под потолком (или проводится сквозь кровлю), а приток – в нижней части стены. Кроме того, на качество такой вентиляции влияют факторы, не зависящие от нас: атмосферное давление, осадки, сила и направление ветра.
В случае принудительной вентиляции, устанавливается дополнительное оборудование – вентиляторы, которые будут осуществлять забор и вытяжку воздуха в любую погоду. Способ самый дорогой, но и наиболее эффективный.
Что же касается комбинированных вариантов, то тут могут учитываться разные особенности, которые помогут сэкономить на оборудовании. Владелец может поставить вентилятор только на одно из отверстий. А иногда может быть принято решение обойтись без одного отверстия вовсе. Например, если гараж снабжён большой дверью, которая полностью открывается, обеспечивая за несколько секунд полный воздухообмен. Да к тому же владелец уверен, что такое проветривание будет без простоев, потому что пользуется автомобилем каждый день. Возможно он решит, что вытяжки его гаражу будет достаточно.
Решая, какой выбрать вариант, нужно взвесить все конкретные особенности, после чего переходить к воплощению проекта.
Правила установки естественной вентиляции включают:
- одну трубу с целью обеспечения прямого потока воздуха;
- другую для вывода.
Главное — это расположить трубы в разных углах. И можно это сделать несколькими способами:
- Трубу провести сквозь пол, кровлю гаража.
- Вывести наружу (сквозь любую стену погреба), дальше – в вертикальном положении вверх, по всей стене гаража.
Нужно только выполнить несколько условий:
- Правильный выход трубы должен быть: повыше уровня гаража (более метра).
- Общая протяжённость вытяжной трубы должна составлять: не менее трёх метров.
- Устанавливание дефлектора (для увеличения тяги) в верхней доле.
Обустройство входного отверстия:
- подвод ближе книзу (35–55 см);
- от пола к потолку (1,7–2,0).
Принудительная вентиляция: несхожесть этой системы — это присутствие в вытяжной системе вентилятора.
Главное:
- Выбрать модель, которая может использоваться в условиях увеличенной влажности.
- Провести по всем правилам гидроизоляцию, применяемого электрооборудования.
Естественная вентиляция гаража. Выбираем тип вентиляции
Есть несколько разновидностей вентиляций, которые можно воплотить в жизнь. Они имеют свои положительные и отрицательные стороны. Создание как одного, так и другого вида требует усилий и тщательного планирования. Давайте же рассмотрим эти виды:
- Естественная вентиляция в гараже. Это самый простой и эффективный способ проветривания гаража. Он заключается в естественных процессах, основанных на физических законах.

- Принудительная вентиляция. В этом случае используется целая система приборов (вентиляторы) благодаря которым и выполняется отвод отработанного воздуха и наполнения помещения свежим.

- Комбинированная вентиляция. В этом случае используется как один, так и второй вид вентилирования.
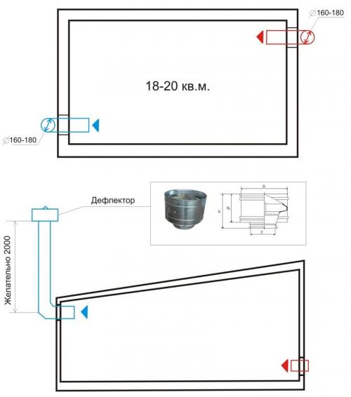
Мы обратим свое внимание именно на естественную вентиляцию. Для ее устройства потребуется наименьшее количество средств. В чем же принцип работы естественного типа вентиляции? Он основан на физических законах. Все знают, что теплый воздух поднимается верх, в то время как холодный опускается. Ниже приводится схема естественной вентиляции.
Как видно, система основывается на использовании двух труб или каналов, которые служат для вентилирования воздуха. Одна из труб – приточная, а вторая – вытяжная. При этом вытяжная труба находится у потолка погреба, а приточная на небольшом расстоянии от пола (не меньше 10 см). Итак, основываясь на законах физики делаем вывод: теплый воздух поднимается вверх и попадает в вытяжную трубу. В то же время свежий воздух подается через приточную трубу, замещая собой количество вышедшего воздуха. Таким образом и происходит вентилирование. Это напоминает процесс, при котором открывается одно окно на кухне и дверь на коридоре. Получается, что для гаража не потребуется установка дорогостоящего оборудования. Работы по созданию просты, воздухообмен происходит естественным образом.
Обратите внимание! Иногда на вытяжную трубу устанавливают дефлектор, который способствует лучшей циркуляции и усиливает эффект. Если такового нет, то в любом случае труба закрывается козырьком, чтобы внутрь не попадала влага. А вытяжная труба поднимается на 50 см над уровнем крыши.

Есть еще один важный момент, который способствует правильному функционированию системы. Речь идет о размещении труб внутри гаража. Очень важно, чтобы они располагались по диагонали в противоположенных местах. А еще важно рассчитать оптимальный диаметр отверстий. Ведь можно сделать сквозняк внутри, а не качественный воздухообмен. Есть некоторые стандарты, которые говорят о том, что на 1 м2 площади помещения нужно отверстие, диаметром 1,5 см. Например, если размер помещения 4х6 м, то его площадь будет равняться 24 м2. Путем несложных математических решений, получаем оптимальный диаметр вентиляционной трубы – 36 см (24х1,5=36). А если их будет две, что вполне логично, то рекомендуемый диаметр каждой трубы 18 см, так как сумма делится на два.

Многие считают этот вид вентилирования лучшим, так как для его воплощения не нужно много средств, а все работы можно сделать своими руками. Нужно только закупить трубы, сделать отверстия в стене и перекрытии, если таких нет, и выполнить установку системы вентиляции в гараже.
Обратите внимание! Вытяжное отверстие можно оборудовать заслонкой, чтобы выполнять контроль подачи холодного воздуха. Это особенно важно зимой.
Комбинированные вентиляционные системы
В проектах этого типа применяют естественный приток свежего воздуха. Для временного повышения производительности – устанавливают вентиляционную технику в канале вытяжки. Это решение дешевле по сравнению с комплексными технологиями. Но с его помощью можно получить хорошие результаты, если приходится использовать сложные воздуховоды.
Загрязнения быстро удаляются при наличии мощной приточно-вытяжной системы вентиляции в гараже
Такое оборудование потребляет электроэнергию, поэтому надо будет установить проводку, устройства защиты от бросков напряжения и перегрева мотора. При желании, комбинированную вентиляцию своими руками можно дополнить датчиками движения, таймерами. Они пригодятся для автоматизации запуска системы при въезде автомобиля, выключения после заданного интервала времени.
Вентиляция в гараже из пластиковых труб. Естественный воздухообмен
Прежде чем приступить к работе, необходимо рассчитать диаметр отверстия канала, о чём уже говорилось ранее, однако в данном случае мы будем использовать иной метод. В этой ситуации на один квадратный метр площади помещения приходится полтора сантиметра сечения воздушного канала. Рассмотрим наглядный пример, где используем гараж, площадь которого 20 квадратных метров. Данное значение необходимо умножить на 1,5 сантиметров, где мы получим значение в 30 см. Именно таким должно получиться сечение отверстия канала.

Затем необходимо проделать в стенах специальные отверстия, учитывая, чтобы трубы могли спокойно в них заходить. Таким образом постепенно осуществляется монтаж естественной вентиляционной системы. Для создания отверстий используют перфоратор, с помощью которого пробиваются дыры в потолке. Отступ должен составлять не более 20 см. Если стены изготовлены из пеноблоков, то в процессе данной работы у вас не возникнет никаких трудностей.
В полученное отверстие необходимо вставить пластиковые либо другие трубы. Если для создания вентиляции используется железо, то отверстия в данном случае просто высверливаются.


Чтобы создать приток воздушных масс, отверстия проделывают и в стенах помещения. Их диаметр должен быть оптимальным для того, чтобы установить в проеме трубы. Это будет нашей приточной системой, через которую свежий воздух будет попадать в помещение. Таким же образом потом должна выполняться вытяжная канальная система. Необходимо будет пробить отверстие в противоположной стене, однако расположить его нужно максимально близко к крыше.
Для этого используются одинаковые инструменты. Трубы должны быть выведены на крышу. В результате у вас обустраивается естественная вентиляционная система в гараже.


Обратите внимание, что чем выше будет расположена вытяжная система, тем лучше, однако лучше всего придерживаться оптимальных вариантов. Считается, что отвод, который возводится над крышей, должен иметь длину в полметра
Только в этом случае вытяжная система будет считаться правильной. Образовавшиеся щели между трубами и камеры необходимо заделать с помощью герметика.


Вентиляция в гараже на одной стене. Установка естественного воздухообмена
Такая вентиляция ввиду простоты установки и дешевизны подходит многим. Ее принято использовать также для погребов.
Установка вентиляции в гараже обязательно начинается с расчета.
Согласно СНиП, на каждые 10 квадратных метров площади должно приходиться 15 сантиметров диаметра воздуховода.
Например, размер гаражного помещения равен 5 на 4 метра. Площадь гаража будет равна двадцати квадратным метрам. Рассчитываем согласно формуле: 20*1,5=30 сантиметров.
В результате получаем диаметр каналов в 30 сантиметров. Если планируется установить две вытяжки и два приточных канала, следует уменьшить эту величину вдвое.
На рисунке показана вентиляция в гараже своими руками, схема показывает расположение вентиляционных проемов.
Схема вентиляции гаража
Следующий этап – подготовка проема для поступления воздуха. Делают его при помощи перфоратора на высоте около десяти сантиметров от пола. Правильная вентиляция гаража будет происходить при установке вытяжки в противоположной приточной стене, причем желательно, чтобы отверстие было сделано по диагонали.
При помощи перфоратора проделываем то же самое, только под потолком. Это необходимо, потому что труба вентиляции будет выведена над крышей помещения на высоту примерно пятьдесят сантиметров.

Высота трубы над крышей
Далее – обработка пустот между стеной и трубой герметиком. Для более качественного скрепления нужно выбирать герметик, позволяющий соединять разные материалы.
В самом конце установки необходимо позаботиться об оборудовании защитных приспособлений. Для предотвращения попадания грызунов и насекомых в свой гараж устанавливаются защитные решетки. От осадков поможет небольшая крышка или купол.
Таким образом, монтаж вентиляции обойдется примерно в 300 рублей. Стоит учесть, что естественный воздухообмен наиболее эффективен при температуре снаружи менее 10-12 градусов Цельсия.
Соответственно, в летнее время обмен воздуха будет малоэффективен. К тому же часто зимой происходит замерзание труб, что приводит к переохлаждению помещения.
Вентиляция в гараже без погреба. Необходимость вентилирования гаража
Необходимость полноценного проветривания гаражного строения не вызывает сомнений у автовладельцев. Непроветриваемое помещение создает агрессивную среду для автомобиля, человека, гаражного хранилища, а негативного результата не придется долго ждать. Кратко остановимся на причинах, требующих установки вентиляции:
- Избыточная сырость. В зимнее время, межсезонье вместе с машиной внутрь помещения попадает мокрый снег, грязь. Талая вода остается на кузове машины, стекает на пол, тем самым повышая уровень влажности в строении, вызывая окислительные реакции металла. Если не организовано вентилирование, кузов со временем начинает ржаветь, гнить. Коррозией покрываются и металлические поверхности постройки, инструментов.
- Конденсат. Разница наружной и внутренней температур вызывает конденсирование испаряемой влаги из грунта. Конденсат скапливается на потолке строения, стенах, а также автомобиле.
- Токсичные пары. Образуются от технических жидкостей, которые необходимы в уходе, обслуживании машины. Сюда же относятся выхлопные газы. Ядовитые испарения не только отражаются на здоровье человека, но и в определенной концентрации могут быть взрывоопасны.
- Подвал, погреб. Если организовано подвальное помещение, а вентиляции в гараже нет, внутрь могут попадать стекающие с автомобиля грязь, талый снег, а также токсичные пары технических жидкостей. Это будет оказывать влияние на хранящиеся внутри погреба урожай, продукты питания.
- Плесень. Гаражное строение из кирпича, бетона, с деревянными конструктивными элементами подвержено образованию на нем плесени, грибковых колоний. Повышенная влажность воздуха, постоянный конденсат вызовут появление плесени, многие виды которой хорошо уживаются на кирпичной, бетонной поверхности. Деревянные конструкции буду гнить. Избавиться от этих последствий будет очень сложно.

